|
|
|
| Larry Stein Oklahoma County Assessor (405) 713-1200 - Public Access System |
|
|
|
|
|
|
| Real Property Display - Screen Produced 3/20/2026 11:50:45 AM | ||||
|---|---|---|---|---|
| Account: R063342575 | Type: Residential | Location: |
2143 NW 11TH ST |
|
| Building Name/Occupant: |
|
OKLAHOMA CITY |
||
| Owner Name 1: | PELLETIER GARY |
Parcel PIN#: |
2718-06-334-2575 |
|
| Owner Name 2: | BOURBONNAIS PELLETIER GDEDEKWE ISLA | 1/4 section #: |
2718 |
|
| Owner Name 3: | Parent Acct: |
|
||
| Billing Address: | 2143 NW 11TH ST | Tax District: |
|
|
| City, State, Zip | OKLAHOMA CITY, OK 73107-5619 | School System: |
Oklahoma City #89 |
|
|
Country: (If noted) |
Land Size: |
0.0803 Acres |
||
|
Land Value: 15,750 |
|
|||
|
Sect 30-T12N-R3W Qtr SE |
YOUNGS ENGLEWOOD ADD
Block
012
Lot
000
|
|||
| Full Legal Description: YOUNGS ENGLEWOOD ADD 012 000 S70FT OF LOTS 30 & 31 |
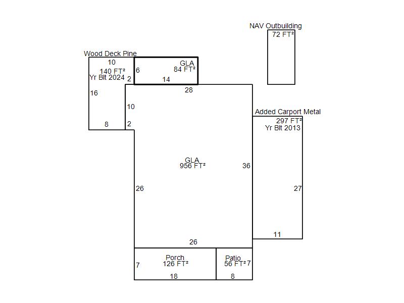
| Photo & Sketch (if available) | Comp Sales (ordered by relevancy) |
|
||||||||||||||||||
|
||||||||||||||||||||
| Value History (*The County Treasurer 405-713-1300 posts & collects actual tax amounts. Contact information HERE) | |||||||||||||
|---|---|---|---|---|---|---|---|---|---|---|---|---|---|
| Year | Market Value | Taxable Mkt Value | Gross Assessed | Exemption | Net Assessed | Millage | Est. Tax | Tax Savings | |||||
|
2025 |
184,500 |
184,500 |
20,295 |
20,295 |
0 |
122.90 |
$0 |
$2,494 |
|||||
|
2024 |
173,500 |
173,500 |
19,085 |
0 |
19,085 |
123.89 |
$2,364 |
$0 |
|||||
|
2023 |
128,500 |
70,384 |
7,741 |
0 |
7,741 |
122.82 |
$951 |
$785 |
|||||
|
2022 |
101,500 |
67,033 |
7,373 |
0 |
7,373 |
117.63 |
$867 |
$446 |
|||||
|
2021 |
91,500 |
63,841 |
7,022 |
0 |
7,022 |
117.70 |
$827 |
$358 |
|||||
| Property Account Status/Adjustments/Exemptions | ||
|---|---|---|
| Account # | Exemption Description | Amount |
|
R063342575 |
3% Cap Homestead |
0 |
|
R063342575 |
100% DAV Exemption |
100 |
|
R063342575 |
DAV Homestead |
0 |
| Property Deed Transaction History (Recorded in the County Clerk's Office) | ||||||||||
|---|---|---|---|---|---|---|---|---|---|---|
| Date | Type | Book | Page | Price | Grantor | Grantee | ||||
|
7/29/2024 |
|
Deeds |
$209,000 |
ADAY JACOB |
PELLETIER GARY |
|||||
|
3/20/2023 |
|
Deeds |
$160,000 |
COVENANT PROMISES 1 LLC |
ADAY JACOB |
|||||
|
8/15/2013 |
|
Hmstd Off & |
$0 |
MILLER MARK |
COVENANT PROMISES 1 LLC |
|||||
|
6/28/2013 |
|
Deeds |
$24,000 |
MITCHELL E MAXINE |
MILLER MARK |
|||||
|
5/2/2008 |
|
Deeds |
$0 |
MITCHELL JOSIE & E MAXINE |
MITCHELL E MAXINE |
|||||
| Last Mailed Notice of Value (N.O.V.) Information/History | ||||||||
|---|---|---|---|---|---|---|---|---|
| Year | Date | Market Value | Taxable Market Value | Gross Assessed | Exemption | Net Assessed | ||
|
2025 |
02/14/2025 |
184,500 |
184,500 |
20,295 |
20,295 |
0 |
||
|
2024 |
02/13/2024 |
173,500 |
173,500 |
19,085 |
0 |
19,085 |
||
|
2023 |
02/14/2023 |
128,500 |
70,384 |
7,741 |
0 |
7,741 |
||
|
2022 |
03/15/2022 |
101,500 |
67,033 |
7,373 |
0 |
7,373 |
||
|
2021 |
03/19/2021 |
91,500 |
63,841 |
7,022 |
0 |
7,022 |
||
| Property Building Permit History | |||||||||||
|---|---|---|---|---|---|---|---|---|---|---|---|
| Issued | Permit # | Provided by | Bldg # | Description | Est Construction Cost | Status | |||||
| No Building Permit records returned. | |||||||||||
| Click button on building number to access detailed information: | ||||||
|---|---|---|---|---|---|---|
| Bldg # | Vacant/Improved Land | Bldg Description | Year Built | SqFt | # Stories | |
|
1 |
Improved |
Ranch 1 Story |
1925 |
1,040 |
1 Stories |
|