|
|
|
| Larry Stein Oklahoma County Assessor (405) 713-1200 - Public Access System |
|
|
|
|
|
|
| Real Property Display - Screen Produced 4/1/2026 3:55:24 PM | ||||
|---|---|---|---|---|
| Account: R063348460 | Type: Residential | Location: |
2436 NW 16TH ST |
|
| Building Name/Occupant: |
|
OKLAHOMA CITY |
||
| Owner Name 1: | WELLS INVESTMENT GROUP LLC |
Parcel PIN#: |
2718-06-334-8460 |
|
| Owner Name 2: | 1/4 section #: |
2718 |
||
| Owner Name 3: | Parent Acct: |
|
||
| Billing Address: | 4300 WILD PLUM LN | Tax District: |
|
|
| City, State, Zip | EDMOND, OK 73025 | School System: |
Oklahoma City #89 |
|
|
Country: (If noted) |
Land Size: |
0.1630 Acres |
||
|
Land Value: 31,950 |
|
|||
|
Sect 30-T12N-R3W Qtr SE |
YOUNGS ENGLEWOOD ADD
Block
035
Lot
000
|
|||
| Full Legal Description: YOUNGS ENGLEWOOD ADD 035 000 LOTS 27 & 28 |
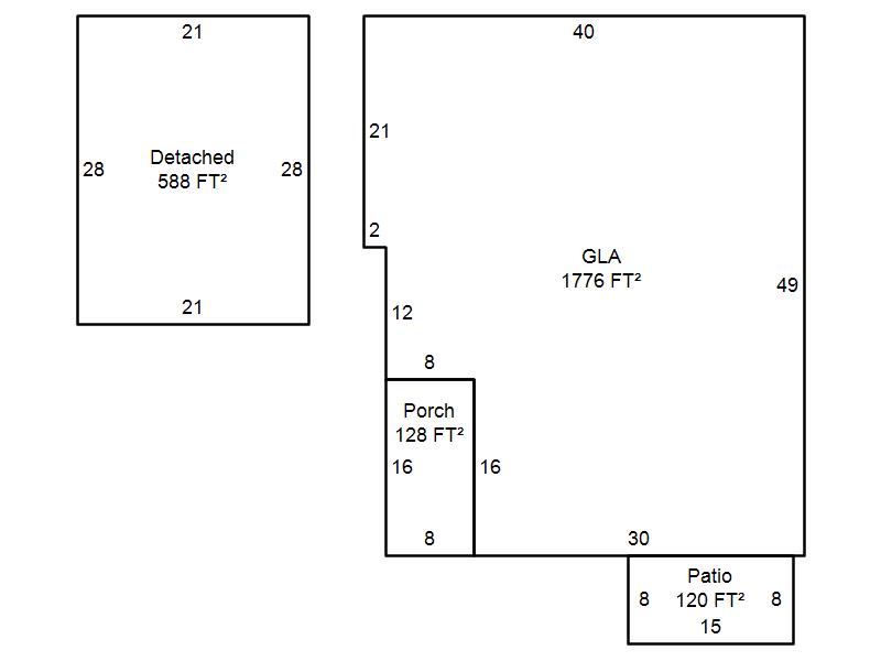
| Photo & Sketch (if available) | Comp Sales (ordered by relevancy) |
|
||||||||||||||||||
|
||||||||||||||||||||
| Value History (*The County Treasurer 405-713-1300 posts & collects actual tax amounts. Contact information HERE) | |||||||||||||
|---|---|---|---|---|---|---|---|---|---|---|---|---|---|
| Year | Market Value | Taxable Mkt Value | Gross Assessed | Exemption | Net Assessed | Millage | Est. Tax | Tax Savings | |||||
|
2026 |
211,000 |
157,618 |
17,337 |
0 |
17,337 |
122.90 |
$2,131 |
$722 |
|||||
|
2025 |
206,500 |
150,113 |
16,512 |
0 |
16,512 |
122.90 |
$2,029 |
$762 |
|||||
|
2024 |
199,500 |
142,965 |
15,725 |
0 |
15,725 |
123.89 |
$1,948 |
$770 |
|||||
|
2023 |
189,500 |
136,158 |
14,977 |
0 |
14,977 |
122.82 |
$1,840 |
$721 |
|||||
|
2022 |
146,500 |
129,675 |
14,264 |
0 |
14,264 |
117.63 |
$1,678 |
$218 |
|||||
| Property Account Status/Adjustments/Exemptions | ||
|---|---|---|
| Account # | Exemption Description | Amount |
|
R063348460 |
5% Capped Account |
0 |
| Property Deed Transaction History (Recorded in the County Clerk's Office) | ||||||||||
|---|---|---|---|---|---|---|---|---|---|---|
| Date | Type | Book | Page | Price | Grantor | Grantee | ||||
|
9/27/2021 |
|
Hmstd Off & |
$0 |
WELLS TYLER JOHN |
WELLS INVESTMENT GROUP LLC |
|||||
|
9/10/2021 |
|
Hmstd Off & |
$0 |
WELLS INVESTMENT GROUP LLC |
WELLS TYLER JOHN |
|||||
|
10/13/2020 |
|
Hmstd Off & |
$0 |
WELLS TYLER J |
WELLS INVESTMENT GROUP LLC |
|||||
|
7/30/2020 |
|
Deeds |
$130,000 |
FARHA INVESTMENTS LLC |
WELLS TYLER J |
|||||
|
9/4/2015 |
|
Hmstd Off & |
$0 |
FARHA INVESTMENTS LLC |
FARHA GREGORY R |
|||||
| Last Mailed Notice of Value (N.O.V.) Information/History | ||||||||
|---|---|---|---|---|---|---|---|---|
| Year | Date | Market Value | Taxable Market Value | Gross Assessed | Exemption | Net Assessed | ||
|
2026 |
02/23/2026 |
211,000 |
157,618 |
17,337 |
0 |
17,337 |
||
|
2025 |
02/14/2025 |
206,500 |
150,113 |
16,512 |
0 |
16,512 |
||
|
2024 |
02/13/2024 |
199,500 |
142,965 |
15,725 |
0 |
15,725 |
||
|
2023 |
02/14/2023 |
189,500 |
136,158 |
14,977 |
0 |
14,977 |
||
|
2022 |
03/15/2022 |
146,500 |
129,675 |
14,264 |
0 |
14,264 |
||
| Property Building Permit History | |||||||||||
|---|---|---|---|---|---|---|---|---|---|---|---|
| Issued | Permit # | Provided by | Bldg # | Description | Est Construction Cost | Status | |||||
| No Building Permit records returned. | |||||||||||
| Click button on building number to access detailed information: | ||||||
|---|---|---|---|---|---|---|
| Bldg # | Vacant/Improved Land | Bldg Description | Year Built | SqFt | # Stories | |
|
1 |
Improved |
Duplex One Story |
1920 |
1,776 |
1 Stories |
|