|
|
|
| Larry Stein Oklahoma County Assessor (405) 713-1200 - Public Access System |
|
|
|
|
|
|
| Real Property Display - Screen Produced 3/12/2026 2:28:32 AM | ||||
|---|---|---|---|---|
| Account: R210391850 | Type: Residential | Location: |
20662 AUTUMN TRL |
|
| Building Name/Occupant: |
|
HARRAH |
||
| Owner Name 1: | LEWIS LUTHER |
Parcel PIN#: |
1005-21-039-1850 |
|
| Owner Name 2: | LEWIS TERESA R | 1/4 section #: |
1005 |
|
| Owner Name 3: | Parent Acct: |
1005-26-702-1000 |
||
| Billing Address: | 20662 AUTUMN TRL | Tax District: |
|
|
| City, State, Zip | HARRAH, OK 73045-8140 | School System: |
Harrah #7 |
|
|
Country: (If noted) |
Land Size: |
0.2064 Acres |
||
|
Land Value: 44,051 |
|
|||
|
Sect 2-T11N-R1E Qtr NE |
FALL CREEK SEC II PH I
Block
019
Lot
002
|
|||
| Full Legal Description: FALL CREEK SEC II PH I BLK 019 LOT 002 |
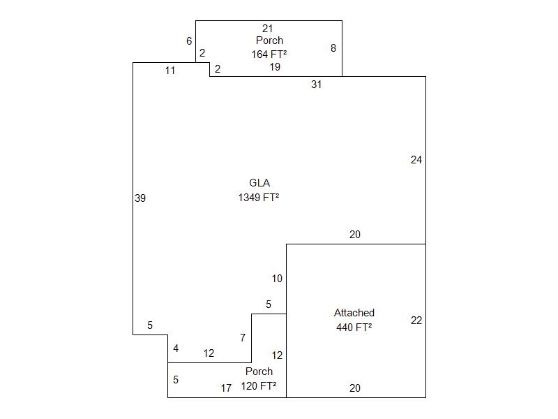
| Photo & Sketch (if available) | Comp Sales (ordered by relevancy) |
|
||||||||||||||||||
|
||||||||||||||||||||
| Value History (*The County Treasurer 405-713-1300 posts & collects actual tax amounts. Contact information HERE) | |||||||||||||
|---|---|---|---|---|---|---|---|---|---|---|---|---|---|
| Year | Market Value | Taxable Mkt Value | Gross Assessed | Exemption | Net Assessed | Millage | Est. Tax | Tax Savings | |||||
|
2025 |
228,500 |
180,258 |
19,828 |
0 |
19,828 |
107.54 |
$2,132 |
$571 |
|||||
|
2024 |
224,000 |
171,675 |
18,884 |
0 |
18,884 |
110.62 |
$2,089 |
$637 |
|||||
|
2023 |
163,500 |
163,500 |
17,985 |
0 |
17,985 |
97.88 |
$1,760 |
$0 |
|||||
|
2022 |
163,500 |
163,500 |
17,985 |
0 |
17,985 |
99.50 |
$1,790 |
$0 |
|||||
|
2021 |
164,500 |
157,500 |
17,325 |
0 |
17,325 |
99.52 |
$1,724 |
$77 |
|||||
| Property Account Status/Adjustments/Exemptions | ||||||
|---|---|---|---|---|---|---|
| Account # | Exemption Description | Amount | ||||
| No adjustment/exemption records returned. | ||||||
| Property Deed Transaction History (Recorded in the County Clerk's Office) | |||||||
|---|---|---|---|---|---|---|---|
| Date | Type | Book | Page | Price | Grantor | Grantee | |
|
4/18/2025 |
|
Deeds |
$225,000 |
JORDAN PHILIP |
LEWIS LUTHER |
||
|
1/5/2021 |
|
Deeds |
$159,500 |
WHITEMAN RONNIE II & RACHEL |
JORDAN PHILIP |
||
|
12/19/2014 |
|
Deeds |
$133,000 |
HARRAH LAND FC LLC |
WHITEMAN RONNIE II & RACHEL |
||
|
5/11/2012 |
|
Mult Parcel |
$990,000 |
FALL CREEK DEVELOPMENT LLC |
HARRAH LAND FC LLC |
||
| Last Mailed Notice of Value (N.O.V.) Information/History | ||||||||
|---|---|---|---|---|---|---|---|---|
| Year | Date | Market Value | Taxable Market Value | Gross Assessed | Exemption | Net Assessed | ||
|
2026 |
02/06/2026 |
234,000 |
234,000 |
25,740 |
0 |
25,740 |
||
|
2025 |
01/31/2025 |
228,500 |
180,258 |
19,828 |
0 |
19,828 |
||
|
2024 |
01/22/2024 |
224,000 |
171,675 |
18,884 |
0 |
18,884 |
||
|
2022 |
02/22/2022 |
163,500 |
163,500 |
17,985 |
0 |
17,985 |
||
|
2021 |
02/24/2021 |
164,500 |
157,500 |
17,325 |
0 |
17,325 |
||
| Property Building Permit History | ||||||
|---|---|---|---|---|---|---|
| Issued | Permit # | Provided by | Bldg # | Description | Est Construction Cost | Status |
|
1/1/1900 |
10467665 |
HARRAH |
1 |
Main Dwellin |
0 |
Inactive |
| Click button on building number to access detailed information: | ||||||
|---|---|---|---|---|---|---|
| Bldg # | Vacant/Improved Land | Bldg Description | Year Built | SqFt | # Stories | |
|
1 |
Improved |
Ranch 1 Story |
2014 |
1,349 |
1 Stories |
|