|
|
|
| Larry Stein Oklahoma County Assessor (405) 713-1200 - Public Access System |
|
|
|
|
|
|
| Real Property Display - Screen Produced 2/27/2026 7:31:26 PM | ||||
|---|---|---|---|---|
| Account: R175501400 | Type: Residential | Location: |
6807 NW 55TH ST |
|
| Building Name/Occupant: |
|
BETHANY |
||
| Owner Name 1: | ESPARZA DAVID & JASMINE |
Parcel PIN#: |
2835-17-550-1400 |
|
| Owner Name 2: | 1/4 section #: |
2835 |
||
| Owner Name 3: | Parent Acct: |
|
||
| Billing Address: | 3304 N PENIEL AVE | Tax District: |
|
|
| City, State, Zip | BETHANY, OK 73008-4139 | School System: |
Putnam City #1 |
|
|
Country: (If noted) |
Land Size: |
0.1522 Acres |
||
|
Land Value: 19,890 |
|
|||
|
Sect 9-T12N-R4W Qtr SW |
HATHAWAY SIXTH ADD
Block
000
Lot
004
|
|||
| Full Legal Description: HATHAWAY SIXTH ADD 000 004 |
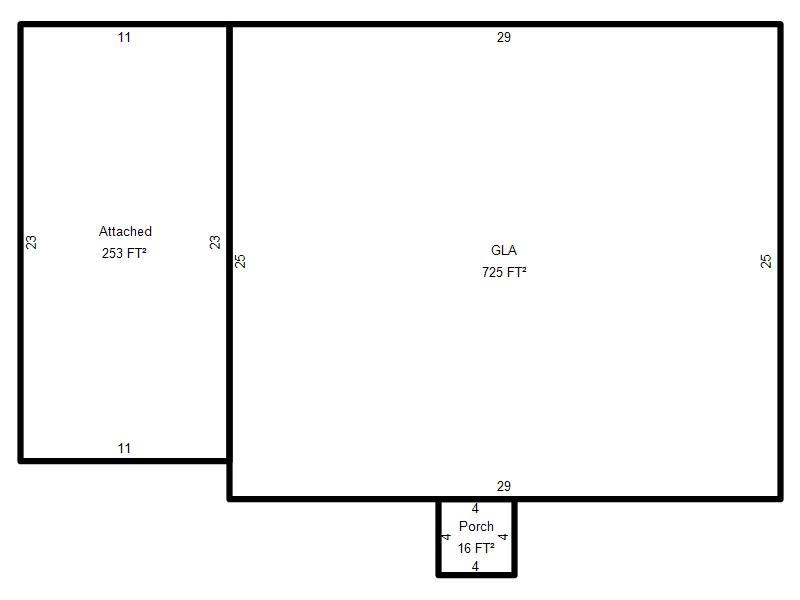
| Photo & Sketch (if available) | Comp Sales (ordered by relevancy) |
|
||||||||||||||||||
|
||||||||||||||||||||
| Value History (*The County Treasurer 405-713-1300 posts & collects actual tax amounts. Contact information HERE) | |||||||||||||
|---|---|---|---|---|---|---|---|---|---|---|---|---|---|
| Year | Market Value | Taxable Mkt Value | Gross Assessed | Exemption | Net Assessed | Millage | Est. Tax | Tax Savings | |||||
|
2025 |
107,000 |
107,000 |
11,770 |
0 |
11,770 |
122.14 |
$1,438 |
$0 |
|||||
|
2024 |
100,500 |
67,873 |
7,465 |
0 |
7,465 |
120.52 |
$900 |
$433 |
|||||
|
2023 |
93,000 |
64,641 |
7,109 |
0 |
7,109 |
123.06 |
$875 |
$384 |
|||||
|
2022 |
79,500 |
61,563 |
6,771 |
0 |
6,771 |
112.54 |
$762 |
$222 |
|||||
|
2021 |
67,500 |
58,632 |
6,449 |
0 |
6,449 |
112.07 |
$723 |
$109 |
|||||
| Property Account Status/Adjustments/Exemptions | ||
|---|---|---|
| Account # | Exemption Description | Amount |
|
R175501400 |
5% Capped Account |
0 |
| Property Deed Transaction History (Recorded in the County Clerk's Office) | ||||||||||
|---|---|---|---|---|---|---|---|---|---|---|
| Date | Type | Book | Page | Price | Grantor | Grantee | ||||
|
11/1/2024 |
|
Deeds |
$109,000 |
6807 LLC |
ESPARZA DAVID & JASMINE |
|||||
|
10/22/2009 |
|
Deeds |
$49,000 |
LOHR JAMES |
6807 LLC |
|||||
|
2/5/2009 |
|
Deeds |
$0 |
LOHR JAMES JOSLIN RACHEL |
LOHR JAMES |
|||||
|
7/23/2007 |
|
Deeds |
$63,000 |
DE LOERA SAMUEL & MARIA |
LOHR JAMES JOSLIN RACHEL |
|||||
|
2/28/2006 |
|
Deeds |
$32,000 |
WORDEN JOHN BURSE TRS WORDEN JOHN BURSE 2000 REV TRUST |
DE LOERA SAMUEL & MARIA |
|||||
| Last Mailed Notice of Value (N.O.V.) Information/History | ||||||||
|---|---|---|---|---|---|---|---|---|
| Year | Date | Market Value | Taxable Market Value | Gross Assessed | Exemption | Net Assessed | ||
|
2025 |
02/14/2025 |
107,000 |
107,000 |
11,770 |
0 |
11,770 |
||
|
2024 |
02/13/2024 |
100,500 |
67,873 |
7,465 |
0 |
7,465 |
||
|
2023 |
02/14/2023 |
93,000 |
64,641 |
7,109 |
0 |
7,109 |
||
|
2022 |
03/15/2022 |
79,500 |
61,563 |
6,771 |
0 |
6,771 |
||
|
2021 |
03/19/2021 |
67,500 |
58,632 |
6,449 |
0 |
6,449 |
||
| Property Building Permit History | |||||||||||
|---|---|---|---|---|---|---|---|---|---|---|---|
| Issued | Permit # | Provided by | Bldg # | Description | Est Construction Cost | Status | |||||
| No Building Permit records returned. | |||||||||||
| Click button on building number to access detailed information: | ||||||
|---|---|---|---|---|---|---|
| Bldg # | Vacant/Improved Land | Bldg Description | Year Built | SqFt | # Stories | |
|
1 |
Improved |
Ranch 1 Story |
1951 |
725 |
1 Stories |
|