|
|
|
| Larry Stein Oklahoma County Assessor (405) 713-1200 - Public Access System |
|
|
|
|
|
|
| Real Property Display - Screen Produced 2/27/2026 6:16:23 PM | ||||
|---|---|---|---|---|
| Account: R143380110 | Type: Residential | Location: |
5008 NW 61ST PL |
|
| Building Name/Occupant: |
|
OKLAHOMA CITY |
||
| Owner Name 1: | IXTABALAN JOSE |
Parcel PIN#: |
2840-14-338-0110 |
|
| Owner Name 2: | REYES SUCELI | 1/4 section #: |
2840 |
|
| Owner Name 3: | Parent Acct: |
|
||
| Billing Address: | 5008 NW 61ST PL | Tax District: |
|
|
| City, State, Zip | OKLAHOMA CITY, OK 73122-7409 | School System: |
Putnam City #1 |
|
|
Country: (If noted) |
Land Size: |
0.2006 Acres |
||
|
Land Value: 38,438 |
|
|||
|
Sect 10-T12N-R4W Qtr NW |
ROLLINGWOOD SEC 3
Block
013
Lot
011
|
|||
| Full Legal Description: ROLLINGWOOD SEC 3 013 011 |
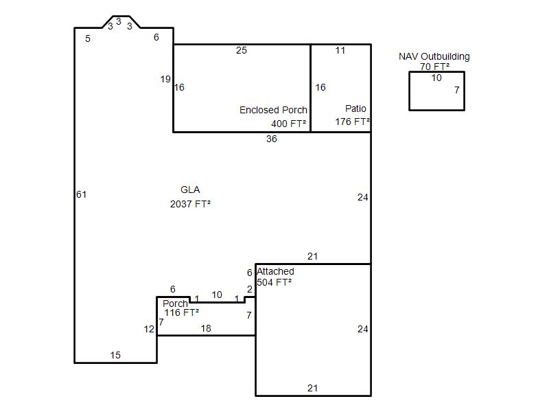
| Photo & Sketch (if available) | Comp Sales (ordered by relevancy) |
|
||||||||||||||||||
|
||||||||||||||||||||
| Value History (*The County Treasurer 405-713-1300 posts & collects actual tax amounts. Contact information HERE) | |||||||||||||
|---|---|---|---|---|---|---|---|---|---|---|---|---|---|
| Year | Market Value | Taxable Mkt Value | Gross Assessed | Exemption | Net Assessed | Millage | Est. Tax | Tax Savings | |||||
|
2025 |
257,000 |
257,000 |
28,270 |
0 |
28,270 |
123.17 |
$3,482 |
$0 |
|||||
|
2024 |
256,500 |
121,028 |
13,313 |
1,000 |
12,313 |
122.30 |
$1,506 |
$1,945 |
|||||
|
2023 |
244,000 |
121,028 |
13,313 |
1,000 |
12,313 |
121.91 |
$1,501 |
$1,771 |
|||||
|
2022 |
213,000 |
121,028 |
13,313 |
1,000 |
12,313 |
123.41 |
$1,520 |
$1,372 |
|||||
|
2021 |
183,500 |
121,028 |
13,313 |
1,000 |
12,313 |
122.23 |
$1,505 |
$962 |
|||||
| Property Account Status/Adjustments/Exemptions | ||
|---|---|---|
| Account # | Exemption Description | Amount |
|
R143380110 |
5% Capped Account |
0 |
| Property Deed Transaction History (Recorded in the County Clerk's Office) | |||||||
|---|---|---|---|---|---|---|---|
| Date | Type | Book | Page | Price | Grantor | Grantee | |
|
9/19/2024 |
|
Deeds |
$232,000 |
HARRIS BOBBY D & KATHANELL M |
IXTABALAN JOSE |
||
|
7/25/2011 |
|
Deeds |
$0 |
HARRIS BOBBY D & KATHANELL |
HARRIS BOBBY D & KATHANELL M |
||
|
9/1/1977 |
|
Historical |
$0 |
|
HARRIS BOBBY D & KATHANELL |
||
| Last Mailed Notice of Value (N.O.V.) Information/History | ||||||||
|---|---|---|---|---|---|---|---|---|
| Year | Date | Market Value | Taxable Market Value | Gross Assessed | Exemption | Net Assessed | ||
|
2025 |
02/14/2025 |
257,000 |
257,000 |
28,270 |
0 |
28,270 |
||
|
2024 |
02/13/2024 |
256,500 |
121,028 |
13,313 |
1,000 |
12,313 |
||
|
2023 |
02/14/2023 |
244,000 |
121,028 |
13,313 |
1,000 |
12,313 |
||
|
2022 |
03/15/2022 |
213,000 |
121,028 |
13,313 |
1,000 |
12,313 |
||
|
2021 |
03/19/2021 |
183,500 |
121,028 |
13,313 |
1,000 |
12,313 |
||
| Property Building Permit History | |||||||||||
|---|---|---|---|---|---|---|---|---|---|---|---|
| Issued | Permit # | Provided by | Bldg # | Description | Est Construction Cost | Status | |||||
| No Building Permit records returned. | |||||||||||
| Click button on building number to access detailed information: | ||||||
|---|---|---|---|---|---|---|
| Bldg # | Vacant/Improved Land | Bldg Description | Year Built | SqFt | # Stories | |
|
1 |
Improved |
Ranch 1 Story |
1965 |
2,037 |
1 Stories |
|