|
|
|
| Larry Stein Oklahoma County Assessor (405) 713-1200 - Public Access System |
|
|
|
|
|
|
| Real Property Display - Screen Produced 2/27/2026 9:23:54 PM | ||||
|---|---|---|---|---|
| Account: R142692775 | Type: Residential | Location: |
4108 NW 60TH ST |
|
| Building Name/Occupant: |
|
OKLAHOMA CITY |
||
| Owner Name 1: | JONES KELLY |
Parcel PIN#: |
2844-14-269-2775 |
|
| Owner Name 2: | 1/4 section #: |
2844 |
||
| Owner Name 3: | Parent Acct: |
|
||
| Billing Address: | 4108 NW 60TH ST | Tax District: |
|
|
| City, State, Zip | OKLAHOMA CITY, OK 73112-1302 | School System: |
Putnam City #1 |
|
|
Country: (If noted) |
Land Size: |
0.1993 Acres |
||
|
Land Value: 37,324 |
|
|||
|
Sect 11-T12N-R4W Qtr NW |
LAKERIDGE
Block
010
Lot
003
|
|||
| Full Legal Description: LAKERIDGE 010 003 |
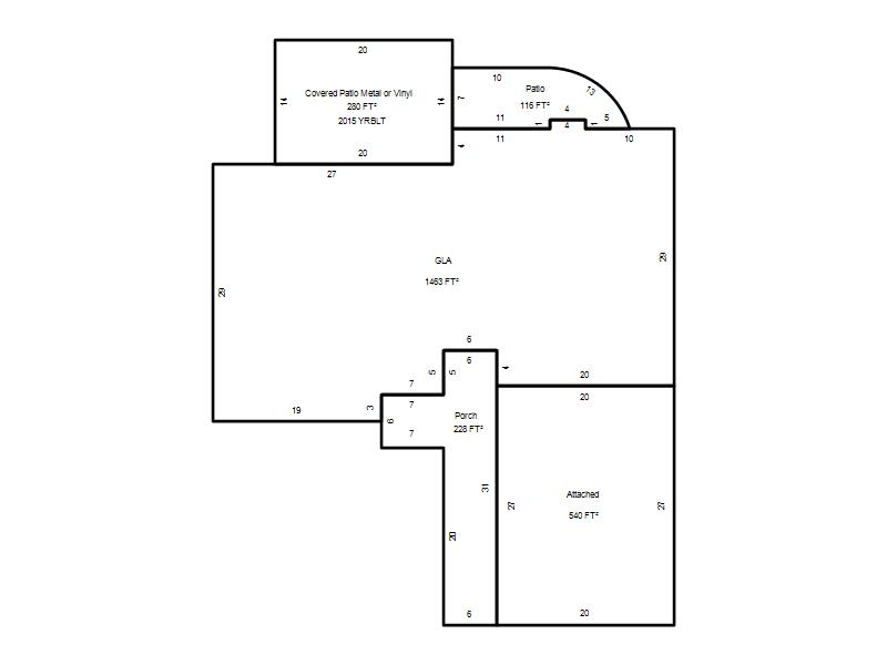
| Photo & Sketch (if available) | Comp Sales (ordered by relevancy) |
|
||||||||||||||||||
|
||||||||||||||||||||
| Value History (*The County Treasurer 405-713-1300 posts & collects actual tax amounts. Contact information HERE) | |||||||||||||
|---|---|---|---|---|---|---|---|---|---|---|---|---|---|
| Year | Market Value | Taxable Mkt Value | Gross Assessed | Exemption | Net Assessed | Millage | Est. Tax | Tax Savings | |||||
|
2025 |
243,000 |
243,000 |
26,730 |
1,000 |
25,730 |
123.17 |
$3,169 |
$123 |
|||||
|
2024 |
242,500 |
242,500 |
26,675 |
1,000 |
25,675 |
122.30 |
$3,140 |
$122 |
|||||
|
2023 |
189,000 |
140,215 |
15,423 |
1,000 |
14,423 |
121.91 |
$1,758 |
$776 |
|||||
|
2022 |
167,000 |
136,132 |
14,973 |
1,000 |
13,973 |
123.41 |
$1,725 |
$542 |
|||||
|
2021 |
142,500 |
132,167 |
14,537 |
1,000 |
13,537 |
122.23 |
$1,655 |
$261 |
|||||
| Property Account Status/Adjustments/Exemptions | ||
|---|---|---|
| Account # | Exemption Description | Amount |
|
R142692775 |
3% Cap Homestead |
0 |
|
R142692775 |
Homestead |
1,000 |
| Property Deed Transaction History (Recorded in the County Clerk's Office) | ||||||||||
|---|---|---|---|---|---|---|---|---|---|---|
| Date | Type | Book | Page | Price | Grantor | Grantee | ||||
|
9/22/2023 |
|
Deeds |
$239,000 |
NARNEY DENNIS W TRS |
JONES KELLY |
|||||
|
12/22/2015 |
|
Deeds |
$0 |
NARNEY DENNIS W |
NARNEY DENNIS W TRS |
|||||
|
1/5/1995 |
|
Historical |
$30,000 |
JOHNSON WILLIAM JR |
NARNEY DENNIS W |
|||||
|
11/14/1994 |
|
Historical |
$0 |
JOHNSON WILLIAM C |
JOHNSON WILLIAM JR |
|||||
|
2/12/1992 |
|
Historical |
$0 |
JOHNSON WM C & ELSIE |
JOHNSON WILLIAM C |
|||||
| Last Mailed Notice of Value (N.O.V.) Information/History | ||||||||
|---|---|---|---|---|---|---|---|---|
| Year | Date | Market Value | Taxable Market Value | Gross Assessed | Exemption | Net Assessed | ||
|
2025 |
02/14/2025 |
243,000 |
243,000 |
26,730 |
1,000 |
25,730 |
||
|
2024 |
02/13/2024 |
242,500 |
242,500 |
26,675 |
1,000 |
25,675 |
||
|
2023 |
02/14/2023 |
189,000 |
140,215 |
15,423 |
1,000 |
14,423 |
||
|
2022 |
03/15/2022 |
167,000 |
136,132 |
14,973 |
1,000 |
13,973 |
||
|
2021 |
03/19/2021 |
142,500 |
132,167 |
14,538 |
1,000 |
13,538 |
||
| Property Building Permit History | |||||||||||
|---|---|---|---|---|---|---|---|---|---|---|---|
| Issued | Permit # | Provided by | Bldg # | Description | Est Construction Cost | Status | |||||
| No Building Permit records returned. | |||||||||||
| Click button on building number to access detailed information: | ||||||
|---|---|---|---|---|---|---|
| Bldg # | Vacant/Improved Land | Bldg Description | Year Built | SqFt | # Stories | |
|
1 |
Improved |
Ranch 1 Story |
1960 |
1,463 |
1 Stories |
|