|
|
|
| Larry Stein Oklahoma County Assessor (405) 713-1200 - Public Access System |
|
|
|
|
|
|
| Real Property Display - Screen Produced 4/28/2026 10:53:03 PM | ||||
|---|---|---|---|---|
| Account: R188720900 | Type: Residential | Location: |
4404 N STATE ST |
|
| Building Name/Occupant: |
|
WARR ACRES |
||
| Owner Name 1: | DROUGHT SUSAN |
Parcel PIN#: |
2860-18-872-0900 |
|
| Owner Name 2: | 1/4 section #: |
2860 |
||
| Owner Name 3: | Parent Acct: |
|
||
| Billing Address: | 4404 N STATE ST | Tax District: |
|
|
| City, State, Zip | WARR ACRES, OK 73122-4315 | School System: |
Putnam City #1 |
|
|
Country: (If noted) |
Land Size: |
0.2000 Acres |
||
|
Land Value: 29,614 |
|
|||
|
Sect 15-T12N-R4W Qtr NW |
TATE LAWSON ADDITION
Block
001
Lot
009
|
|||
| Full Legal Description: TATE LAWSON ADDITION 001 009 |
| Value History (*The County Treasurer 405-713-1300 posts & collects actual tax amounts. Contact information HERE) | |||||||||||||
|---|---|---|---|---|---|---|---|---|---|---|---|---|---|
| Year | Market Value | Taxable Mkt Value | Gross Assessed | Exemption | Net Assessed | Millage | Est. Tax | Tax Savings | |||||
|
2026 |
125,000 |
125,000 |
13,750 |
0 |
13,750 |
115.77 |
$1,592 |
$0 |
|||||
|
2025 |
93,500 |
74,023 |
8,141 |
0 |
8,141 |
115.77 |
$943 |
$248 |
|||||
|
2024 |
92,000 |
70,499 |
7,754 |
0 |
7,754 |
114.25 |
$886 |
$270 |
|||||
| Property Account Status/Adjustments/Exemptions | ||||||
|---|---|---|---|---|---|---|
| Account # | Exemption Description | Amount | ||||
| No adjustment/exemption records returned. | ||||||
| Property Deed Transaction History (Recorded in the County Clerk's Office) | ||||||||||
|---|---|---|---|---|---|---|---|---|---|---|
| Date | Type | Book | Page | Price | Grantor | Grantee | ||||
|
8/13/2025 |
|
Deeds |
$165,000 |
HEPPLER ASHLEY N |
DROUGHT SUSAN |
|||||
|
12/31/2008 |
|
Deeds |
$60,000 |
METRO OKC LLC |
HEPPLER ASHLEY N |
|||||
|
5/8/1997 |
|
Historical |
$0 |
DAY WILLARD D & MARY H |
METRO OKC LLC |
|||||
| Last Mailed Notice of Value (N.O.V.) Information/History | ||||||||
|---|---|---|---|---|---|---|---|---|
| Year | Date | Market Value | Taxable Market Value | Gross Assessed | Exemption | Net Assessed | ||
|
2026 |
02/23/2026 |
125,000 |
125,000 |
13,750 |
0 |
13,750 |
||
|
2025 |
02/14/2025 |
93,500 |
74,023 |
8,141 |
0 |
8,141 |
||
|
2024 |
02/13/2024 |
92,000 |
70,499 |
7,754 |
0 |
7,754 |
||
| Property Building Permit History | |||||||||||
|---|---|---|---|---|---|---|---|---|---|---|---|
| Issued | Permit # | Provided by | Bldg # | Description | Est Construction Cost | Status | |||||
| No Building Permit records returned. | |||||||||||
| Click button below to access detailed information and additional property photos: | ||||||
|---|---|---|---|---|---|---|
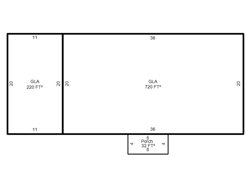
| Bldg # | Vacant/Improved Land | Bldg Description | Year Built | SqFt | # Stories | |
|
1 |
Improved |
Ranch 1 Story |
1950 |
940 |
1 Stories |
|