|
|
|
| Larry Stein Oklahoma County Assessor (405) 713-1200 - Public Access System |
|
|
|
|
|
|
| Real Property Display - Screen Produced 4/4/2026 8:52:08 PM | ||||
|---|---|---|---|---|
| Account: R175311685 | Type: Residential | Location: |
3724 N MARKWELL AVE |
|
| Building Name/Occupant: |
|
BETHANY |
||
| Owner Name 1: | ESPARZA JESUS L MARTINEZ |
Parcel PIN#: |
2870-17-531-1685 |
|
| Owner Name 2: | 1/4 section #: |
2870 |
||
| Owner Name 3: | Parent Acct: |
|
||
| Billing Address: | 3724 N MARKWELL AVE | Tax District: |
|
|
| City, State, Zip | BETHANY, OK 73008-3551 | School System: |
Putnam City #1 |
|
|
Country: (If noted) |
Land Size: |
0.1791 Acres |
||
|
Land Value: 31,980 |
|
|||
|
Sect 18-T12N-R4W Qtr SE |
LEWALLENS WESTRN SANDS 2ND
Block
012
Lot
002
|
|||
| Full Legal Description: LEWALLENS WESTRN SANDS 2ND 012 002 |
| Photo & Sketch (if available) | Comp Sales (ordered by relevancy) |
|
||||||||||||||||||
|
||||||||||||||||||||
| Value History (*The County Treasurer 405-713-1300 posts & collects actual tax amounts. Contact information HERE) | |||||||||||||
|---|---|---|---|---|---|---|---|---|---|---|---|---|---|
| Year | Market Value | Taxable Mkt Value | Gross Assessed | Exemption | Net Assessed | Millage | Est. Tax | Tax Savings | |||||
|
2026 |
180,000 |
180,000 |
19,800 |
0 |
19,800 |
122.14 |
$2,418 |
$0 |
|||||
|
2025 |
182,000 |
182,000 |
20,020 |
0 |
20,020 |
122.14 |
$2,445 |
$0 |
|||||
|
2024 |
181,500 |
149,911 |
16,490 |
0 |
16,490 |
120.52 |
$1,987 |
$419 |
|||||
|
2023 |
164,000 |
142,773 |
15,704 |
0 |
15,704 |
123.06 |
$1,933 |
$287 |
|||||
|
2022 |
140,000 |
135,975 |
14,957 |
0 |
14,957 |
112.54 |
$1,683 |
$50 |
|||||
| Property Account Status/Adjustments/Exemptions | ||
|---|---|---|
| Account # | Exemption Description | Amount |
|
R175311685 |
5% Capped Account |
0 |
| Property Deed Transaction History (Recorded in the County Clerk's Office) | ||||||||||
|---|---|---|---|---|---|---|---|---|---|---|
| Date | Type | Book | Page | Price | Grantor | Grantee | ||||
|
7/10/2024 |
|
Deeds |
$181,000 |
W3ILLIAMS KEYTON C |
ESPARZA JESUS L MARTINEZ |
|||||
|
1/18/2019 |
|
Deeds |
$119,500 |
GOODE GERALDENE M |
WILLIAMS KEYTON C |
|||||
|
9/12/2017 |
|
Deeds |
$108,000 |
NOLAND JAROD K |
GOODE GERALDENE M |
|||||
|
12/21/2012 |
|
Deeds |
$96,000 |
ASSEF MIKE S TRS ASSEF MIKE S LIV TRUST |
NOLAND JAROD K |
|||||
|
6/22/2012 |
|
Deeds |
$50,000 |
WHITE CAROLE L TRS WHITE CAROLE L REV LIV TRUST |
ASSEF MIKE S TRS ASSEF MIKE S LIV TRUST |
|||||
| Last Mailed Notice of Value (N.O.V.) Information/History | ||||||||
|---|---|---|---|---|---|---|---|---|
| Year | Date | Market Value | Taxable Market Value | Gross Assessed | Exemption | Net Assessed | ||
|
2025 |
02/14/2025 |
182,000 |
182,000 |
20,020 |
0 |
20,020 |
||
|
2024 |
02/13/2024 |
181,500 |
149,911 |
16,490 |
0 |
16,490 |
||
|
2023 |
02/14/2023 |
164,000 |
142,773 |
15,704 |
0 |
15,704 |
||
|
2022 |
03/15/2022 |
140,000 |
135,975 |
14,957 |
0 |
14,957 |
||
|
2021 |
03/19/2021 |
129,500 |
129,500 |
14,245 |
0 |
14,245 |
||
| Property Building Permit History | |||||||||||
|---|---|---|---|---|---|---|---|---|---|---|---|
| Issued | Permit # | Provided by | Bldg # | Description | Est Construction Cost | Status | |||||
| No Building Permit records returned. | |||||||||||
| Click button on building number to access detailed information: | ||||||
|---|---|---|---|---|---|---|
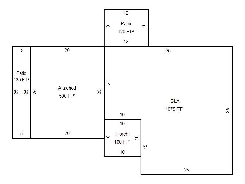
| Bldg # | Vacant/Improved Land | Bldg Description | Year Built | SqFt | # Stories | |
|
1 |
Improved |
Ranch 1 Story |
1964 |
1,075 |
1 Stories |
|