|
|
|
| Larry Stein Oklahoma County Assessor (405) 713-1200 - Public Access System |
|
|
|
|
|
|
| Real Property Display - Screen Produced 3/13/2026 10:27:50 AM | ||||
|---|---|---|---|---|
| Account: R153271100 | Type: Residential | Location: |
4928 JEFFERY DR |
|
| Building Name/Occupant: |
|
DEL CITY |
||
| Owner Name 1: | SAENZ AALIYAH & OSWALDO |
Parcel PIN#: |
1417-15-327-1100 |
|
| Owner Name 2: | 1/4 section #: |
1417 |
||
| Owner Name 3: | Parent Acct: |
|
||
| Billing Address: | 4928 JEFFERY DR | Tax District: |
|
|
| City, State, Zip | DEL CITY, OK 73115-4550 | School System: |
Mid-Del #52 |
|
|
Country: (If noted) |
Land Size: |
0.1625 Acres |
||
|
Land Value: 24,780 |
|
|||
|
Sect 5-T11N-R2W Qtr NE |
DEL CREST HTS 4TH
Block
002
Lot
003
|
|||
| Full Legal Description: DEL CREST HTS 4TH 002 003 |
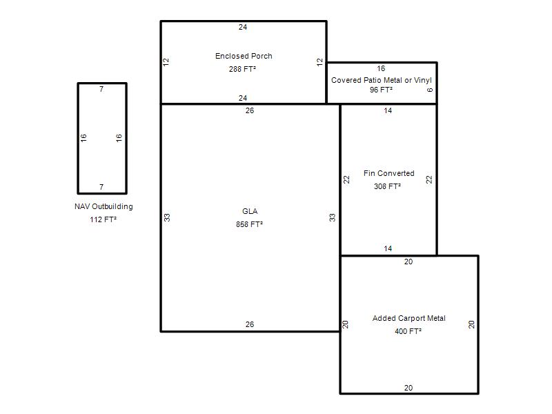
| Photo & Sketch (if available) | Comp Sales (ordered by relevancy) |
|
||||||||||||||||||
|
||||||||||||||||||||
| Value History (*The County Treasurer 405-713-1300 posts & collects actual tax amounts. Contact information HERE) | |||||||||||||
|---|---|---|---|---|---|---|---|---|---|---|---|---|---|
| Year | Market Value | Taxable Mkt Value | Gross Assessed | Exemption | Net Assessed | Millage | Est. Tax | Tax Savings | |||||
|
2025 |
137,000 |
96,356 |
10,598 |
0 |
10,598 |
114.72 |
$1,216 |
$513 |
|||||
|
2024 |
126,000 |
91,768 |
10,093 |
0 |
10,093 |
117.21 |
$1,183 |
$441 |
|||||
|
2023 |
110,500 |
87,399 |
9,613 |
0 |
9,613 |
112.46 |
$1,081 |
$286 |
|||||
|
2022 |
100,500 |
83,238 |
9,156 |
0 |
9,156 |
110.76 |
$1,014 |
$210 |
|||||
|
2021 |
86,000 |
79,275 |
8,720 |
0 |
8,720 |
114.70 |
$1,000 |
$85 |
|||||
| Property Account Status/Adjustments/Exemptions | ||||||
|---|---|---|---|---|---|---|
| Account # | Exemption Description | Amount | ||||
| No adjustment/exemption records returned. | ||||||
| Property Deed Transaction History (Recorded in the County Clerk's Office) | ||||||||||
|---|---|---|---|---|---|---|---|---|---|---|
| Date | Type | Book | Page | Price | Grantor | Grantee | ||||
|
3/19/2025 |
|
Deeds |
$165,000 |
PRIME OKC PROPERTIES LLC |
SAENZ AALIYAH & OSWALDO |
|||||
|
11/26/2014 |
|
Deeds |
$47,000 |
WHISENHUNT JEREMY & LARA A |
WEICHERT WORKFORCE MOBILITY INC |
|||||
|
11/26/2014 |
|
Deeds |
$47,000 |
WEICHERT WORKFORCE MOBILITY INC |
PRIME OKC PROPERTIES LLC |
|||||
|
4/6/2006 |
|
Deeds |
$54,000 |
DRISKILL NELDA LENORA |
WHISENHUNT JEREMY & LARA A |
|||||
|
12/15/2005 |
|
Hmstd Off & |
$0 |
WHISENHUNT LEONARD O |
DRISKILL NELDA LENORA |
|||||
| Last Mailed Notice of Value (N.O.V.) Information/History | ||||||||
|---|---|---|---|---|---|---|---|---|
| Year | Date | Market Value | Taxable Market Value | Gross Assessed | Exemption | Net Assessed | ||
|
2026 |
02/06/2026 |
162,500 |
162,500 |
17,875 |
0 |
17,875 |
||
|
2025 |
01/31/2025 |
137,000 |
96,356 |
10,598 |
0 |
10,598 |
||
|
2024 |
01/22/2024 |
126,000 |
91,768 |
10,093 |
0 |
10,093 |
||
|
2023 |
01/23/2023 |
110,500 |
87,399 |
9,613 |
0 |
9,613 |
||
|
2022 |
02/22/2022 |
100,500 |
83,238 |
9,156 |
0 |
9,156 |
||
| Property Building Permit History | |||||||||||
|---|---|---|---|---|---|---|---|---|---|---|---|
| Issued | Permit # | Provided by | Bldg # | Description | Est Construction Cost | Status | |||||
| No Building Permit records returned. | |||||||||||
| Click button on building number to access detailed information: | ||||||
|---|---|---|---|---|---|---|
| Bldg # | Vacant/Improved Land | Bldg Description | Year Built | SqFt | # Stories | |
|
1 |
Improved |
Ranch 1 Story |
1965 |
858 |
1 Stories |
|