|
|
|
| Larry Stein Oklahoma County Assessor (405) 713-1200 - Public Access System |
|
|
|
|
|
|
| Real Property Display - Screen Produced 3/13/2026 12:03:06 PM | ||||
|---|---|---|---|---|
| Account: R153271130 | Type: Residential | Location: |
4916 JEFFERY DR |
|
| Building Name/Occupant: |
|
DEL CITY |
||
| Owner Name 1: | KENNER ERIK RONALD |
Parcel PIN#: |
1417-15-327-1130 |
|
| Owner Name 2: | 1/4 section #: |
1417 |
||
| Owner Name 3: | Parent Acct: |
|
||
| Billing Address: | 4916 JEFFERY DR | Tax District: |
|
|
| City, State, Zip | DEL CITY, OK 73115 | School System: |
Mid-Del #52 |
|
|
Country: (If noted) |
Land Size: |
0.1625 Acres |
||
|
Land Value: 24,780 |
|
|||
|
Sect 5-T11N-R2W Qtr NE |
DEL CREST HTS 4TH
Block
002
Lot
006
|
|||
| Full Legal Description: DEL CREST HTS 4TH 002 006 |
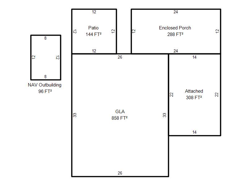
| Photo & Sketch (if available) | Comp Sales (ordered by relevancy) |
|
||||||||||||||||||
|
||||||||||||||||||||
| Value History (*The County Treasurer 405-713-1300 posts & collects actual tax amounts. Contact information HERE) | |||||||||||||
|---|---|---|---|---|---|---|---|---|---|---|---|---|---|
| Year | Market Value | Taxable Mkt Value | Gross Assessed | Exemption | Net Assessed | Millage | Est. Tax | Tax Savings | |||||
|
2025 |
159,000 |
154,350 |
16,978 |
0 |
16,978 |
114.72 |
$1,948 |
$59 |
|||||
|
2024 |
147,000 |
147,000 |
16,170 |
0 |
16,170 |
117.21 |
$1,895 |
$0 |
|||||
|
2023 |
146,000 |
146,000 |
16,060 |
0 |
16,060 |
112.46 |
$1,806 |
$0 |
|||||
|
2022 |
93,000 |
74,025 |
8,142 |
0 |
8,142 |
110.76 |
$902 |
$231 |
|||||
|
2021 |
79,500 |
70,500 |
7,755 |
1,000 |
6,755 |
114.70 |
$775 |
$228 |
|||||
| Property Account Status/Adjustments/Exemptions | ||
|---|---|---|
| Account # | Exemption Description | Amount |
|
R153271130 |
5% Capped Account |
0 |
| Property Deed Transaction History (Recorded in the County Clerk's Office) | |||||||
|---|---|---|---|---|---|---|---|
| Date | Type | Book | Page | Price | Grantor | Grantee | |
|
3/3/2022 |
|
Deeds |
$145,000 |
GREENLEE LINDA L TRS |
KENNER ERIK RONALD |
||
|
10/4/2021 |
|
Deeds |
$0 |
GREENLEE LINDA MCNEES |
GREENLEE LINDA L TRS |
||
|
5/5/2000 |
|
Deeds |
$0 |
GREENLEE LINDA L & MICHAEL E |
GREENLEE LINDA MCNEES |
||
|
10/1/1981 |
|
Historical |
$0 |
|
GREENLEE LINDA L & MICHAEL E |
||
| Last Mailed Notice of Value (N.O.V.) Information/History | ||||||||
|---|---|---|---|---|---|---|---|---|
| Year | Date | Market Value | Taxable Market Value | Gross Assessed | Exemption | Net Assessed | ||
|
2026 |
02/06/2026 |
156,000 |
156,000 |
17,160 |
0 |
17,160 |
||
|
2025 |
01/31/2025 |
159,000 |
154,350 |
16,978 |
0 |
16,978 |
||
|
2024 |
01/22/2024 |
147,000 |
147,000 |
16,170 |
0 |
16,170 |
||
|
2023 |
01/23/2023 |
146,000 |
146,000 |
16,060 |
0 |
16,060 |
||
|
2022 |
02/22/2022 |
93,000 |
74,025 |
8,142 |
0 |
8,142 |
||
| Property Building Permit History | |||||||||||
|---|---|---|---|---|---|---|---|---|---|---|---|
| Issued | Permit # | Provided by | Bldg # | Description | Est Construction Cost | Status | |||||
| No Building Permit records returned. | |||||||||||
| Click button on building number to access detailed information: | ||||||
|---|---|---|---|---|---|---|
| Bldg # | Vacant/Improved Land | Bldg Description | Year Built | SqFt | # Stories | |
|
1 |
Improved |
Ranch 1 Story |
1965 |
858 |
1 Stories |
|