|
|
|
| Larry Stein Oklahoma County Assessor (405) 713-1200 - Public Access System |
|
|
|
|
|
|
| Real Property Display - Screen Produced 2/27/2026 9:23:54 PM | ||||
|---|---|---|---|---|
| Account: R144821555 | Type: Residential | Location: |
2705 N WHEELER ST |
|
| Building Name/Occupant: |
|
OKLAHOMA CITY |
||
| Owner Name 1: | MARTINEZ VALERIA HERNANDEZ |
Parcel PIN#: |
2882-14-482-1555 |
|
| Owner Name 2: | DE LARA JOSE VALDEZ | 1/4 section #: |
2882 |
|
| Owner Name 3: | Parent Acct: |
|
||
| Billing Address: | 2705 N WHEELER ST | Tax District: |
|
|
| City, State, Zip | OKLAHOMA CITY, OK 73127-1439 | School System: |
Putnam City #1 |
|
|
Country: (If noted) |
Land Size: |
0.1707 Acres |
||
|
Land Value: 29,736 |
|
|||
|
Sect 21-T12N-R4W Qtr SE |
TANGLEWOOD HILLS 4TH
Block
013
Lot
008
|
|||
| Full Legal Description: TANGLEWOOD HILLS 4TH 013 008 |
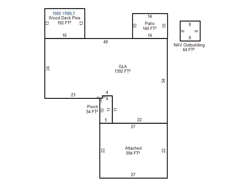
| Photo & Sketch (if available) | Comp Sales (ordered by relevancy) |
|
||||||||||||||||||
|
||||||||||||||||||||
| Value History (*The County Treasurer 405-713-1300 posts & collects actual tax amounts. Contact information HERE) | |||||||||||||
|---|---|---|---|---|---|---|---|---|---|---|---|---|---|
| Year | Market Value | Taxable Mkt Value | Gross Assessed | Exemption | Net Assessed | Millage | Est. Tax | Tax Savings | |||||
|
2025 |
223,000 |
223,000 |
24,530 |
0 |
24,530 |
123.17 |
$3,021 |
$0 |
|||||
|
2024 |
216,500 |
178,852 |
19,672 |
0 |
19,672 |
122.30 |
$2,406 |
$506 |
|||||
|
2023 |
211,000 |
170,336 |
18,736 |
0 |
18,736 |
121.91 |
$2,284 |
$545 |
|||||
|
2022 |
183,500 |
162,225 |
17,844 |
0 |
17,844 |
123.41 |
$2,202 |
$289 |
|||||
|
2021 |
154,500 |
154,500 |
16,995 |
0 |
16,995 |
122.23 |
$2,077 |
$0 |
|||||
| Property Account Status/Adjustments/Exemptions | ||
|---|---|---|
| Account # | Exemption Description | Amount |
|
R144821555 |
5% Capped Account |
0 |
| Property Deed Transaction History (Recorded in the County Clerk's Office) | ||||||||||
|---|---|---|---|---|---|---|---|---|---|---|
| Date | Type | Book | Page | Price | Grantor | Grantee | ||||
|
4/14/2024 |
|
Deeds |
$205,000 |
BADCOCK MELISSA |
MARTINEZ VALERIA HERNANDEZ |
|||||
|
10/30/2020 |
|
Deeds |
$161,000 |
SYLKE STEVEN S |
BADCOCK MELISSA |
|||||
|
11/10/2015 |
|
Deeds |
$125,000 |
MASON STEPHEN L |
SYLKE STEVEN S |
|||||
|
11/8/2013 |
|
Other |
$0 |
SECRETARY OF HOUSING & URBAN DEV |
MASON STEPHEN L |
|||||
|
1/28/2013 |
|
Hmstd Off & |
$0 |
STEVENS BRADLEY & PATRICIA |
SECRETARY OF HOUSING & URBAN DEV |
|||||
| Last Mailed Notice of Value (N.O.V.) Information/History | ||||||||
|---|---|---|---|---|---|---|---|---|
| Year | Date | Market Value | Taxable Market Value | Gross Assessed | Exemption | Net Assessed | ||
|
2025 |
02/14/2025 |
223,000 |
223,000 |
24,530 |
0 |
24,530 |
||
|
2024 |
02/13/2024 |
216,500 |
178,852 |
19,672 |
0 |
19,672 |
||
|
2023 |
02/14/2023 |
211,000 |
170,336 |
18,736 |
0 |
18,736 |
||
|
2022 |
03/15/2022 |
183,500 |
162,225 |
17,844 |
0 |
17,844 |
||
|
2021 |
03/19/2021 |
154,500 |
154,500 |
16,995 |
0 |
16,995 |
||
| Property Building Permit History | |||||||||||
|---|---|---|---|---|---|---|---|---|---|---|---|
| Issued | Permit # | Provided by | Bldg # | Description | Est Construction Cost | Status | |||||
| No Building Permit records returned. | |||||||||||
| Click button on building number to access detailed information: | ||||||
|---|---|---|---|---|---|---|
| Bldg # | Vacant/Improved Land | Bldg Description | Year Built | SqFt | # Stories | |
|
1 |
Improved |
Ranch 1 Story |
1963 |
1,392 |
1 Stories |
|