|
|
|
| Larry Stein Oklahoma County Assessor (405) 713-1200 - Public Access System |
|
|
|
|
|
|
| Real Property Display - Screen Produced 2/27/2026 9:23:53 PM | ||||
|---|---|---|---|---|
| Account: R145051105 | Type: Residential | Location: |
6013 NW 26TH ST |
|
| Building Name/Occupant: |
|
OKLAHOMA CITY |
||
| Owner Name 1: | SAAVEDRA DANIEL |
Parcel PIN#: |
2882-14-505-1105 |
|
| Owner Name 2: | 1/4 section #: |
2882 |
||
| Owner Name 3: | Parent Acct: |
|
||
| Billing Address: | 2424 NW 16TH ST | Tax District: |
|
|
| City, State, Zip | OKLAHOMA CITY, OK 73107-4931 | School System: |
Putnam City #1 |
|
|
Country: (If noted) |
Land Size: |
0.2197 Acres |
||
|
Land Value: 28,710 |
|
|||
|
Sect 21-T12N-R4W Qtr SE |
WHITE OAK HILLS
Block
001
Lot
011
|
|||
| Full Legal Description: WHITE OAK HILLS 001 011 |
| Photo & Sketch (if available) | Comp Sales (ordered by relevancy) |
|
||||||||||||||||||
|
||||||||||||||||||||
| Value History (*The County Treasurer 405-713-1300 posts & collects actual tax amounts. Contact information HERE) | |||||||||||||
|---|---|---|---|---|---|---|---|---|---|---|---|---|---|
| Year | Market Value | Taxable Mkt Value | Gross Assessed | Exemption | Net Assessed | Millage | Est. Tax | Tax Savings | |||||
|
2025 |
169,000 |
169,000 |
18,590 |
0 |
18,590 |
123.17 |
$2,290 |
$0 |
|||||
|
2024 |
163,500 |
128,843 |
14,171 |
0 |
14,171 |
122.30 |
$1,733 |
$466 |
|||||
|
2023 |
158,500 |
122,708 |
13,497 |
0 |
13,497 |
121.91 |
$1,646 |
$480 |
|||||
|
2022 |
137,000 |
116,865 |
12,855 |
0 |
12,855 |
123.41 |
$1,586 |
$273 |
|||||
|
2021 |
115,000 |
111,300 |
12,243 |
0 |
12,243 |
122.23 |
$1,496 |
$50 |
|||||
| Property Account Status/Adjustments/Exemptions | ||
|---|---|---|
| Account # | Exemption Description | Amount |
|
R145051105 |
5% Capped Account |
0 |
| Property Deed Transaction History (Recorded in the County Clerk's Office) | |||||||
|---|---|---|---|---|---|---|---|
| Date | Type | Book | Page | Price | Grantor | Grantee | |
|
11/26/2024 |
|
Deeds |
$175,000 |
YEARGAIN DOUGLAS & MELISSA |
SAAVEDRA DANIEL |
||
|
4/1/1991 |
|
Historical |
$45,964 |
SECRETARY OF VETERANS AFFAIRS |
YEARGAIN DOUGLAS & MELISSA |
||
|
11/5/1990 |
|
Historical |
$0 |
KING JOHN H & DEBBIE K TILLERY |
SECRETARY OF VETERANS AFFAIRS |
||
|
10/1/1982 |
|
Historical |
$0 |
|
KING JOHN H & DEBBIE K TILLERY |
||
| Last Mailed Notice of Value (N.O.V.) Information/History | ||||||||
|---|---|---|---|---|---|---|---|---|
| Year | Date | Market Value | Taxable Market Value | Gross Assessed | Exemption | Net Assessed | ||
|
2025 |
02/14/2025 |
169,000 |
169,000 |
18,590 |
0 |
18,590 |
||
|
2024 |
02/13/2024 |
163,500 |
128,843 |
14,171 |
0 |
14,171 |
||
|
2023 |
02/14/2023 |
158,500 |
122,708 |
13,497 |
0 |
13,497 |
||
|
2022 |
03/15/2022 |
137,000 |
116,865 |
12,855 |
0 |
12,855 |
||
|
2021 |
03/19/2021 |
115,000 |
111,300 |
12,243 |
0 |
12,243 |
||
| Property Building Permit History | ||||||
|---|---|---|---|---|---|---|
| Issued | Permit # | Provided by | Bldg # | Description | Est Construction Cost | Status |
|
10/14/1991 |
10240261 |
OKLAHOMA CITY |
1 |
Burn - Trip |
4,000 |
Inactive |
| Click button on building number to access detailed information: | ||||||
|---|---|---|---|---|---|---|
| Bldg # | Vacant/Improved Land | Bldg Description | Year Built | SqFt | # Stories | |
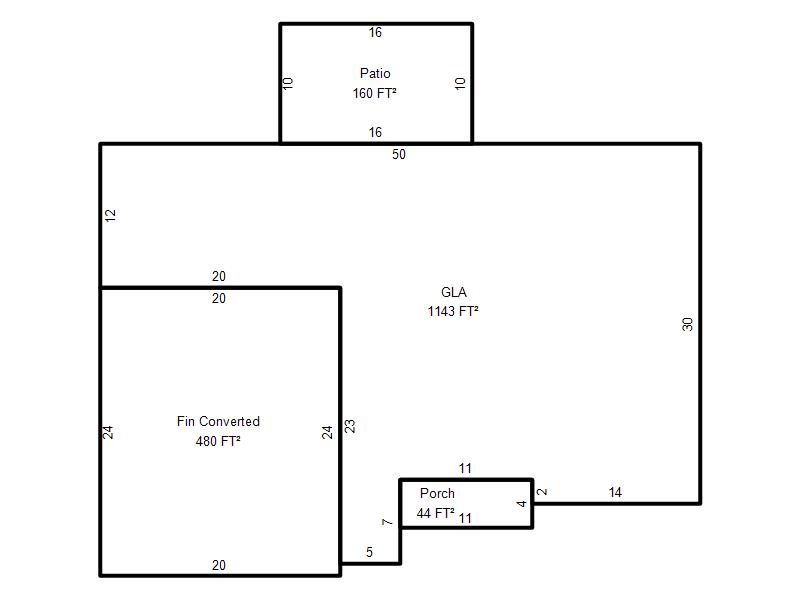
|
1 |
Improved |
Ranch 1 Story |
1962 |
1,143 |
1 Stories |
|