|
|
|
| Larry Stein Oklahoma County Assessor (405) 713-1200 - Public Access System |
|
|
|
|
|
|
| Real Property Display - Screen Produced 2/28/2026 5:19:07 AM | ||||
|---|---|---|---|---|
| Account: R146371130 | Type: Residential | Location: |
2912 N WINDSOR BLVD |
|
| Building Name/Occupant: |
|
OKLAHOMA CITY |
||
| Owner Name 1: | DE LEON LUZ MARIA |
Parcel PIN#: |
2886-14-637-1130 |
|
| Owner Name 2: | 1/4 section #: |
2886 |
||
| Owner Name 3: | Parent Acct: |
|
||
| Billing Address: | 4207 NW 19TH ST | Tax District: |
|
|
| City, State, Zip | OKLAHOMA CITY, OK 73107 | School System: |
Putnam City #1 |
|
|
Country: (If noted) |
Land Size: |
0.2704 Acres |
||
|
Land Value: 53,010 |
|
|||
|
Sect 22-T12N-R4W Qtr SE |
WINDSOR HILLS 7TH
Block
036
Lot
002
|
|||
| Full Legal Description: WINDSOR HILLS 7TH 036 002 |
| Photo & Sketch (if available) | Comp Sales (ordered by relevancy) |
|
||||||||||||||||||
|
||||||||||||||||||||
| Value History (*The County Treasurer 405-713-1300 posts & collects actual tax amounts. Contact information HERE) | |||||||||||||
|---|---|---|---|---|---|---|---|---|---|---|---|---|---|
| Year | Market Value | Taxable Mkt Value | Gross Assessed | Exemption | Net Assessed | Millage | Est. Tax | Tax Savings | |||||
|
2025 |
313,500 |
313,500 |
34,485 |
0 |
34,485 |
123.17 |
$4,248 |
$0 |
|||||
|
2024 |
313,000 |
259,720 |
28,568 |
0 |
28,568 |
122.30 |
$3,494 |
$717 |
|||||
|
2023 |
292,500 |
247,353 |
27,208 |
0 |
27,208 |
121.91 |
$3,317 |
$605 |
|||||
|
2022 |
264,500 |
235,575 |
25,912 |
0 |
25,912 |
123.41 |
$3,198 |
$393 |
|||||
|
2021 |
230,500 |
224,358 |
24,679 |
0 |
24,679 |
122.23 |
$3,017 |
$83 |
|||||
| Property Account Status/Adjustments/Exemptions | ||
|---|---|---|
| Account # | Exemption Description | Amount |
|
R146371130 |
5% Capped Account |
0 |
| Property Deed Transaction History (Recorded in the County Clerk's Office) | |||||||
|---|---|---|---|---|---|---|---|
| Date | Type | Book | Page | Price | Grantor | Grantee | |
|
3/12/2024 |
|
Deeds |
$300,000 |
CHAIREZ TIMOTHY J |
DE LEON LUZ MARIA |
||
|
4/1/2014 |
|
Deeds |
$175,000 |
WARING ROBERT W TRS WARING ROBERT 2013 FAMILY TRUST |
CHAIREZ TIMOTHY J |
||
|
12/24/2013 |
|
Deeds |
$0 |
WARING ROBERT W & JO ANN E |
WARING ROBERT W |
||
|
12/24/2013 |
|
Deeds |
$0 |
WARING ROBERT W |
WARING ROBERT W TRS WARING ROBERT W 2013 FAMILY TRUST |
||
|
11/11/1911 |
|
Historical |
$0 |
|
WARING ROBERT W & JO ANN E |
||
| Last Mailed Notice of Value (N.O.V.) Information/History | ||||||||
|---|---|---|---|---|---|---|---|---|
| Year | Date | Market Value | Taxable Market Value | Gross Assessed | Exemption | Net Assessed | ||
|
2025 |
02/14/2025 |
313,500 |
313,500 |
34,485 |
0 |
34,485 |
||
|
2024 |
02/13/2024 |
313,000 |
259,720 |
28,568 |
0 |
28,568 |
||
|
2024 |
04/05/2024 |
313,000 |
259,720 |
28,568 |
0 |
28,568 |
||
|
2023 |
02/14/2023 |
292,500 |
247,353 |
27,208 |
0 |
27,208 |
||
|
2022 |
03/15/2022 |
264,500 |
235,575 |
25,912 |
0 |
25,912 |
||
| Property Building Permit History | |||||||||||
|---|---|---|---|---|---|---|---|---|---|---|---|
| Issued | Permit # | Provided by | Bldg # | Description | Est Construction Cost | Status | |||||
| No Building Permit records returned. | |||||||||||
| Click button on building number to access detailed information: | ||||||
|---|---|---|---|---|---|---|
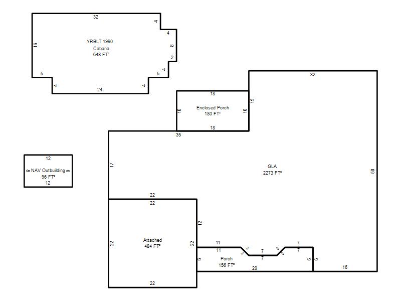
| Bldg # | Vacant/Improved Land | Bldg Description | Year Built | SqFt | # Stories | |
|
1 |
Improved |
Ranch 1 Story |
1965 |
2,273 |
1 Stories |
|