|
|
|
| Larry Stein Oklahoma County Assessor (405) 713-1200 - Public Access System |
|
|
|
|
|
|
| Real Property Display - Screen Produced 2/28/2026 12:33:59 AM | ||||
|---|---|---|---|---|
| Account: R146371580 | Type: Residential | Location: |
2905 N HARVARD AVE |
|
| Building Name/Occupant: |
|
OKLAHOMA CITY |
||
| Owner Name 1: | OCHOA RUIZ AMANDITA LISEIDA |
Parcel PIN#: |
2886-14-637-1580 |
|
| Owner Name 2: | 1/4 section #: |
2886 |
||
| Owner Name 3: | Parent Acct: |
|
||
| Billing Address: | 2905 N HARVARD AVE | Tax District: |
|
|
| City, State, Zip | OKLAHOMA CITY, OK 73127 | School System: |
Putnam City #1 |
|
|
Country: (If noted) |
Land Size: |
0.2342 Acres |
||
|
Land Value: 45,900 |
|
|||
|
Sect 22-T12N-R4W Qtr SE |
WINDSOR HILLS 7TH
Block
037
Lot
023
|
|||
| Full Legal Description: WINDSOR HILLS 7TH 037 023 |
| Photo & Sketch (if available) | Comp Sales (ordered by relevancy) |
|
||||||||||||||||||
|
||||||||||||||||||||
| Value History (*The County Treasurer 405-713-1300 posts & collects actual tax amounts. Contact information HERE) | |||||||||||||
|---|---|---|---|---|---|---|---|---|---|---|---|---|---|
| Year | Market Value | Taxable Mkt Value | Gross Assessed | Exemption | Net Assessed | Millage | Est. Tax | Tax Savings | |||||
|
2025 |
261,000 |
261,000 |
28,710 |
0 |
28,710 |
123.17 |
$3,536 |
$0 |
|||||
|
2024 |
263,000 |
263,000 |
28,930 |
0 |
28,930 |
122.30 |
$3,538 |
$0 |
|||||
|
2023 |
277,000 |
277,000 |
30,470 |
0 |
30,470 |
121.91 |
$3,715 |
$0 |
|||||
|
2022 |
224,000 |
169,591 |
18,654 |
0 |
18,654 |
123.41 |
$2,302 |
$739 |
|||||
|
2021 |
183,500 |
161,516 |
17,766 |
0 |
17,766 |
122.23 |
$2,172 |
$296 |
|||||
| Property Account Status/Adjustments/Exemptions | ||
|---|---|---|
| Account # | Exemption Description | Amount |
|
R146371580 |
5% Capped Account |
0 |
| Property Deed Transaction History (Recorded in the County Clerk's Office) | ||||||||||
|---|---|---|---|---|---|---|---|---|---|---|
| Date | Type | Book | Page | Price | Grantor | Grantee | ||||
|
11/16/2022 |
|
Deeds |
$276,000 |
NGUYEN TRI NHAN |
OCHOA RUIZ AMANDITA LISEIDA |
|||||
|
4/7/2022 |
|
Deeds |
$220,000 |
SOUP TO NUTS LLC |
NGUYEN TRI NHAN |
|||||
|
4/6/2022 |
|
Deeds |
$210,000 |
CUE KEVIN |
SOUP TO NUTS LLC |
|||||
|
8/2/2018 |
|
Hmstd Off & |
$0 |
CUE KEVIN |
CUE KEVIN |
|||||
|
7/19/2017 |
|
Deeds |
$137,000 |
QUICK REAL ESTATE SOLUTIONS LLC |
CUE KEVIN |
|||||
| Last Mailed Notice of Value (N.O.V.) Information/History | ||||||||
|---|---|---|---|---|---|---|---|---|
| Year | Date | Market Value | Taxable Market Value | Gross Assessed | Exemption | Net Assessed | ||
|
2023 |
02/14/2023 |
277,000 |
277,000 |
30,470 |
0 |
30,470 |
||
|
2022 |
03/15/2022 |
224,000 |
169,591 |
18,654 |
0 |
18,654 |
||
|
2021 |
03/19/2021 |
183,500 |
161,516 |
17,766 |
0 |
17,766 |
||
|
2020 |
03/10/2020 |
165,500 |
153,825 |
16,920 |
0 |
16,920 |
||
|
2019 |
04/02/2019 |
146,500 |
146,500 |
16,115 |
0 |
16,115 |
||
| Property Building Permit History | |||||||||||
|---|---|---|---|---|---|---|---|---|---|---|---|
| Issued | Permit # | Provided by | Bldg # | Description | Est Construction Cost | Status | |||||
| No Building Permit records returned. | |||||||||||
| Click button on building number to access detailed information: | ||||||
|---|---|---|---|---|---|---|
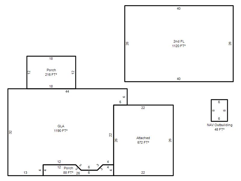
| Bldg # | Vacant/Improved Land | Bldg Description | Year Built | SqFt | # Stories | |
|
1 |
Improved |
2 Story |
1966 |
2,310 |
2 Stories |
|