|
|
|
| Larry Stein Oklahoma County Assessor (405) 713-1200 - Public Access System |
|
|
|
|
|
|
| Real Property Display - Screen Produced 2/28/2026 5:23:21 AM | ||||
|---|---|---|---|---|
| Account: R145861885 | Type: Residential | Location: |
4929 NW 31ST ST |
|
| Building Name/Occupant: |
|
OKLAHOMA CITY |
||
| Owner Name 1: | GRANT TARA LYN |
Parcel PIN#: |
2888-14-586-1885 |
|
| Owner Name 2: | CARD DANIEL | 1/4 section #: |
2888 |
|
| Owner Name 3: | Parent Acct: |
|
||
| Billing Address: | 4929 NW 31ST ST | Tax District: |
|
|
| City, State, Zip | OKLAHOMA CITY, OK 73122 | School System: |
Putnam City #1 |
|
|
Country: (If noted) |
Land Size: |
0.2831 Acres |
||
|
Land Value: 46,854 |
|
|||
|
Sect 22-T12N-R4W Qtr NW |
MERIDIAN HILLS
Block
004
Lot
031
|
|||
| Full Legal Description: MERIDIAN HILLS 004 031 |
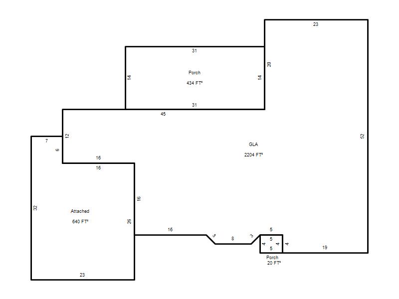
| Photo & Sketch (if available) | Comp Sales (ordered by relevancy) |
|
||||||||||||||||||
|
||||||||||||||||||||
| Value History (*The County Treasurer 405-713-1300 posts & collects actual tax amounts. Contact information HERE) | |||||||||||||
|---|---|---|---|---|---|---|---|---|---|---|---|---|---|
| Year | Market Value | Taxable Mkt Value | Gross Assessed | Exemption | Net Assessed | Millage | Est. Tax | Tax Savings | |||||
|
2025 |
273,500 |
273,500 |
30,085 |
0 |
30,085 |
123.17 |
$3,706 |
$0 |
|||||
|
2024 |
275,000 |
271,425 |
29,856 |
0 |
29,856 |
122.30 |
$3,651 |
$48 |
|||||
|
2023 |
258,500 |
258,500 |
28,435 |
0 |
28,435 |
121.91 |
$3,467 |
$0 |
|||||
|
2022 |
233,000 |
192,865 |
21,213 |
1,000 |
20,213 |
123.41 |
$2,495 |
$668 |
|||||
|
2021 |
196,500 |
187,248 |
20,596 |
1,000 |
19,596 |
122.23 |
$2,395 |
$247 |
|||||
| Property Account Status/Adjustments/Exemptions | ||
|---|---|---|
| Account # | Exemption Description | Amount |
|
R145861885 |
5% Capped Account |
0 |
| Property Deed Transaction History (Recorded in the County Clerk's Office) | |||||||
|---|---|---|---|---|---|---|---|
| Date | Type | Book | Page | Price | Grantor | Grantee | |
|
10/28/2022 |
|
Deeds |
$260,000 |
PORTER ROBERT C & BARBARA S TRS |
GRANT TARA LYN |
||
|
10/28/2022 |
|
Deeds |
$0 |
GRANT TARA LYN |
GRANT TARA LYN |
||
|
1/1/2001 |
|
Deeds |
$0 |
PORTER ROBERT C & BARBARA S |
PORTER ROBERT C & BARBARA S TRS |
||
|
3/1/1975 |
|
Historical |
$0 |
|
PORTER ROBERT C & BARBARA S |
||
| Last Mailed Notice of Value (N.O.V.) Information/History | ||||||||
|---|---|---|---|---|---|---|---|---|
| Year | Date | Market Value | Taxable Market Value | Gross Assessed | Exemption | Net Assessed | ||
|
2025 |
02/14/2025 |
273,500 |
273,500 |
30,085 |
0 |
30,085 |
||
|
2024 |
02/13/2024 |
275,000 |
271,425 |
29,856 |
0 |
29,856 |
||
|
2023 |
02/14/2023 |
258,500 |
258,500 |
28,435 |
0 |
28,435 |
||
|
2022 |
03/15/2022 |
233,000 |
192,865 |
21,213 |
1,000 |
20,213 |
||
|
2021 |
03/19/2021 |
196,500 |
187,248 |
20,597 |
1,000 |
19,597 |
||
| Property Building Permit History | |||||||||||
|---|---|---|---|---|---|---|---|---|---|---|---|
| Issued | Permit # | Provided by | Bldg # | Description | Est Construction Cost | Status | |||||
| No Building Permit records returned. | |||||||||||
| Click button on building number to access detailed information: | ||||||
|---|---|---|---|---|---|---|
| Bldg # | Vacant/Improved Land | Bldg Description | Year Built | SqFt | # Stories | |
|
1 |
Improved |
Ranch 1 Story |
1961 |
2,204 |
1 Stories |
|