|
|
|
| Larry Stein Oklahoma County Assessor (405) 713-1200 - Public Access System |
|
|
|
|
|
|
| Real Property Display - Screen Produced 4/2/2026 3:43:39 PM | ||||
|---|---|---|---|---|
| Account: R068066720 | Type: Residential | Location: |
3717 NW 27TH ST |
|
| Building Name/Occupant: |
|
OKLAHOMA CITY |
||
| Owner Name 1: | REHOBOTH VENTURES LLC |
Parcel PIN#: |
2890-06-806-6720 |
|
| Owner Name 2: | 1/4 section #: |
2890 |
||
| Owner Name 3: | Parent Acct: |
|
||
| Billing Address: | 604 NW 186TH ST | Tax District: |
|
|
| City, State, Zip | EDMOND, OK 73012-1273 | School System: |
Oklahoma City #89 |
|
|
Country: (If noted) |
Land Size: |
0.1736 Acres |
||
|
Land Value: 23,436 |
|
|||
|
Sect 23-T12N-R4W Qtr SE |
MARTINDALE ADDITION
Block
008
Lot
018
|
|||
| Full Legal Description: MARTINDALE ADDITION 008 018 |
| Photo & Sketch (if available) | Comp Sales (ordered by relevancy) |
|
||||||||||||||||||
|
||||||||||||||||||||
| Value History (*The County Treasurer 405-713-1300 posts & collects actual tax amounts. Contact information HERE) | |||||||||||||
|---|---|---|---|---|---|---|---|---|---|---|---|---|---|
| Year | Market Value | Taxable Mkt Value | Gross Assessed | Exemption | Net Assessed | Millage | Est. Tax | Tax Savings | |||||
|
2026 |
103,000 |
103,000 |
11,330 |
0 |
11,330 |
122.90 |
$1,392 |
$0 |
|||||
|
2025 |
101,000 |
101,000 |
11,110 |
0 |
11,110 |
122.90 |
$1,365 |
$0 |
|||||
|
2024 |
99,500 |
99,500 |
10,945 |
0 |
10,945 |
123.89 |
$1,356 |
$0 |
|||||
|
2023 |
92,000 |
65,028 |
7,152 |
0 |
7,152 |
122.82 |
$879 |
$364 |
|||||
|
2022 |
79,000 |
61,932 |
6,811 |
0 |
6,811 |
117.63 |
$801 |
$221 |
|||||
| Property Account Status/Adjustments/Exemptions | ||
|---|---|---|
| Account # | Exemption Description | Amount |
|
R068066720 |
5% Capped Account |
0 |
| Property Deed Transaction History (Recorded in the County Clerk's Office) | |||||||
|---|---|---|---|---|---|---|---|
| Date | Type | Book | Page | Price | Grantor | Grantee | |
|
2/7/2024 |
|
Hmstd Off & |
$0 |
ADEDIPE TAIWO B |
REHOBOTH VENTURES LLC |
||
|
5/8/2023 |
|
Deeds |
$110,000 |
ASSEF MIKE S LIVING TRUST |
ADEDIPE TAIWO B |
||
|
1/30/2002 |
|
Deeds |
$0 |
ASSEF MIKE |
ASSEF MIKE S LIVING TRUST |
||
|
12/26/2001 |
|
Deeds |
$29,000 |
BRANNON WILLIE & CHRYSTAL L |
ASSEF MIKE S |
||
|
9/1/1983 |
|
Historical |
$0 |
|
BRANNON WILLIE & CHRYSTAL L |
||
| Last Mailed Notice of Value (N.O.V.) Information/History | ||||||||
|---|---|---|---|---|---|---|---|---|
| Year | Date | Market Value | Taxable Market Value | Gross Assessed | Exemption | Net Assessed | ||
|
2026 |
02/23/2026 |
103,000 |
103,000 |
11,330 |
0 |
11,330 |
||
|
2025 |
02/14/2025 |
101,000 |
101,000 |
11,110 |
0 |
11,110 |
||
|
2024 |
02/13/2024 |
99,500 |
99,500 |
10,945 |
0 |
10,945 |
||
|
2024 |
04/05/2024 |
99,500 |
99,500 |
10,945 |
0 |
10,945 |
||
|
2023 |
02/14/2023 |
92,000 |
65,028 |
7,152 |
0 |
7,152 |
||
| Property Building Permit History | |||||||||||
|---|---|---|---|---|---|---|---|---|---|---|---|
| Issued | Permit # | Provided by | Bldg # | Description | Est Construction Cost | Status | |||||
| No Building Permit records returned. | |||||||||||
| Click button on building number to access detailed information: | ||||||
|---|---|---|---|---|---|---|
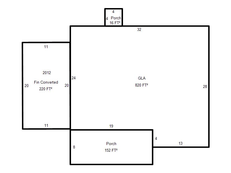
| Bldg # | Vacant/Improved Land | Bldg Description | Year Built | SqFt | # Stories | |
|
1 |
Improved |
Ranch 1 Story |
1941 |
820 |
1 Stories |
|