|
|
|
| Larry Stein Oklahoma County Assessor (405) 713-1200 - Public Access System |
|
|
|
|
|
|
| Real Property Display - Screen Produced 2/27/2026 6:16:24 PM | ||||
|---|---|---|---|---|
| Account: R148140210 | Type: Residential | Location: |
4821 NW 18TH ST |
|
| Building Name/Occupant: |
|
OKLAHOMA CITY |
||
| Owner Name 1: | TH PROPERTY OWNER I LLC |
Parcel PIN#: |
2905-14-814-0210 |
|
| Owner Name 2: | 1/4 section #: |
2905 |
||
| Owner Name 3: | Parent Acct: |
|
||
| Billing Address: | 2875 W RAY RD, Unit 6 430 34788 | Tax District: |
|
|
| City, State, Zip | CHANDLER, AZ 85224 | School System: |
Putnam City #1 |
|
|
Country: (If noted) |
Land Size: |
0.1894 Acres |
||
|
Land Value: 19,388 |
|
|||
|
Sect 27-T12N-R4W Qtr NE |
SALYERS WINDSOR FOREST
Block
002
Lot
011
|
|||
| Full Legal Description: SALYERS WINDSOR FOREST 002 011 |
| Photo & Sketch (if available) | Comp Sales (ordered by relevancy) |
|
||||||||||||||||||
|
||||||||||||||||||||
| Value History (*The County Treasurer 405-713-1300 posts & collects actual tax amounts. Contact information HERE) | |||||||||||||
|---|---|---|---|---|---|---|---|---|---|---|---|---|---|
| Year | Market Value | Taxable Mkt Value | Gross Assessed | Exemption | Net Assessed | Millage | Est. Tax | Tax Savings | |||||
|
2025 |
206,500 |
206,500 |
22,715 |
0 |
22,715 |
123.17 |
$2,798 |
$0 |
|||||
|
2024 |
203,500 |
196,215 |
21,583 |
1,000 |
20,583 |
122.30 |
$2,517 |
$220 |
|||||
|
2023 |
190,500 |
190,500 |
20,955 |
0 |
20,955 |
121.91 |
$2,555 |
$0 |
|||||
|
2022 |
169,000 |
140,786 |
15,485 |
0 |
15,485 |
123.41 |
$1,911 |
$383 |
|||||
|
2021 |
145,500 |
134,082 |
14,748 |
0 |
14,748 |
122.23 |
$1,803 |
$154 |
|||||
| Property Account Status/Adjustments/Exemptions | ||
|---|---|---|
| Account # | Exemption Description | Amount |
|
R148140210 |
5% Capped Account |
0 |
| Property Deed Transaction History (Recorded in the County Clerk's Office) | ||||||||||
|---|---|---|---|---|---|---|---|---|---|---|
| Date | Type | Book | Page | Price | Grantor | Grantee | ||||
|
7/17/2024 |
|
Deeds |
$203,000 |
NASH STEPHEN BRENT |
TH PROPERTY OWNER I LLC |
|||||
|
7/6/2022 |
|
Deeds |
$110,000 |
THOMPSON ANN JANENE |
NASH STEPHEN BRENT |
|||||
|
1/1/2011 |
|
Hmstd Off & |
$0 |
FREEDING CHRISTOPHER J |
THOMPSON ANN JANENE |
|||||
|
8/6/2007 |
|
Deeds |
$0 |
FREEDING CHRISTOPHER J THOMPSON ANN J |
FREEDING CHRISTOPHER J |
|||||
|
7/31/2001 |
|
Deeds |
$0 |
LARGE HARRISON & AUDREY LF EST LARGE CHARLES H & JENNIFER A |
LARGE CHARLES H & JENNIFER A |
|||||
| Last Mailed Notice of Value (N.O.V.) Information/History | ||||||||
|---|---|---|---|---|---|---|---|---|
| Year | Date | Market Value | Taxable Market Value | Gross Assessed | Exemption | Net Assessed | ||
|
2025 |
02/14/2025 |
206,500 |
206,500 |
22,715 |
0 |
22,715 |
||
|
2024 |
02/13/2024 |
203,500 |
196,215 |
21,583 |
1,000 |
20,583 |
||
|
2023 |
02/14/2023 |
190,500 |
190,500 |
20,955 |
0 |
20,955 |
||
|
2022 |
03/15/2022 |
169,000 |
140,786 |
15,485 |
0 |
15,485 |
||
|
2021 |
03/19/2021 |
145,500 |
134,082 |
14,749 |
0 |
14,749 |
||
| Property Building Permit History | |||||||||||
|---|---|---|---|---|---|---|---|---|---|---|---|
| Issued | Permit # | Provided by | Bldg # | Description | Est Construction Cost | Status | |||||
| No Building Permit records returned. | |||||||||||
| Click button on building number to access detailed information: | ||||||
|---|---|---|---|---|---|---|
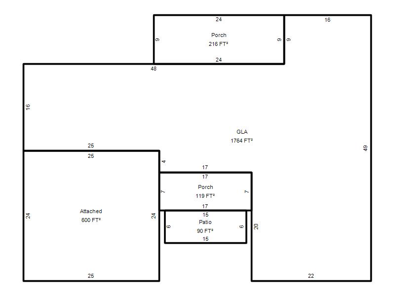
| Bldg # | Vacant/Improved Land | Bldg Description | Year Built | SqFt | # Stories | |
|
1 |
Improved |
Ranch 1 Story |
1967 |
1,764 |
1 Stories |
|