|
|
|
| Larry Stein Oklahoma County Assessor (405) 713-1200 - Public Access System |
|
|
|
|
|
|
| Real Property Display - Screen Produced 2/27/2026 9:23:54 PM | ||||
|---|---|---|---|---|
| Account: R140071720 | Type: Residential | Location: |
2003 N PURDUE AVE |
|
| Building Name/Occupant: |
|
OKLAHOMA CITY |
||
| Owner Name 1: | BARRIOS CIFUENTES SANTOS LEONEL |
Parcel PIN#: |
2908-14-007-1720 |
|
| Owner Name 2: | 1/4 section #: |
2908 |
||
| Owner Name 3: | Parent Acct: |
|
||
| Billing Address: | 2003 N PURDUE AVE | Tax District: |
|
|
| City, State, Zip | OKLAHOMA CITY, OK 73127 | School System: |
Putnam City #1 |
|
|
Country: (If noted) |
Land Size: |
0.1769 Acres |
||
|
Land Value: 32,742 |
|
|||
|
Sect 27-T12N-R4W Qtr NW |
SALYERS WINDSOR FOREST SEC 2
Block
006
Lot
001
|
|||
| Full Legal Description: SALYERS WINDSOR FOREST SEC 2 006 001 |
| Photo & Sketch (if available) | Comp Sales (ordered by relevancy) |
|
||||||||||||||||||
|
||||||||||||||||||||
| Value History (*The County Treasurer 405-713-1300 posts & collects actual tax amounts. Contact information HERE) | |||||||||||||
|---|---|---|---|---|---|---|---|---|---|---|---|---|---|
| Year | Market Value | Taxable Mkt Value | Gross Assessed | Exemption | Net Assessed | Millage | Est. Tax | Tax Savings | |||||
|
2025 |
203,500 |
203,500 |
22,385 |
0 |
22,385 |
123.17 |
$2,757 |
$0 |
|||||
|
2024 |
200,500 |
200,500 |
22,055 |
0 |
22,055 |
122.30 |
$2,697 |
$0 |
|||||
|
2023 |
211,000 |
211,000 |
23,210 |
0 |
23,210 |
121.91 |
$2,830 |
$0 |
|||||
|
2022 |
166,500 |
147,075 |
16,177 |
0 |
16,177 |
123.41 |
$1,997 |
$264 |
|||||
|
2021 |
142,000 |
140,072 |
15,407 |
0 |
15,407 |
122.23 |
$1,883 |
$26 |
|||||
| Property Account Status/Adjustments/Exemptions | ||
|---|---|---|
| Account # | Exemption Description | Amount |
|
R140071720 |
5% Capped Account |
0 |
| Property Deed Transaction History (Recorded in the County Clerk's Office) | ||||||||||
|---|---|---|---|---|---|---|---|---|---|---|
| Date | Type | Book | Page | Price | Grantor | Grantee | ||||
|
8/12/2022 |
|
Deeds |
$210,000 |
TO NGOC B |
BARRIOS CIFUENTES SANTOS LEONEL |
|||||
|
7/7/2014 |
|
Deeds |
$122,500 |
TOONTAS VIRGINIA LEE |
TO NGOC B |
|||||
|
7/7/2014 |
|
Hmstd Off & |
$0 |
TO NGOC B |
TO NGOC B |
|||||
|
8/14/2000 |
|
Deeds |
$95,000 |
GARMON RAYMOND E & DIANA L |
TOONTAS VIRGINIA LEE |
|||||
|
5/3/1994 |
|
Historical |
$60,000 |
RAY RUBY |
GARMON RAYMOND E & DIANA L |
|||||
| Last Mailed Notice of Value (N.O.V.) Information/History | ||||||||
|---|---|---|---|---|---|---|---|---|
| Year | Date | Market Value | Taxable Market Value | Gross Assessed | Exemption | Net Assessed | ||
|
2025 |
02/14/2025 |
203,500 |
203,500 |
22,385 |
0 |
22,385 |
||
|
2023 |
02/14/2023 |
211,000 |
211,000 |
23,210 |
0 |
23,210 |
||
|
2022 |
03/15/2022 |
166,500 |
147,075 |
16,177 |
0 |
16,177 |
||
|
2021 |
03/19/2021 |
142,000 |
140,072 |
15,407 |
0 |
15,407 |
||
|
2020 |
03/10/2020 |
133,500 |
133,402 |
14,674 |
0 |
14,674 |
||
| Property Building Permit History | |||||||||||
|---|---|---|---|---|---|---|---|---|---|---|---|
| Issued | Permit # | Provided by | Bldg # | Description | Est Construction Cost | Status | |||||
| No Building Permit records returned. | |||||||||||
| Click button on building number to access detailed information: | ||||||
|---|---|---|---|---|---|---|
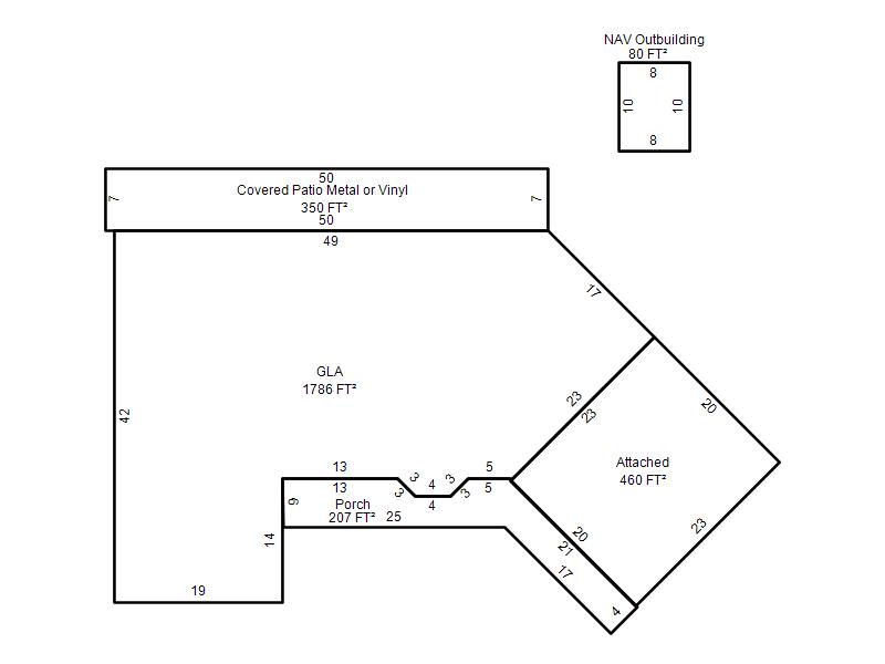
| Bldg # | Vacant/Improved Land | Bldg Description | Year Built | SqFt | # Stories | |
|
1 |
Improved |
Ranch 1 Story |
1966 |
1,786 |
1 Stories |
|