|
|
|
| Larry Stein Oklahoma County Assessor (405) 713-1200 - Public Access System |
|
|
|
|
|
|
| Real Property Display - Screen Produced 3/23/2026 10:19:52 AM | ||||
|---|---|---|---|---|
| Account: R153561030 | Type: Residential | Location: |
1425 BROOKDALE DR |
|
| Building Name/Occupant: |
|
DEL CITY |
||
| Owner Name 1: | RICCIARDELLI RYAN |
Parcel PIN#: |
1423-15-356-1030 |
|
| Owner Name 2: | 1/4 section #: |
1423 |
||
| Owner Name 3: | Parent Acct: |
|
||
| Billing Address: | 164 LEXINGTON ST, Unit 1 | Tax District: |
|
|
| City, State, Zip | EAST BOSTON, MA 02128 | School System: |
Mid-Del #52 |
|
|
Country: (If noted) |
Land Size: |
0.1450 Acres |
||
|
Land Value: 18,954 |
|
|||
|
Sect 6-T11N-R2W Qtr SW |
DEL RANCHO
Block
001
Lot
006
|
|||
| Full Legal Description: DEL RANCHO 001 006 |
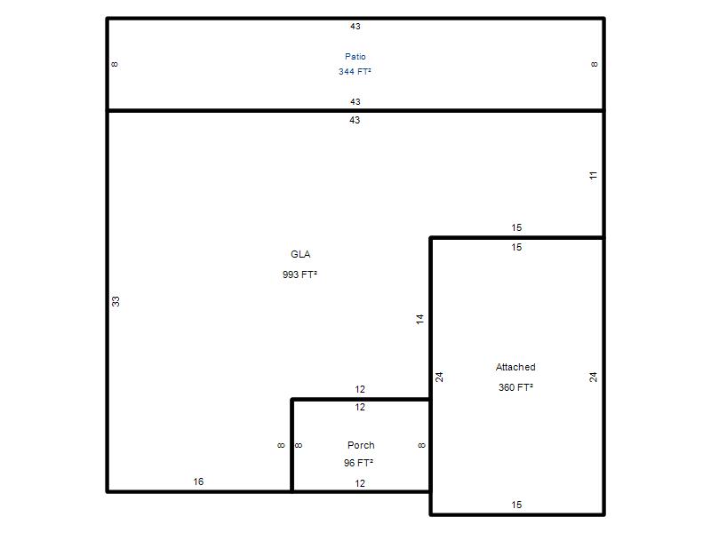
| Photo & Sketch (if available) | Comp Sales (ordered by relevancy) |
|
||||||||||||||||||
|
||||||||||||||||||||
| Value History (*The County Treasurer 405-713-1300 posts & collects actual tax amounts. Contact information HERE) | |||||||||||||
|---|---|---|---|---|---|---|---|---|---|---|---|---|---|
| Year | Market Value | Taxable Mkt Value | Gross Assessed | Exemption | Net Assessed | Millage | Est. Tax | Tax Savings | |||||
|
2025 |
101,500 |
98,175 |
10,799 |
0 |
10,799 |
114.72 |
$1,239 |
$42 |
|||||
|
2024 |
93,500 |
93,500 |
10,285 |
0 |
10,285 |
117.21 |
$1,206 |
$0 |
|||||
|
2023 |
91,000 |
91,000 |
10,010 |
0 |
10,010 |
112.46 |
$1,126 |
$0 |
|||||
|
2022 |
74,500 |
62,842 |
6,912 |
0 |
6,912 |
110.76 |
$766 |
$142 |
|||||
|
2021 |
61,500 |
59,850 |
6,583 |
0 |
6,583 |
114.70 |
$755 |
$21 |
|||||
| Property Account Status/Adjustments/Exemptions | ||
|---|---|---|
| Account # | Exemption Description | Amount |
|
R153561030 |
5% Capped Account |
0 |
| Property Deed Transaction History (Recorded in the County Clerk's Office) | |||||||
|---|---|---|---|---|---|---|---|
| Date | Type | Book | Page | Price | Grantor | Grantee | |
|
7/20/2022 |
|
Deeds |
$90,000 |
HOFFMAN ARTHUR E & JUDITH A TRS |
RICCIARDELLI RYAN |
||
|
8/9/2005 |
|
Deeds |
$0 |
HOFFMAN ARTHUR E & JUDITH A |
HOFFMAN ARTHUR E & JUDITH A TRS |
||
|
4/20/1989 |
|
Historical |
$19,000 |
MOBLEY DONNIE J |
HOFFMAN ARTHUR E & JUDITH A |
||
|
4/1/1975 |
|
Historical |
$0 |
|
MOBLEY DONNIE J |
||
| Last Mailed Notice of Value (N.O.V.) Information/History | ||||||||
|---|---|---|---|---|---|---|---|---|
| Year | Date | Market Value | Taxable Market Value | Gross Assessed | Exemption | Net Assessed | ||
|
2026 |
02/06/2026 |
102,000 |
102,000 |
11,220 |
0 |
11,220 |
||
|
2025 |
01/31/2025 |
101,500 |
98,175 |
10,799 |
0 |
10,799 |
||
|
2024 |
01/22/2024 |
93,500 |
93,500 |
10,285 |
0 |
10,285 |
||
|
2023 |
01/23/2023 |
91,000 |
91,000 |
10,010 |
0 |
10,010 |
||
|
2022 |
02/22/2022 |
74,500 |
62,842 |
6,912 |
0 |
6,912 |
||
| Property Building Permit History | |||||||||||
|---|---|---|---|---|---|---|---|---|---|---|---|
| Issued | Permit # | Provided by | Bldg # | Description | Est Construction Cost | Status | |||||
| No Building Permit records returned. | |||||||||||
| Click button on building number to access detailed information: | ||||||
|---|---|---|---|---|---|---|
| Bldg # | Vacant/Improved Land | Bldg Description | Year Built | SqFt | # Stories | |
|
1 |
Improved |
Ranch 1 Story |
1961 |
993 |
1 Stories |
|