|
|
|
| Larry Stein Oklahoma County Assessor (405) 713-1200 - Public Access System |
|
|
|
|
|
|
| Real Property Display - Screen Produced 4/2/2026 2:18:10 PM | ||||
|---|---|---|---|---|
| Account: R123112345 | Type: Residential | Location: |
14439 N PENNSYLVANIA AVE, Unit 30F |
|
| Building Name/Occupant: |
|
OKLAHOMA CITY |
||
| Owner Name 1: | MILLER RANDY G & J SHALAYN TRS |
Parcel PIN#: |
3625-12-311-2345 |
|
| Owner Name 2: | MILLER RANDY G REV TRUST | 1/4 section #: |
3625 |
|
| Owner Name 3: | Parent Acct: |
|
||
| Billing Address: | 14778 COTTONWOOD | Tax District: |
|
|
| City, State, Zip | EDMOND, OK 73025 | School System: |
Edmond #12 |
|
|
Country: (If noted) |
Land Size: |
1.0000 Square Feet |
||
|
Land Value: 11,175 |
|
|||
|
Sect 7-T13N-R3W Qtr NE |
QUAIL SPRINGS CONDOMINIUMS II
Block
000
Lot
000
|
|||
| Full Legal Description: QUAIL SPRINGS CONDOMINIUMS II 000 000 UNIT 30 F |
| Photo & Sketch (if available) | Comp Sales (ordered by relevancy) |
|
||||||||||||||||||
|
||||||||||||||||||||
| Value History (*The County Treasurer 405-713-1300 posts & collects actual tax amounts. Contact information HERE) | |||||||||||||
|---|---|---|---|---|---|---|---|---|---|---|---|---|---|
| Year | Market Value | Taxable Mkt Value | Gross Assessed | Exemption | Net Assessed | Millage | Est. Tax | Tax Savings | |||||
|
2026 |
120,500 |
120,500 |
13,255 |
0 |
13,255 |
120.32 |
$1,595 |
$0 |
|||||
|
2025 |
120,500 |
120,500 |
13,255 |
0 |
13,255 |
120.32 |
$1,595 |
$0 |
|||||
|
2024 |
122,000 |
122,000 |
13,420 |
0 |
13,420 |
119.96 |
$1,610 |
$0 |
|||||
|
2023 |
90,000 |
76,735 |
8,440 |
1,000 |
7,440 |
119.02 |
$886 |
$293 |
|||||
|
2022 |
74,500 |
74,500 |
8,195 |
1,000 |
7,195 |
120.10 |
$864 |
$120 |
|||||
| Property Account Status/Adjustments/Exemptions | ||
|---|---|---|
| Account # | Exemption Description | Amount |
|
R123112345 |
5% Capped Account |
0 |
| Property Deed Transaction History (Recorded in the County Clerk's Office) | ||||||||||
|---|---|---|---|---|---|---|---|---|---|---|
| Date | Type | Book | Page | Price | Grantor | Grantee | ||||
|
4/15/2025 |
|
Hmstd Off & |
$0 |
MILLER RANDY G |
MILLER RANDY G & J SHALAYN TRS |
|||||
|
6/9/2023 |
|
Deeds |
$117,000 |
TOVAR CESAR SEBASTIAN CARRASCO |
MILLER RANDY G |
|||||
|
3/13/2020 |
|
Deeds |
$0 |
WILLIAMS JOAN |
DEMUTH DONALD |
|||||
|
3/13/2020 |
|
Deeds |
$75,000 |
DEMUTH DONALD |
TOVAR CESAR SEBASTIAN CARRASCO |
|||||
|
11/8/2012 |
|
Deeds |
$48,500 |
LEACH JASON |
WILLIAMS JOAN |
|||||
| Last Mailed Notice of Value (N.O.V.) Information/History | ||||||||
|---|---|---|---|---|---|---|---|---|
| Year | Date | Market Value | Taxable Market Value | Gross Assessed | Exemption | Net Assessed | ||
|
2024 |
02/13/2024 |
122,000 |
122,000 |
13,420 |
0 |
13,420 |
||
|
2023 |
02/14/2023 |
90,000 |
76,735 |
8,440 |
1,000 |
7,440 |
||
|
2021 |
03/19/2021 |
74,500 |
74,500 |
8,195 |
0 |
8,195 |
||
|
2020 |
03/10/2020 |
61,000 |
49,100 |
5,401 |
2,000 |
3,401 |
||
|
2020 |
04/24/2020 |
61,000 |
49,100 |
5,401 |
2,000 |
3,401 |
||
| Property Building Permit History | |||||||||||
|---|---|---|---|---|---|---|---|---|---|---|---|
| Issued | Permit # | Provided by | Bldg # | Description | Est Construction Cost | Status | |||||
| No Building Permit records returned. | |||||||||||
| Click button on building number to access detailed information: | ||||||
|---|---|---|---|---|---|---|
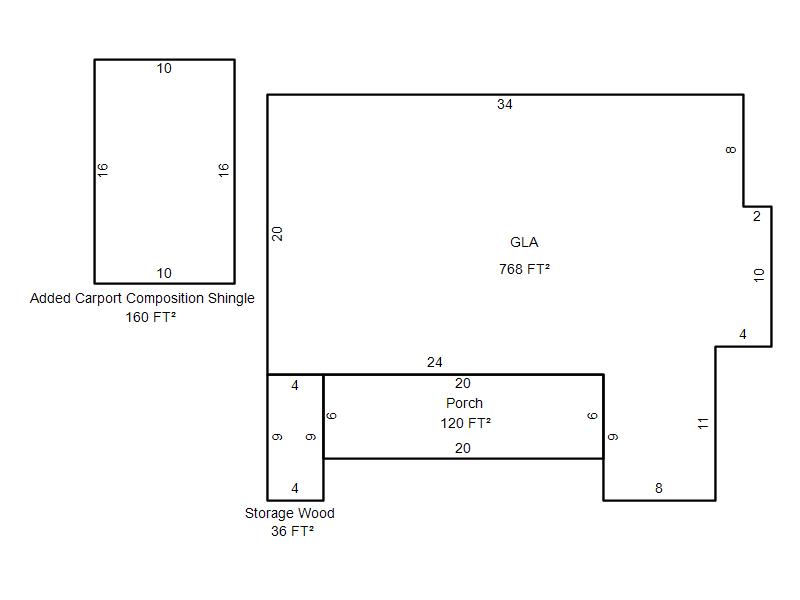
| Bldg # | Vacant/Improved Land | Bldg Description | Year Built | SqFt | # Stories | |
|
1 |
Improved |
Condo <= 3 Stories |
1983 |
768 |
1 Stories |
|