|
|
|
| Larry Stein Oklahoma County Assessor (405) 713-1200 - Public Access System |
|
|
|
|
|
|
| Real Property Display - Screen Produced 4/2/2026 4:11:23 PM | ||||
|---|---|---|---|---|
| Account: R123112400 | Type: Residential | Location: |
14331 N PENNSYLVANIA AVE, Unit 32E |
|
| Building Name/Occupant: |
|
OKLAHOMA CITY |
||
| Owner Name 1: | GROOM DONNA |
Parcel PIN#: |
3625-12-311-2400 |
|
| Owner Name 2: | GROOM JOSHUA R | 1/4 section #: |
3625 |
|
| Owner Name 3: | GROOM BRIAN J | Parent Acct: |
|
|
| Billing Address: | 14331 N PENNSYLVANIA AVE, Unit 32E | Tax District: |
|
|
| City, State, Zip | OKLAHOMA CITY , OK 73134 | School System: |
Edmond #12 |
|
|
Country: (If noted) |
UNITED STATES |
Land Size: |
1.0000 Square Feet |
|
|
Land Value: 11,175 |
|
|||
|
Sect 7-T13N-R3W Qtr NE |
QUAIL SPRINGS CONDOMINIUMS II
Block
000
Lot
000
|
|||
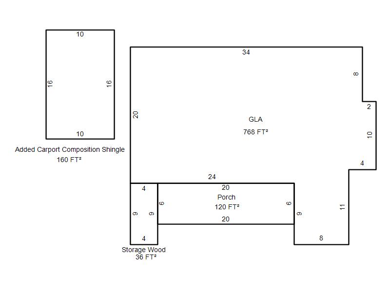
| Full Legal Description: QUAIL SPRINGS CONDOMINIUMS II 000 000 UNIT 32 E |
| Photo & Sketch (if available) | Comp Sales (ordered by relevancy) |
|
||||||||||||||||||
|
||||||||||||||||||||
| Value History (*The County Treasurer 405-713-1300 posts & collects actual tax amounts. Contact information HERE) | |||||||||||||
|---|---|---|---|---|---|---|---|---|---|---|---|---|---|
| Year | Market Value | Taxable Mkt Value | Gross Assessed | Exemption | Net Assessed | Millage | Est. Tax | Tax Savings | |||||
|
2026 |
119,500 |
119,500 |
13,145 |
0 |
13,145 |
120.32 |
$1,582 |
$0 |
|||||
|
2025 |
119,500 |
119,070 |
13,097 |
0 |
13,097 |
120.32 |
$1,576 |
$6 |
|||||
|
2024 |
121,000 |
113,400 |
12,474 |
0 |
12,474 |
119.96 |
$1,496 |
$100 |
|||||
|
2023 |
108,000 |
108,000 |
11,880 |
0 |
11,880 |
119.02 |
$1,414 |
$0 |
|||||
|
2022 |
84,500 |
84,500 |
9,295 |
0 |
9,295 |
120.10 |
$1,116 |
$0 |
|||||
| Property Account Status/Adjustments/Exemptions | ||
|---|---|---|
| Account # | Exemption Description | Amount |
|
R123112400 |
5% Capped Account |
0 |
| Property Deed Transaction History (Recorded in the County Clerk's Office) | ||||||||||
|---|---|---|---|---|---|---|---|---|---|---|
| Date | Type | Book | Page | Price | Grantor | Grantee | ||||
|
7/27/2022 |
|
Hmstd Off & |
$0 |
GROOM DONNA |
GROOM DONNA |
|||||
|
6/28/2022 |
|
Deeds |
$110,000 |
THOMAS KATHERINE G |
GROOM DONNA |
|||||
|
5/7/2021 |
|
Deeds |
$86,000 |
LUXNER DEVIN |
THOMAS KATHERINE G |
|||||
|
4/18/2014 |
|
Deeds |
$56,000 |
NGUYEN THU THI |
LUXNER DEVIN |
|||||
|
5/24/2010 |
|
Deeds |
$51,000 |
GLAZIER RUTH ANNE |
NGUYEN THU THI |
|||||
| Last Mailed Notice of Value (N.O.V.) Information/History | ||||||||
|---|---|---|---|---|---|---|---|---|
| Year | Date | Market Value | Taxable Market Value | Gross Assessed | Exemption | Net Assessed | ||
|
2026 |
02/23/2026 |
119,500 |
119,500 |
13,145 |
0 |
13,145 |
||
|
2025 |
02/14/2025 |
119,500 |
119,070 |
13,097 |
0 |
13,097 |
||
|
2024 |
02/13/2024 |
121,000 |
113,400 |
12,474 |
0 |
12,474 |
||
|
2023 |
02/14/2023 |
108,000 |
108,000 |
11,880 |
0 |
11,880 |
||
|
2022 |
03/15/2022 |
84,500 |
84,500 |
9,295 |
0 |
9,295 |
||
| Property Building Permit History | |||||||||||
|---|---|---|---|---|---|---|---|---|---|---|---|
| Issued | Permit # | Provided by | Bldg # | Description | Est Construction Cost | Status | |||||
| No Building Permit records returned. | |||||||||||
| Click button on building number to access detailed information: | ||||||
|---|---|---|---|---|---|---|
| Bldg # | Vacant/Improved Land | Bldg Description | Year Built | SqFt | # Stories | |
|
1 |
Improved |
Condo <= 3 Stories |
1983 |
768 |
1 Stories |
|