|
|
|
| Larry Stein Oklahoma County Assessor (405) 713-1200 - Public Access System |
|
|
|
|
|
|
| Real Property Display - Screen Produced 4/2/2026 3:50:53 PM | ||||
|---|---|---|---|---|
| Account: R208811070 | Type: Residential | Location: |
77 BONAIRE DR |
|
| Building Name/Occupant: |
|
EDMOND |
||
| Owner Name 1: | ROBERSON CHAVETTE D |
Parcel PIN#: |
3641-20-881-1070 |
|
| Owner Name 2: | 1/4 section #: |
3641 |
||
| Owner Name 3: | Parent Acct: |
3641-16-851-2350 |
||
| Billing Address: | 77 BONAIRE DR | Tax District: |
|
|
| City, State, Zip | EDMOND, OK 73013-1759 | School System: |
Edmond #12 |
|
|
Country: (If noted) |
Land Size: |
0.1653 Acres |
||
|
Land Value: 43,920 |
|
|||
|
Sect 11-T13N-R3W Qtr NE |
LANDINGS II AT STONEBRIDGE
Block
001
Lot
008
|
|||
| Full Legal Description: LANDINGS II AT STONEBRIDGE 001 008 |
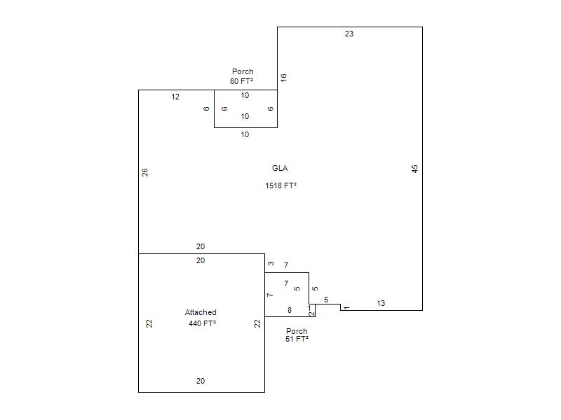
| Photo & Sketch (if available) | Comp Sales (ordered by relevancy) |
|
||||||||||||||||||
|
||||||||||||||||||||
| Value History (*The County Treasurer 405-713-1300 posts & collects actual tax amounts. Contact information HERE) | |||||||||||||
|---|---|---|---|---|---|---|---|---|---|---|---|---|---|
| Year | Market Value | Taxable Mkt Value | Gross Assessed | Exemption | Net Assessed | Millage | Est. Tax | Tax Savings | |||||
|
2026 |
273,500 |
273,500 |
30,085 |
30,085 |
0 |
105.16 |
$0 |
$3,164 |
|||||
|
2025 |
272,500 |
272,500 |
29,975 |
29,975 |
0 |
105.16 |
$0 |
$3,152 |
|||||
|
2024 |
263,500 |
172,767 |
19,004 |
1,000 |
18,004 |
105.03 |
$1,891 |
$1,153 |
|||||
|
2023 |
254,500 |
172,767 |
19,004 |
1,000 |
18,004 |
104.24 |
$1,877 |
$1,041 |
|||||
|
2022 |
214,500 |
172,767 |
19,004 |
1,000 |
18,004 |
104.64 |
$1,884 |
$585 |
|||||
| Property Account Status/Adjustments/Exemptions | ||
|---|---|---|
| Account # | Exemption Description | Amount |
|
R208811070 |
3% Cap Homestead |
0 |
|
R208811070 |
100% DAV Exemption |
100 |
|
R208811070 |
DAV Homestead |
0 |
| Property Deed Transaction History (Recorded in the County Clerk's Office) | ||||||||||
|---|---|---|---|---|---|---|---|---|---|---|
| Date | Type | Book | Page | Price | Grantor | Grantee | ||||
|
4/10/2024 |
|
Deeds |
$270,000 |
CLEERE GUYLA B CO TRS ETAL |
ROBERSON CHAVETTE D |
|||||
|
4/2/2022 |
|
Deeds |
$0 |
CLEERE GUYLA B |
CLEERE GUYLA B CO TRS ETAL |
|||||
|
6/23/2010 |
|
Deeds |
$170,000 |
AXIOM HOMES LLC |
CLEERE GUYLA B |
|||||
|
8/14/2009 |
|
Deeds |
$40,000 |
LANDINGS DEVELOMENT LLC |
AXIOM HOMES LLC |
|||||
|
7/24/2009 |
|
Hmstd Off & |
$0 |
DODSON CUSTOM HOMES LLC |
LANDINGS DEVELOMENT LLC |
|||||
| Last Mailed Notice of Value (N.O.V.) Information/History | ||||||||
|---|---|---|---|---|---|---|---|---|
| Year | Date | Market Value | Taxable Market Value | Gross Assessed | Exemption | Net Assessed | ||
|
2026 |
02/23/2026 |
273,500 |
273,500 |
30,085 |
30,085 |
0 |
||
|
2025 |
02/14/2025 |
272,500 |
272,500 |
29,975 |
29,975 |
0 |
||
|
2024 |
02/13/2024 |
263,500 |
172,767 |
19,004 |
1,000 |
18,004 |
||
|
2023 |
02/14/2023 |
254,500 |
172,767 |
19,004 |
1,000 |
18,004 |
||
|
2022 |
03/15/2022 |
214,500 |
172,767 |
19,004 |
1,000 |
18,004 |
||
| Property Building Permit History | ||||||
|---|---|---|---|---|---|---|
| Issued | Permit # | Provided by | Bldg # | Description | Est Construction Cost | Status |
|
7/30/2009 |
10385279 |
EDMOND |
1 |
Main Dwellin |
140,000 |
Inactive |
|
5/30/2009 |
10381937 |
EDMOND |
1 |
Main Dwellin |
106,275 |
Inactive |
| Click button on building number to access detailed information: | ||||||
|---|---|---|---|---|---|---|
| Bldg # | Vacant/Improved Land | Bldg Description | Year Built | SqFt | # Stories | |
|
1 |
Improved |
Ranch 1 Story |
2009 |
1,518 |
1 Stories |
|