|
|
|
| Larry Stein Oklahoma County Assessor (405) 713-1200 - Public Access System |
|
|
|
|
|
|
| Real Property Display - Screen Produced 3/23/2026 6:44:51 AM | ||||
|---|---|---|---|---|
| Account: R180611160 | Type: Residential | Location: |
13800 CROSSING WAY EAST |
|
| Building Name/Occupant: |
|
OKLAHOMA CITY |
||
| Owner Name 1: | SLEDGE ABIGAIL BREELYN |
Parcel PIN#: |
3643-18-061-1160 |
|
| Owner Name 2: | 1/4 section #: |
3643 |
||
| Owner Name 3: | Parent Acct: |
|
||
| Billing Address: | 13800 CROSSING WAY E | Tax District: |
|
|
| City, State, Zip | EDMOND, OK 73013 | School System: |
Edmond #12 |
|
|
Country: (If noted) |
Land Size: |
0.0574 Acres |
||
|
Land Value: 19,500 |
|
|||
|
Sect 11-T13N-R3W Qtr SW |
THE CROSSING SEC 1
Block
001
Lot
017
|
|||
| Full Legal Description: THE CROSSING SEC 1 001 017 |
| Photo & Sketch (if available) | Comp Sales (ordered by relevancy) |
|
||||||||||||||||||
|
||||||||||||||||||||
| Value History (*The County Treasurer 405-713-1300 posts & collects actual tax amounts. Contact information HERE) | |||||||||||||
|---|---|---|---|---|---|---|---|---|---|---|---|---|---|
| Year | Market Value | Taxable Mkt Value | Gross Assessed | Exemption | Net Assessed | Millage | Est. Tax | Tax Savings | |||||
|
2025 |
160,500 |
131,454 |
14,459 |
0 |
14,459 |
120.32 |
$1,740 |
$384 |
|||||
|
2024 |
159,500 |
125,195 |
13,770 |
0 |
13,770 |
119.96 |
$1,652 |
$453 |
|||||
|
2023 |
158,500 |
119,234 |
13,115 |
0 |
13,115 |
119.02 |
$1,561 |
$514 |
|||||
|
2022 |
121,000 |
113,557 |
12,490 |
0 |
12,490 |
120.10 |
$1,500 |
$98 |
|||||
|
2021 |
111,000 |
108,150 |
11,896 |
0 |
11,896 |
118.88 |
$1,414 |
$37 |
|||||
| Property Account Status/Adjustments/Exemptions | ||||||
|---|---|---|---|---|---|---|
| Account # | Exemption Description | Amount | ||||
| No adjustment/exemption records returned. | ||||||
| Property Deed Transaction History (Recorded in the County Clerk's Office) | ||||||||||
|---|---|---|---|---|---|---|---|---|---|---|
| Date | Type | Book | Page | Price | Grantor | Grantee | ||||
|
12/4/2025 |
|
Deeds |
$175,000 |
HAYNES KEVIN D |
SLEDGE ABIGAIL BREELYN |
|||||
|
8/18/2025 |
|
Hmstd Off & |
$0 |
HAYNES KEVIN D |
HAYNES KEVIN D |
|||||
|
7/22/1999 |
|
Hmstd Off & |
$0 |
GOAD JOHN D & BERNICE A |
HAYNES KEVIN D |
|||||
|
6/5/1996 |
|
Historical |
$0 |
GOAD JOHN D & BERNICE A |
GOAD JOHN D & BERNICE A |
|||||
|
4/4/1994 |
|
Historical |
$47,500 |
MCCABE NANCY K |
GOAD JOHN D & BERNICE A |
|||||
| Last Mailed Notice of Value (N.O.V.) Information/History | ||||||||
|---|---|---|---|---|---|---|---|---|
| Year | Date | Market Value | Taxable Market Value | Gross Assessed | Exemption | Net Assessed | ||
|
2026 |
02/23/2026 |
173,500 |
173,500 |
19,085 |
0 |
19,085 |
||
|
2025 |
02/14/2025 |
160,500 |
131,454 |
14,459 |
0 |
14,459 |
||
|
2024 |
02/13/2024 |
159,500 |
125,195 |
13,770 |
0 |
13,770 |
||
|
2023 |
02/14/2023 |
158,500 |
119,234 |
13,115 |
0 |
13,115 |
||
|
2022 |
03/15/2022 |
121,000 |
113,557 |
12,490 |
0 |
12,490 |
||
| Property Building Permit History | |||||||||||
|---|---|---|---|---|---|---|---|---|---|---|---|
| Issued | Permit # | Provided by | Bldg # | Description | Est Construction Cost | Status | |||||
| No Building Permit records returned. | |||||||||||
| Click button on building number to access detailed information: | ||||||
|---|---|---|---|---|---|---|
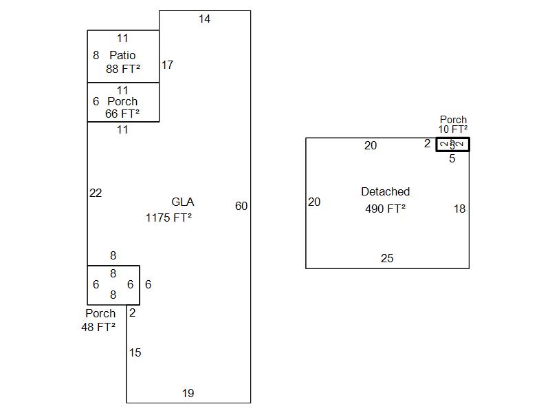
| Bldg # | Vacant/Improved Land | Bldg Description | Year Built | SqFt | # Stories | |
|
1 |
Improved |
Townhouse One Story |
1980 |
1,175 |
1 Stories |
|