|
|
|
| Larry Stein Oklahoma County Assessor (405) 713-1200 - Public Access System |
|
|
|
|
|
|
| Real Property Display - Screen Produced 3/5/2026 6:48:01 AM | ||||
|---|---|---|---|---|
| Account: R130841190 | Type: Residential | Location: |
1037 HOYT AVE |
|
| Building Name/Occupant: |
|
OKLAHOMA CITY |
||
| Owner Name 1: | ROBERTS SPENCER |
Parcel PIN#: |
3712-13-084-1190 |
|
| Owner Name 2: | 1/4 section #: |
3712 |
||
| Owner Name 3: | Parent Acct: |
|
||
| Billing Address: | 74 MONTCLAIR DR | Tax District: |
|
|
| City, State, Zip | WEST HARTFORD , CT 06107 | School System: |
Oklahoma City #89 |
|
|
Country: (If noted) |
UNITED STATES |
Land Size: |
0.1607 Acres |
|
|
Land Value: 16,450 |
|
|||
|
Sect 28-T13N-R3W Qtr NW |
HOMEDALE ADDITION
Block
001
Lot
000
|
|||
| Full Legal Description: HOMEDALE ADDITION 001 000 LOTS 40 & 41 |
| Photo & Sketch (if available) | Comp Sales (ordered by relevancy) |
|
||||||||||||||||||
|
||||||||||||||||||||
| Value History (*The County Treasurer 405-713-1300 posts & collects actual tax amounts. Contact information HERE) | |||||||||||||
|---|---|---|---|---|---|---|---|---|---|---|---|---|---|
| Year | Market Value | Taxable Mkt Value | Gross Assessed | Exemption | Net Assessed | Millage | Est. Tax | Tax Savings | |||||
|
2025 |
124,000 |
107,080 |
11,777 |
0 |
11,777 |
122.90 |
$1,448 |
$229 |
|||||
|
2024 |
114,000 |
101,981 |
11,217 |
0 |
11,217 |
123.89 |
$1,390 |
$164 |
|||||
|
2023 |
111,000 |
97,125 |
10,683 |
0 |
10,683 |
122.82 |
$1,312 |
$187 |
|||||
|
2022 |
92,500 |
92,500 |
10,175 |
0 |
10,175 |
117.63 |
$1,197 |
$0 |
|||||
|
2021 |
69,500 |
58,459 |
6,430 |
0 |
6,430 |
117.70 |
$757 |
$143 |
|||||
| Property Account Status/Adjustments/Exemptions | ||
|---|---|---|
| Account # | Exemption Description | Amount |
|
R130841190 |
5% Capped Account |
0 |
| Property Deed Transaction History (Recorded in the County Clerk's Office) | ||||||||||
|---|---|---|---|---|---|---|---|---|---|---|
| Date | Type | Book | Page | Price | Grantor | Grantee | ||||
|
12/16/2021 |
|
Deeds |
$92,000 |
LOCAL GUYS BUY HOUSES LLC |
ROBERTS SPENCER |
|||||
|
10/15/2021 |
|
Deeds |
$52,500 |
HOMES OF OKC INC |
SUNNYSIDEUP CONSULTING LLC |
|||||
|
10/15/2021 |
|
Deeds |
$61,000 |
SUNNYSIDEUP CONSULTING LLC |
OKLAHOME INVESTORS LLC |
|||||
|
10/15/2021 |
|
Deeds |
$80,000 |
OKLAHOME INVESTORS LLC |
LOCAL GUYS BUY HOUSES LLC |
|||||
|
3/31/2011 |
|
Deeds |
$0 |
FIELDS EUGENE |
HOMES OF OKC INC |
|||||
| Last Mailed Notice of Value (N.O.V.) Information/History | ||||||||
|---|---|---|---|---|---|---|---|---|
| Year | Date | Market Value | Taxable Market Value | Gross Assessed | Exemption | Net Assessed | ||
|
2026 |
02/23/2026 |
122,000 |
112,434 |
12,366 |
0 |
12,366 |
||
|
2025 |
02/14/2025 |
124,000 |
107,080 |
11,777 |
0 |
11,777 |
||
|
2024 |
02/13/2024 |
114,000 |
101,981 |
11,217 |
0 |
11,217 |
||
|
2023 |
02/14/2023 |
111,000 |
97,125 |
10,683 |
0 |
10,683 |
||
|
2022 |
03/15/2022 |
92,500 |
92,500 |
10,175 |
0 |
10,175 |
||
| Property Building Permit History | |||||||||||
|---|---|---|---|---|---|---|---|---|---|---|---|
| Issued | Permit # | Provided by | Bldg # | Description | Est Construction Cost | Status | |||||
| No Building Permit records returned. | |||||||||||
| Click button on building number to access detailed information: | ||||||
|---|---|---|---|---|---|---|
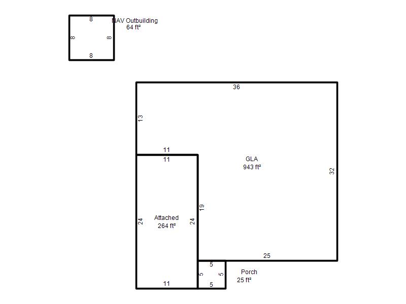
| Bldg # | Vacant/Improved Land | Bldg Description | Year Built | SqFt | # Stories | |
|
1 |
Improved |
Ranch 1 Story |
1964 |
943 |
1 Stories |
|