|
|
|
| Larry Stein Oklahoma County Assessor (405) 713-1200 - Public Access System |
|
|
|
|
|
|
| Real Property Display - Screen Produced 3/5/2026 6:48:02 AM | ||||
|---|---|---|---|---|
| Account: R130843150 | Type: Residential | Location: |
900 NW 104TH ST |
|
| Building Name/Occupant: |
|
OKLAHOMA CITY |
||
| Owner Name 1: | AMNL ASSET COMPANY 3 LLC |
Parcel PIN#: |
3712-13-084-3150 |
|
| Owner Name 2: | 1/4 section #: |
3712 |
||
| Owner Name 3: | Parent Acct: |
|
||
| Billing Address: | 5001 PLAZA ON THE LK, Unit 200 | Tax District: |
|
|
| City, State, Zip | AUSTIN, TX 78746 | School System: |
Oklahoma City #89 |
|
|
Country: (If noted) |
Land Size: |
0.2893 Acres |
||
|
Land Value: 29,610 |
|
|||
|
Sect 28-T13N-R3W Qtr NW |
HOMEDALE ADDITION
Block
004
Lot
000
|
|||
| Full Legal Description: HOMEDALE ADDITION 004 000 ALL LOTS 1 2 & 3 PLUS E15FT OF LOT 4 |
| Photo & Sketch (if available) | Comp Sales (ordered by relevancy) |
|
||||||||||||||||||
|
||||||||||||||||||||
| Value History (*The County Treasurer 405-713-1300 posts & collects actual tax amounts. Contact information HERE) | |||||||||||||
|---|---|---|---|---|---|---|---|---|---|---|---|---|---|
| Year | Market Value | Taxable Mkt Value | Gross Assessed | Exemption | Net Assessed | Millage | Est. Tax | Tax Savings | |||||
|
2025 |
137,000 |
131,250 |
14,437 |
0 |
14,437 |
122.90 |
$1,774 |
$78 |
|||||
|
2024 |
125,000 |
125,000 |
13,750 |
0 |
13,750 |
123.89 |
$1,703 |
$0 |
|||||
|
2023 |
122,000 |
122,000 |
13,420 |
0 |
13,420 |
122.82 |
$1,648 |
$0 |
|||||
|
2022 |
113,500 |
113,500 |
12,485 |
0 |
12,485 |
117.63 |
$1,469 |
$0 |
|||||
|
2021 |
95,000 |
84,872 |
9,335 |
1,000 |
8,335 |
117.70 |
$981 |
$249 |
|||||
| Property Account Status/Adjustments/Exemptions | ||
|---|---|---|
| Account # | Exemption Description | Amount |
|
R130843150 |
5% Capped Account |
0 |
| Property Deed Transaction History (Recorded in the County Clerk's Office) | ||||||||||
|---|---|---|---|---|---|---|---|---|---|---|
| Date | Type | Book | Page | Price | Grantor | Grantee | ||||
|
6/24/2022 |
|
Mult Parcel |
$683,000 |
VM MASTER ISSUER LLC |
AMNL ASSET COMPANY 3 LLC |
|||||
|
3/30/2022 |
|
Mult Parcel |
$16,108,500 |
ARVM 5 LLC |
VM MASTER ISSUER LLC |
|||||
|
5/20/2021 |
|
Deeds |
$115,000 |
DENNIS RICHARD AUGUSTA JR |
ARVM 5 LLC |
|||||
|
6/27/2017 |
|
Deeds |
$90,500 |
OKLAHOMA CITY PROPERTY GROUP LLC |
DENNIS RICHARD AUGUSTA JR |
|||||
|
5/26/2016 |
|
Deeds |
$51,500 |
JOHNSON MARK |
OKLAHOMA CITY PROPERTY GROUP LLC |
|||||
| Last Mailed Notice of Value (N.O.V.) Information/History | ||||||||
|---|---|---|---|---|---|---|---|---|
| Year | Date | Market Value | Taxable Market Value | Gross Assessed | Exemption | Net Assessed | ||
|
2026 |
02/23/2026 |
133,500 |
133,500 |
14,685 |
0 |
14,685 |
||
|
2025 |
02/14/2025 |
137,000 |
131,250 |
14,437 |
0 |
14,437 |
||
|
2024 |
02/13/2024 |
125,000 |
125,000 |
13,750 |
0 |
13,750 |
||
|
2023 |
02/14/2023 |
122,000 |
122,000 |
13,420 |
0 |
13,420 |
||
|
2022 |
03/15/2022 |
113,500 |
113,500 |
12,485 |
0 |
12,485 |
||
| Property Building Permit History | |||||||||||
|---|---|---|---|---|---|---|---|---|---|---|---|
| Issued | Permit # | Provided by | Bldg # | Description | Est Construction Cost | Status | |||||
| No Building Permit records returned. | |||||||||||
| Click button on building number to access detailed information: | ||||||
|---|---|---|---|---|---|---|
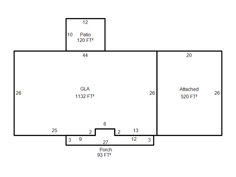
| Bldg # | Vacant/Improved Land | Bldg Description | Year Built | SqFt | # Stories | |
|
1 |
Improved |
Ranch 1 Story |
1971 |
1,132 |
1 Stories |
|