|
|
|
| Larry Stein Oklahoma County Assessor (405) 713-1200 - Public Access System |
|
|
|
|
|
|
| Real Property Display - Screen Produced 3/19/2026 4:38:18 AM | ||||
|---|---|---|---|---|
| Account: R150103600 | Type: Residential | Location: |
104 E MIMOSA DR |
|
| Building Name/Occupant: |
|
MIDWEST CITY |
||
| Owner Name 1: | MCDANIEL HANNAH |
Parcel PIN#: |
1440-15-010-3600 |
|
| Owner Name 2: | 1/4 section #: |
1440 |
||
| Owner Name 3: | Parent Acct: |
|
||
| Billing Address: | 104 E MIMOSA DR | Tax District: |
|
|
| City, State, Zip | MIDWEST CITY, OK 73110 | School System: |
Mid-Del #52 |
|
|
Country: (If noted) |
UNITED STATES |
Land Size: |
0.1731 Acres |
|
|
Land Value: 21,489 |
|
|||
|
Sect 10-T11N-R2W Qtr NW |
SPECKMAN HEIGHTS ADD
Block
007
Lot
018
|
|||
| Full Legal Description: SPECKMAN HEIGHTS ADD 007 018 |
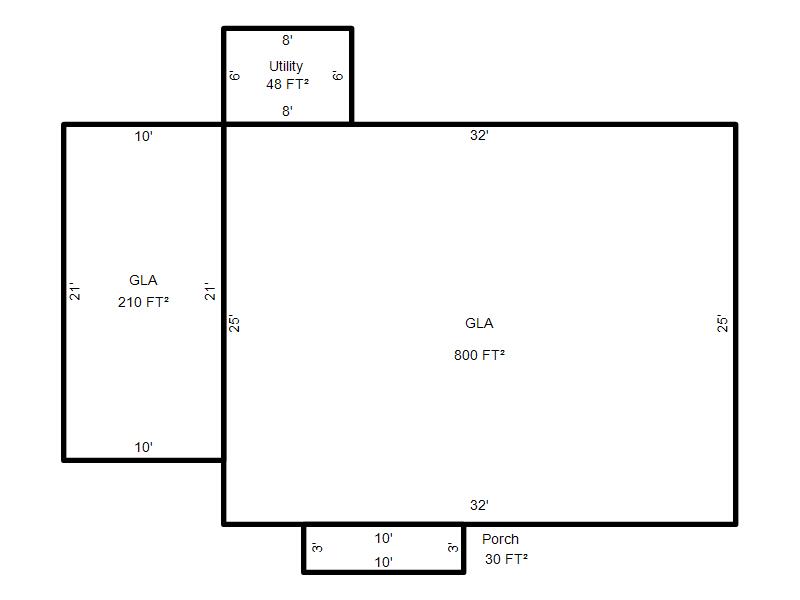
| Photo & Sketch (if available) | Comp Sales (ordered by relevancy) |
|
||||||||||||||||||
|
||||||||||||||||||||
| Value History (*The County Treasurer 405-713-1300 posts & collects actual tax amounts. Contact information HERE) | |||||||||||||
|---|---|---|---|---|---|---|---|---|---|---|---|---|---|
| Year | Market Value | Taxable Mkt Value | Gross Assessed | Exemption | Net Assessed | Millage | Est. Tax | Tax Savings | |||||
|
2025 |
140,000 |
95,066 |
10,456 |
1,000 |
9,456 |
119.58 |
$1,131 |
$711 |
|||||
|
2024 |
132,500 |
92,298 |
10,152 |
1,000 |
9,152 |
122.51 |
$1,121 |
$664 |
|||||
|
2023 |
118,000 |
89,610 |
9,857 |
1,000 |
8,857 |
117.71 |
$1,043 |
$485 |
|||||
|
2022 |
87,000 |
87,000 |
9,570 |
1,000 |
8,570 |
116.64 |
$1,000 |
$117 |
|||||
|
2021 |
87,000 |
87,000 |
9,570 |
1,000 |
8,570 |
119.45 |
$1,024 |
$119 |
|||||
| Property Account Status/Adjustments/Exemptions | ||
|---|---|---|
| Account # | Exemption Description | Amount |
|
R150103600 |
Homestead |
1,000 |
| Property Deed Transaction History (Recorded in the County Clerk's Office) | ||||||||||
|---|---|---|---|---|---|---|---|---|---|---|
| Date | Type | Book | Page | Price | Grantor | Grantee | ||||
|
8/25/2025 |
|
Deeds |
$150,000 |
BUSH VANCE & LATHIE |
MCDANIEL HANNAH |
|||||
|
5/26/2023 |
|
Deeds |
$0 |
BUSH VANCE |
BUSH VANCE & LATHIE |
|||||
|
4/16/2020 |
|
Deeds |
$85,000 |
EPPS ERIN MARIE |
BUSH VANCE |
|||||
|
4/28/2017 |
|
Deeds |
$75,000 |
KELLEY AMY |
EPPS ERIN MARIE |
|||||
|
12/15/2006 |
|
Deeds |
$65,000 |
PIERCE LELAND CRAIG |
KELLEY AMY |
|||||
| Last Mailed Notice of Value (N.O.V.) Information/History | ||||||||
|---|---|---|---|---|---|---|---|---|
| Year | Date | Market Value | Taxable Market Value | Gross Assessed | Exemption | Net Assessed | ||
|
2026 |
02/06/2026 |
144,500 |
144,500 |
15,895 |
0 |
15,895 |
||
|
2025 |
01/31/2025 |
140,000 |
95,066 |
10,456 |
1,000 |
9,456 |
||
|
2024 |
01/22/2024 |
132,500 |
92,298 |
10,152 |
1,000 |
9,152 |
||
|
2023 |
01/23/2023 |
118,000 |
89,610 |
9,857 |
1,000 |
8,857 |
||
|
2021 |
02/24/2021 |
87,000 |
87,000 |
9,570 |
1,000 |
8,570 |
||
| Property Building Permit History | |||||||||||
|---|---|---|---|---|---|---|---|---|---|---|---|
| Issued | Permit # | Provided by | Bldg # | Description | Est Construction Cost | Status | |||||
| No Building Permit records returned. | |||||||||||
| Click button on building number to access detailed information: | ||||||
|---|---|---|---|---|---|---|
| Bldg # | Vacant/Improved Land | Bldg Description | Year Built | SqFt | # Stories | |
|
1 |
Improved |
Ranch 1 Story |
1948 |
1,010 |
1 Stories |
|