Larry Stein Oklahoma County Assessor (405) 713-1200 - Public Access System
Home Contact Us Guest Book Map Search New Search
Real Property Display - Screen Produced   4/25/2026 3:21:24 PM 
Account: R120581130  Type: Residential

  

Location:

23125 BOBWHITE DR

Building Name/Occupant:

 

UNINCORPORATED

Owner Name 1:  RASMUSSON VANESSA MARIE & SPENCER JAMES

Parcel PIN#:

4837-12-058-1130

Owner Name 2:    1/4 section #:

4837

Owner Name 3:    Parent Acct:

 

Billing Address:  23125 BOB WHITE DR Tax District:

City, State, Zip  EDMOND, OK  73025-9441 School System:

Deer Creek #6

Country: (If noted)

  

Land Size:

1.7500  Acres

Personal Property

Land Value: 45,836 

Treasurer:

Sect 10-T14N-R4W Qtr NE

 QUAIL RIDGE   Block 000  Lot 014   Subdivision Sales
 Full Legal Description:  QUAIL RIDGE 000 014

NOTE:  The following sales may or may not be used to determine Fair Market Value

Photo & Sketch (if available) Sales  Sales Report

 23125 BOBWHITE DR UNINCORPORATED, OK

05/16/2024

 $525,000 

 4655 NW 220TH ST UNINCORPORATED, OK

03/01/2024

 $585,000 

 4117 NW 220TH ST UNINCORPORATED, OK

07/21/2025

 $540,000 

 22946 N ROCKWELL AVE UNINCORPORATED, OK

05/16/2025

 $805,000 

 17444 N ROCKWELL AVE UNINCORPORATED, OK

07/29/2024

 $400,000 

 22830 N ROCKWELL AVE UNINCORPORATED, OK

11/10/2025

 $665,000 

Value History  (*The County Treasurer 405-713-1300 posts & collects actual tax amounts.  Contact information  HERE)
Year Market Value Taxable Mkt Value Gross Assessed Exemption Net Assessed Millage Est. Tax Tax Savings

2026

524,000 

524,000 

57,640 

57,640 

114.35 

$6,591 

$0 

2025

524,000 

524,000 

57,640 

57,640 

114.35 

$6,591 

$0 

2024

248,500 

248,500 

27,335 

27,335 

116.19 

$3,176 

$0 

[1/10]
Property Account Status/Adjustments/Exemptions
Account # Exemption Description Amount

R120581130

5% Capped Account

Property Deed Transaction History   (Recorded in the County Clerk's Office)
Date Type Book Page Price Grantor Grantee

5/16/2024

Deeds

15758

1976

 $525,000 

BMG PROPERTIES LLC

RASMUSSON VANESSA MARIE & SPENCER JAMES

12/14/2023

Deeds

15630

1963

 $180,000 

DVILA SHANNON DALE & CINDY MICHELLE

BMG PROPERTIES LLC

4/19/2013

Deeds

12227

1787

 $154,500 

BENEDICT WILLIAM II & E A

DVILA SHANNON DALE & CINDY MICHELLE

[1/2]
Last Mailed Notice of Value (N.O.V.) Information/History
Year Date Market Value Taxable Market Value Gross Assessed Exemption Net Assessed

2025

01/31/2025

524,000 

524,000 

57,640 

57,640 

2024

01/22/2024

248,500 

248,500 

27,335 

27,335 

2023

01/23/2023

236,000 

194,917 

21,439 

21,439 

[1/4]
Property Building Permit History
Issued Permit # Provided by Bldg # Description Est Construction Cost Status
No Building Permit records returned.
Click button below to access detailed information and additional property photos:
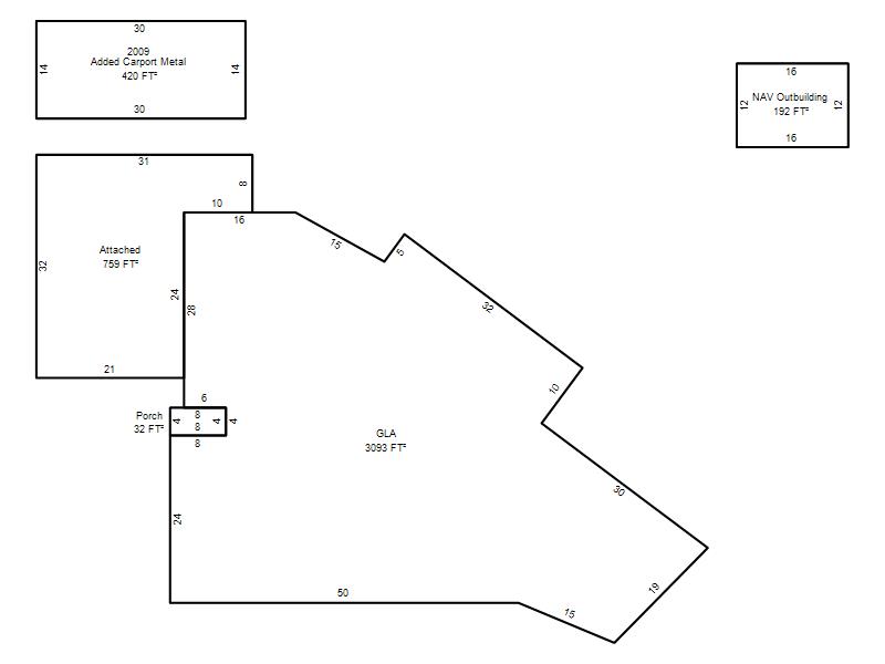
  Bldg # Vacant/Improved Land Bldg Description Year Built SqFt # Stories

Click

1

Improved

Earth Sheltered

1985

3,093 

1 Stories