Larry Stein Oklahoma County Assessor (405) 713-1200 - Public Access System
Home Contact Us Guest Book Map Search New Search
Real Property Display - Screen Produced   4/25/2026 3:14:00 PM 
Account: R257334020  Type: Residential

  

Location:

17444 N ROCKWELL AVE

Building Name/Occupant:

 

UNINCORPORATED

Owner Name 1:  ROCKWELL EQUINE INVESTMENTS LLC

Parcel PIN#:

4932-25-733-4020

Owner Name 2:    1/4 section #:

4932

Owner Name 3:    Parent Acct:

 

Billing Address:  20201 N ROCKWELL AVE Tax District:

City, State, Zip  EDMOND, OK  73012-9523 School System:

Deer Creek #6

Country: (If noted)

  

Land Size:

2.2700  Acres

Personal Property

Land Value: 77,467 

Treasurer:

Sect 33-T14N-R4W Qtr NW

 DEER CREEK TOWNSHIP   Block 000  Lot 000   Subdivision Sales
 Full Legal Description:  DEER CREEK TOWNSHIP 000 000 PT NW4 SEC 33 14N 4W BEG 290.50FT S OF NW/C S/2 NW4 TH E416.83FT S237.50FT W416.83FT N237.50FT TO BEG SUBJ TO ESMTS OF RECORD

NOTE:  The following sales may or may not be used to determine Fair Market Value

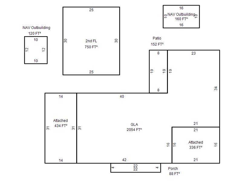
Photo & Sketch (if available) Sales  Sales Report

 17444 N ROCKWELL AVE UNINCORPORATED, OK

07/29/2024

 $400,000 

 23655 N MACARTHUR BLVD UNINCORPORATED, OK

09/12/2025

 $380,000 

 6501 NW 178TH ST UNINCORPORATED, OK

06/18/2025

 $375,000 

 21151 N MERIDIAN AVE UNINCORPORATED, OK

11/21/2025

 $250,000 

 4117 NW 220TH ST UNINCORPORATED, OK

07/21/2025

 $540,000 

 22946 N ROCKWELL AVE UNINCORPORATED, OK

05/16/2025

 $805,000 

Value History  (*The County Treasurer 405-713-1300 posts & collects actual tax amounts.  Contact information  HERE)
Year Market Value Taxable Mkt Value Gross Assessed Exemption Net Assessed Millage Est. Tax Tax Savings

2026

466,000 

466,000 

51,260 

51,260 

114.35 

$5,862 

$0 

2025

449,500 

449,500 

49,445 

49,445 

114.35 

$5,654 

$0 

2024

433,500 

135,033 

14,853 

1,000 

13,853 

116.19 

$1,610 

$3,931 

[1/10]
Property Account Status/Adjustments/Exemptions
Account # Exemption Description Amount

R257334020

5% Capped Account

Property Deed Transaction History   (Recorded in the County Clerk's Office)
Date Type Book Page Price Grantor Grantee

7/29/2024

Deeds

15824

870

 $0 

MORGAN PATRICIA A TRS

WATSON LEANNE TRS

7/29/2024

Deeds

15824

874

 $400,000 

WATSON LEANNE TRS

ROCKWELL EQUINE INVESTMENTS LLC

3/30/2021

Deeds

14703

1758

 $0 

MORGAN PATRICIA A

MORGAN PATRICIA A TRS

[1/5]
Last Mailed Notice of Value (N.O.V.) Information/History
Year Date Market Value Taxable Market Value Gross Assessed Exemption Net Assessed

2026

02/06/2026

466,000 

466,000 

51,260 

51,260 

2025

01/31/2025

449,500 

449,500 

49,445 

49,445 

2024

01/22/2024

433,500 

135,033 

14,853 

1,000 

13,853 

[1/5]
Property Building Permit History
Issued Permit # Provided by Bldg # Description Est Construction Cost Status

8/5/1994

10277630

OKLAHOMA CITY

1

Main Dwellin

86,000 

Inactive

Click button below to access detailed information and additional property photos:
  Bldg # Vacant/Improved Land Bldg Description Year Built SqFt # Stories

Click

1

Improved

1½ Story Fin

1994

2,804 

1.5 Stories