|
|
|
| Larry Stein Oklahoma County Assessor (405) 713-1200 - Public Access System |
|
|
|
|
|
|
| Real Property Display - Screen Produced 2/27/2026 3:34:56 AM | ||||
|---|---|---|---|---|
| Account: R181711060 | Type: Residential | Location: |
21700 N HEIDI DR |
|
| Building Name/Occupant: |
|
UNINCORPORATED |
||
| Owner Name 1: | ALSOBROOK BOBBY |
Parcel PIN#: |
4864-18-171-1060 |
|
| Owner Name 2: | ALSOBROOK JOYCE | 1/4 section #: |
4864 |
|
| Owner Name 3: | Parent Acct: |
|
||
| Billing Address: | 21600 N HEIDI DR | Tax District: |
|
|
| City, State, Zip | EDMOND, OK 73012 | School System: |
Deer Creek #6 |
|
|
Country: (If noted) |
Land Size: |
2.5000 Acres |
||
|
Land Value: 55,000 |
|
|||
|
Sect 16-T14N-R4W Qtr NW |
CAROLEE ESTATES
Block
002
Lot
003
|
|||
| Full Legal Description: CAROLEE ESTATES 002 003 |
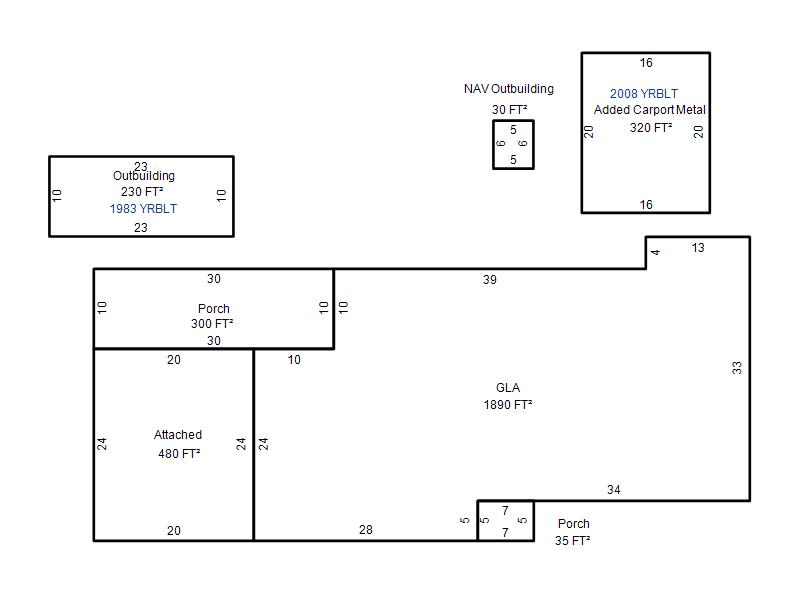
| Photo & Sketch (if available) | Comp Sales (ordered by relevancy) |
|
||||||||||||||||||
|
||||||||||||||||||||
| Value History (*The County Treasurer 405-713-1300 posts & collects actual tax amounts. Contact information HERE) | |||||||||||||
|---|---|---|---|---|---|---|---|---|---|---|---|---|---|
| Year | Market Value | Taxable Mkt Value | Gross Assessed | Exemption | Net Assessed | Millage | Est. Tax | Tax Savings | |||||
|
2025 |
338,500 |
338,500 |
37,235 |
0 |
37,235 |
114.35 |
$4,258 |
$0 |
|||||
|
2024 |
318,500 |
219,203 |
24,112 |
1,000 |
23,112 |
116.19 |
$2,685 |
$1,385 |
|||||
|
2023 |
315,000 |
212,819 |
23,409 |
1,000 |
22,409 |
116.77 |
$2,617 |
$1,429 |
|||||
|
2022 |
282,000 |
206,621 |
22,727 |
1,000 |
21,727 |
114.81 |
$2,495 |
$1,067 |
|||||
|
2021 |
217,500 |
200,603 |
22,065 |
1,000 |
21,065 |
112.90 |
$2,378 |
$323 |
|||||
| Property Account Status/Adjustments/Exemptions | ||
|---|---|---|
| Account # | Exemption Description | Amount |
|
R181711060 |
5% Capped Account |
0 |
| Property Deed Transaction History (Recorded in the County Clerk's Office) | |||||||
|---|---|---|---|---|---|---|---|
| Date | Type | Book | Page | Price | Grantor | Grantee | |
|
9/16/2024 |
|
Deeds |
$382,500 |
LOWERY DANNIE & MARILYN TRS |
ALSOBROOK BOBBY |
||
|
6/10/2010 |
|
Deeds |
$0 |
LOWERY DANNIE J & MARILYN K |
LOWERY DANNIE & MARILYN TRS |
||
|
6/1/1984 |
|
Historical |
$0 |
|
LOWERY DANNIE J & MARILYN K |
||
| Last Mailed Notice of Value (N.O.V.) Information/History | ||||||||
|---|---|---|---|---|---|---|---|---|
| Year | Date | Market Value | Taxable Market Value | Gross Assessed | Exemption | Net Assessed | ||
|
2026 |
02/06/2026 |
353,500 |
353,500 |
38,885 |
0 |
38,885 |
||
|
2025 |
01/31/2025 |
338,500 |
338,500 |
37,235 |
0 |
37,235 |
||
|
2024 |
01/22/2024 |
318,500 |
219,203 |
24,112 |
1,000 |
23,112 |
||
|
2023 |
01/23/2023 |
315,000 |
212,819 |
23,409 |
1,000 |
22,409 |
||
|
2022 |
02/22/2022 |
282,000 |
206,621 |
22,726 |
1,000 |
21,726 |
||
| Property Building Permit History | |||||||||||
|---|---|---|---|---|---|---|---|---|---|---|---|
| Issued | Permit # | Provided by | Bldg # | Description | Est Construction Cost | Status | |||||
| No Building Permit records returned. | |||||||||||
| Click button on building number to access detailed information: | ||||||
|---|---|---|---|---|---|---|
| Bldg # | Vacant/Improved Land | Bldg Description | Year Built | SqFt | # Stories | |
|
1 |
Improved |
Ranch 1 Story |
1983 |
1,890 |
1 Stories |
|