|
|
|
| Larry Stein Oklahoma County Assessor (405) 713-1200 - Public Access System |
|
|
|
|
|
|
| Real Property Display - Screen Produced 2/27/2026 5:22:55 AM | ||||
|---|---|---|---|---|
| Account: R211371020 | Type: Residential | Location: |
5900 MONTFORD WAY |
|
| Building Name/Occupant: |
|
OKLAHOMA CITY |
||
| Owner Name 1: | SWAFFORD JASON P |
Parcel PIN#: |
1295-21-137-1020 |
|
| Owner Name 2: | SWAFFORD MEGAN | 1/4 section #: |
1295 |
|
| Owner Name 3: | Parent Acct: |
1295-16-852-2830 |
||
| Billing Address: | 5900 MONTFORD WAY | Tax District: |
|
|
| City, State, Zip | CHOCTAW, OK 73020-2019 | School System: |
Choctaw #4 |
|
|
Country: (If noted) |
Land Size: |
0.8183 Acres |
||
|
Land Value: 78,419 |
|
|||
|
Sect 24-T11N-R1W Qtr SW |
ASHEVILLE PH II
Block
004
Lot
003
|
|||
| Full Legal Description: ASHEVILLE PH II 004 003 |
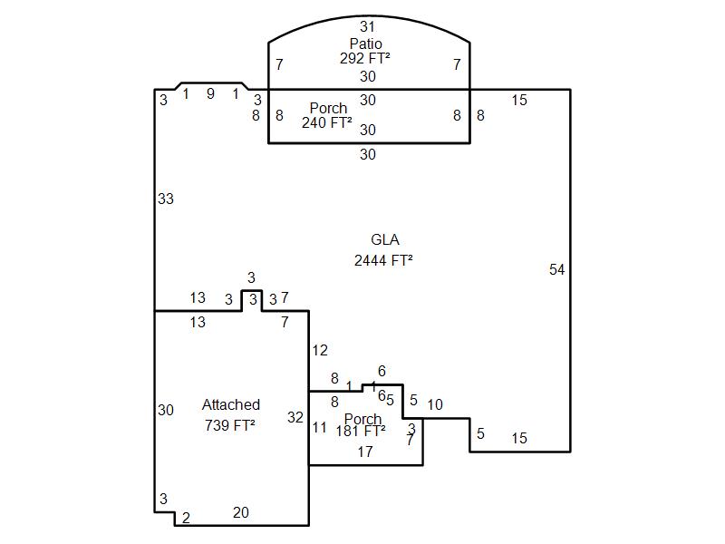
| Photo & Sketch (if available) | Comp Sales (ordered by relevancy) |
|
||||||||||||||||||
|
||||||||||||||||||||
| Value History (*The County Treasurer 405-713-1300 posts & collects actual tax amounts. Contact information HERE) | |||||||||||||
|---|---|---|---|---|---|---|---|---|---|---|---|---|---|
| Year | Market Value | Taxable Mkt Value | Gross Assessed | Exemption | Net Assessed | Millage | Est. Tax | Tax Savings | |||||
|
2025 |
432,500 |
432,500 |
47,575 |
0 |
47,575 |
132.37 |
$6,298 |
$0 |
|||||
|
2024 |
409,500 |
382,275 |
42,049 |
0 |
42,049 |
131.28 |
$5,520 |
$393 |
|||||
|
2023 |
426,000 |
364,072 |
40,047 |
0 |
40,047 |
131.88 |
$5,282 |
$898 |
|||||
|
2022 |
372,500 |
346,736 |
38,140 |
0 |
38,140 |
130.63 |
$4,982 |
$370 |
|||||
|
2021 |
334,500 |
330,225 |
36,324 |
0 |
36,324 |
129.79 |
$4,715 |
$61 |
|||||
| Property Account Status/Adjustments/Exemptions | ||
|---|---|---|
| Account # | Exemption Description | Amount |
|
R211371020 |
5% Capped Account |
0 |
| Property Deed Transaction History (Recorded in the County Clerk's Office) | |||||||
|---|---|---|---|---|---|---|---|
| Date | Type | Book | Page | Price | Grantor | Grantee | |
|
9/10/2024 |
|
Deeds |
$415,000 |
HOFFMAN KARI K TRS |
SWAFFORD JASON P |
||
|
6/30/2020 |
|
Deeds |
$0 |
HOFFMAN KARI & ROBERT |
HOFFMAN KARI |
||
|
6/30/2020 |
|
Deeds |
$0 |
HOFFMAN KARI |
HOFFMAN KARI K TRS |
||
|
4/30/2013 |
|
Deeds |
$275,500 |
4 CORNERS CONSTRUCTION LLC |
HOFFMAN KARI & ROBERT |
||
|
12/14/2012 |
|
Deeds |
$48,500 |
TD INVESTMENTS LLC |
4 CORNERS CONSTRUCTION LLC |
||
| Last Mailed Notice of Value (N.O.V.) Information/History | ||||||||
|---|---|---|---|---|---|---|---|---|
| Year | Date | Market Value | Taxable Market Value | Gross Assessed | Exemption | Net Assessed | ||
|
2026 |
02/06/2026 |
439,500 |
439,500 |
48,345 |
0 |
48,345 |
||
|
2025 |
01/31/2025 |
432,500 |
432,500 |
47,575 |
0 |
47,575 |
||
|
2024 |
01/22/2024 |
409,500 |
382,275 |
42,049 |
0 |
42,049 |
||
|
2023 |
01/23/2023 |
426,000 |
364,072 |
40,047 |
0 |
40,047 |
||
|
2022 |
02/22/2022 |
372,500 |
346,736 |
38,140 |
0 |
38,140 |
||
| Property Building Permit History | ||||||
|---|---|---|---|---|---|---|
| Issued | Permit # | Provided by | Bldg # | Description | Est Construction Cost | Status |
|
12/21/2012 |
10447320 |
OKLAHOMA CITY |
1 |
Main Dwellin |
175,000 |
Inactive |
| Click button on building number to access detailed information: | ||||||
|---|---|---|---|---|---|---|
| Bldg # | Vacant/Improved Land | Bldg Description | Year Built | SqFt | # Stories | |
|
1 |
Improved |
Ranch 1 Story |
2013 |
2,444 |
1 Stories |
|