|
|
|
| Larry Stein Oklahoma County Assessor (405) 713-1200 - Public Access System |
|
|
|
|
|
|
| Real Property Display - Screen Produced 2/27/2026 5:47:05 AM | ||||
|---|---|---|---|---|
| Account: R211371270 | Type: Residential | Location: |
15401 SE 57TH ST |
|
| Building Name/Occupant: |
|
OKLAHOMA CITY |
||
| Owner Name 1: | WHITE GLEN & DONNA REV TRUST |
Parcel PIN#: |
1295-21-137-1270 |
|
| Owner Name 2: | 1/4 section #: |
1295 |
||
| Owner Name 3: | Parent Acct: |
1295-16-852-2830 |
||
| Billing Address: | 15401 SE 57TH ST | Tax District: |
|
|
| City, State, Zip | CHOCTAW, OK 73020-9567 | School System: |
Choctaw #4 |
|
|
Country: (If noted) |
Land Size: |
0.8049 Acres |
||
|
Land Value: 77,135 |
|
|||
|
Sect 24-T11N-R1W Qtr SW |
ASHEVILLE PH II
Block
006
Lot
002
|
|||
| Full Legal Description: ASHEVILLE PH II 006 002 |
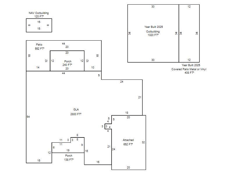
| Photo & Sketch (if available) | Comp Sales (ordered by relevancy) |
|
||||||||||||||||||
|
||||||||||||||||||||
| Value History (*The County Treasurer 405-713-1300 posts & collects actual tax amounts. Contact information HERE) | |||||||||||||
|---|---|---|---|---|---|---|---|---|---|---|---|---|---|
| Year | Market Value | Taxable Mkt Value | Gross Assessed | Exemption | Net Assessed | Millage | Est. Tax | Tax Savings | |||||
|
2025 |
448,500 |
448,500 |
49,335 |
0 |
49,335 |
132.37 |
$6,530 |
$0 |
|||||
|
2024 |
422,500 |
388,353 |
42,718 |
0 |
42,718 |
131.28 |
$5,608 |
$493 |
|||||
|
2023 |
431,000 |
369,860 |
40,684 |
0 |
40,684 |
131.88 |
$5,365 |
$887 |
|||||
|
2022 |
373,000 |
352,248 |
38,747 |
0 |
38,747 |
130.63 |
$5,062 |
$298 |
|||||
|
2021 |
338,000 |
335,475 |
36,902 |
0 |
36,902 |
129.79 |
$4,790 |
$36 |
|||||
| Property Account Status/Adjustments/Exemptions | ||
|---|---|---|
| Account # | Exemption Description | Amount |
|
R211371270 |
5% Capped Account |
0 |
| Property Deed Transaction History (Recorded in the County Clerk's Office) | |||||||
|---|---|---|---|---|---|---|---|
| Date | Type | Book | Page | Price | Grantor | Grantee | |
|
5/19/2025 |
|
Hmstd Off & |
$0 |
RENEWAL PROPERTIES LLC |
WHITE GLEN & DONNA REV TRUST |
||
|
4/12/2024 |
|
Deeds |
$400,000 |
SCHATZ JOHN JAMES JR |
RENEWAL PROPERTIES LLC |
||
|
10/31/2013 |
|
Deeds |
$300,500 |
4 CORNERS CONSTRUCTION LLC |
SCHATZ JOHN JAMES JR |
||
|
5/3/2013 |
|
Deeds |
$48,500 |
TD INVESTMENTS LLC |
4 CORNERS CONSTRUCTION LLC |
||
| Last Mailed Notice of Value (N.O.V.) Information/History | ||||||||
|---|---|---|---|---|---|---|---|---|
| Year | Date | Market Value | Taxable Market Value | Gross Assessed | Exemption | Net Assessed | ||
|
2025 |
01/31/2025 |
448,500 |
448,500 |
49,335 |
0 |
49,335 |
||
|
2024 |
01/22/2024 |
422,500 |
388,353 |
42,718 |
0 |
42,718 |
||
|
2023 |
01/23/2023 |
431,000 |
369,860 |
40,684 |
0 |
40,684 |
||
|
2022 |
02/22/2022 |
373,000 |
352,248 |
38,747 |
0 |
38,747 |
||
|
2021 |
02/24/2021 |
338,000 |
335,475 |
36,902 |
0 |
36,902 |
||
| Property Building Permit History | ||||||
|---|---|---|---|---|---|---|
| Issued | Permit # | Provided by | Bldg # | Description | Est Construction Cost | Status |
|
10/7/2025 |
BLDR-2025-04791 |
|
1 |
Storage Buil |
13,986 |
Inactive |
|
5/10/2013 |
10452434 |
OKLAHOMA CITY |
1 |
Main Dwellin |
199,000 |
Inactive |
| Click button on building number to access detailed information: | ||||||
|---|---|---|---|---|---|---|
| Bldg # | Vacant/Improved Land | Bldg Description | Year Built | SqFt | # Stories | |
|
1 |
Improved |
Ranch 1 Story |
2013 |
2,800 |
1 Stories |
|