|
|
|
| Larry Stein Oklahoma County Assessor (405) 713-1200 - Public Access System |
|
|
|
|
|
|
| Real Property Display - Screen Produced 3/16/2026 12:50:33 PM | ||||
|---|---|---|---|---|
| Account: R088541000 | Type: Residential | Location: |
1401 SE 39TH ST |
|
| Building Name/Occupant: |
|
OKLAHOMA CITY |
||
| Owner Name 1: | MCKINNEY INVESTMENTS LLC |
Parcel PIN#: |
1655-08-854-1000 |
|
| Owner Name 2: | 1/4 section #: |
1655 |
||
| Owner Name 3: | Parent Acct: |
|
||
| Billing Address: | 1109 CHOCTAW RIDGE RD | Tax District: |
|
|
| City, State, Zip | MIDWEST CITY, OK 73130-6130 | School System: |
Oklahoma City #89 |
|
|
Country: (If noted) |
Land Size: |
0.1607 Acres |
||
|
Land Value: 11,200 |
|
|||
|
Sect 14-T11N-R3W Qtr SW |
FOX GARDEN ADDITION
Block
001
Lot
040
|
|||
| Full Legal Description: FOX GARDEN ADDITION 001 040 |
| Photo & Sketch (if available) | Comp Sales (ordered by relevancy) |
|
||||||||||||||||||
|
||||||||||||||||||||
| Value History (*The County Treasurer 405-713-1300 posts & collects actual tax amounts. Contact information HERE) | |||||||||||||
|---|---|---|---|---|---|---|---|---|---|---|---|---|---|
| Year | Market Value | Taxable Mkt Value | Gross Assessed | Exemption | Net Assessed | Millage | Est. Tax | Tax Savings | |||||
|
2025 |
99,000 |
99,000 |
10,890 |
0 |
10,890 |
119.02 |
$1,296 |
$0 |
|||||
|
2024 |
89,500 |
85,575 |
9,413 |
0 |
9,413 |
119.70 |
$1,127 |
$52 |
|||||
|
2023 |
81,500 |
81,500 |
8,965 |
0 |
8,965 |
118.33 |
$1,061 |
$0 |
|||||
|
2022 |
49,500 |
33,022 |
3,631 |
0 |
3,631 |
112.69 |
$409 |
$204 |
|||||
|
2021 |
42,000 |
31,450 |
3,458 |
0 |
3,458 |
112.29 |
$388 |
$130 |
|||||
| Property Account Status/Adjustments/Exemptions | ||
|---|---|---|
| Account # | Exemption Description | Amount |
|
R088541000 |
5% Capped Account |
0 |
| Property Deed Transaction History (Recorded in the County Clerk's Office) | ||||||||||
|---|---|---|---|---|---|---|---|---|---|---|
| Date | Type | Book | Page | Price | Grantor | Grantee | ||||
|
11/1/2024 |
|
Deeds |
$95,000 |
MINER SYDNEY |
MCKINNEY INVESTMENTS LLC |
|||||
|
6/3/2022 |
|
Deeds |
$75,000 |
SMITH KEVIN |
MINER SYDNEY |
|||||
|
6/18/2008 |
|
Hmstd Off & |
$0 |
TULLIS GEORGIA REV TRUST ETAL TULLIS GEORGIA M CO TRS |
SMITH KEVIN |
|||||
|
3/15/1994 |
|
Historical |
$0 |
TULLIS GEORGIA |
TULLIS GEORGIA REV TRUST ETAL |
|||||
|
1/25/1994 |
|
Historical |
$0 |
TULLIS ANDREW |
TULLIS GEORGIA |
|||||
| Last Mailed Notice of Value (N.O.V.) Information/History | ||||||||
|---|---|---|---|---|---|---|---|---|
| Year | Date | Market Value | Taxable Market Value | Gross Assessed | Exemption | Net Assessed | ||
|
2026 |
02/06/2026 |
102,500 |
102,500 |
11,275 |
0 |
11,275 |
||
|
2025 |
01/31/2025 |
99,000 |
99,000 |
10,890 |
0 |
10,890 |
||
|
2024 |
01/22/2024 |
89,500 |
85,575 |
9,413 |
0 |
9,413 |
||
|
2023 |
01/23/2023 |
81,500 |
81,500 |
8,965 |
0 |
8,965 |
||
|
2022 |
02/22/2022 |
49,500 |
33,022 |
3,630 |
0 |
3,630 |
||
| Property Building Permit History | |||||||||||
|---|---|---|---|---|---|---|---|---|---|---|---|
| Issued | Permit # | Provided by | Bldg # | Description | Est Construction Cost | Status | |||||
| No Building Permit records returned. | |||||||||||
| Click button on building number to access detailed information: | ||||||
|---|---|---|---|---|---|---|
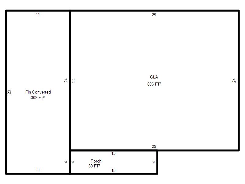
| Bldg # | Vacant/Improved Land | Bldg Description | Year Built | SqFt | # Stories | |
|
1 |
Improved |
Ranch 1 Story |
1954 |
696 |
1 Stories |
|