|
|
|
| Larry Stein Oklahoma County Assessor (405) 713-1200 - Public Access System |
|
|
|
|
|
|
| Real Property Display - Screen Produced 3/16/2026 12:50:32 PM | ||||
|---|---|---|---|---|
| Account: R088543975 | Type: Residential | Location: |
1340 SE 41ST ST |
|
| Building Name/Occupant: |
|
OKLAHOMA CITY |
||
| Owner Name 1: | KINNEY ENTERPRISES 17 LLC |
Parcel PIN#: |
1655-08-854-3975 |
|
| Owner Name 2: | 1/4 section #: |
1655 |
||
| Owner Name 3: | Parent Acct: |
|
||
| Billing Address: | PO BOX 5633 | Tax District: |
|
|
| City, State, Zip | EDMOND, OK 73083-5633 | School System: |
Oklahoma City #89 |
|
|
Country: (If noted) |
Land Size: |
0.1607 Acres |
||
|
Land Value: 11,200 |
|
|||
|
Sect 14-T11N-R3W Qtr SW |
FOX GARDEN ADDITION
Block
004
Lot
012
|
|||
| Full Legal Description: FOX GARDEN ADDITION 004 012 |
| Photo & Sketch (if available) | Comp Sales (ordered by relevancy) |
|
||||||||||||||||||
|
||||||||||||||||||||
| Value History (*The County Treasurer 405-713-1300 posts & collects actual tax amounts. Contact information HERE) | |||||||||||||
|---|---|---|---|---|---|---|---|---|---|---|---|---|---|
| Year | Market Value | Taxable Mkt Value | Gross Assessed | Exemption | Net Assessed | Millage | Est. Tax | Tax Savings | |||||
|
2025 |
70,000 |
66,150 |
7,276 |
0 |
7,276 |
119.02 |
$866 |
$50 |
|||||
|
2024 |
63,000 |
63,000 |
6,930 |
0 |
6,930 |
119.70 |
$830 |
$0 |
|||||
|
2023 |
57,000 |
41,478 |
4,562 |
0 |
4,562 |
118.33 |
$540 |
$202 |
|||||
|
2022 |
48,000 |
39,503 |
4,344 |
0 |
4,344 |
112.69 |
$490 |
$105 |
|||||
|
2021 |
40,000 |
37,622 |
4,138 |
0 |
4,138 |
112.29 |
$465 |
$29 |
|||||
| Property Account Status/Adjustments/Exemptions | ||
|---|---|---|
| Account # | Exemption Description | Amount |
|
R088543975 |
5% Capped Account |
0 |
| Property Deed Transaction History (Recorded in the County Clerk's Office) | |||||||
|---|---|---|---|---|---|---|---|
| Date | Type | Book | Page | Price | Grantor | Grantee | |
|
12/20/2023 |
|
Deeds |
$65,000 |
WEINRICH ENTERPRISES LLC |
KINNEY ENTERPRISES 17 LLC |
||
|
7/26/2023 |
|
Deeds |
$38,000 |
SCHMEDT MICHAEL A & BECCA L |
WEINRICH ENTERPRISES LLC |
||
|
10/23/2009 |
|
Deeds |
$0 |
CORRECTED SHERIFFS DEED |
SCHMEDT MICHAEL A & BECCA L |
||
|
3/1/1980 |
|
Historical |
$0 |
|
KEEFER DONALD EDWARD & BERTHA |
||
| Last Mailed Notice of Value (N.O.V.) Information/History | ||||||||
|---|---|---|---|---|---|---|---|---|
| Year | Date | Market Value | Taxable Market Value | Gross Assessed | Exemption | Net Assessed | ||
|
2026 |
02/06/2026 |
73,500 |
69,457 |
7,639 |
0 |
7,639 |
||
|
2025 |
01/31/2025 |
70,000 |
66,150 |
7,276 |
0 |
7,276 |
||
|
2024 |
01/22/2024 |
63,000 |
63,000 |
6,930 |
0 |
6,930 |
||
|
2023 |
01/23/2023 |
57,000 |
41,478 |
4,562 |
0 |
4,562 |
||
|
2022 |
02/22/2022 |
48,000 |
39,503 |
4,344 |
0 |
4,344 |
||
| Property Building Permit History | ||||||
|---|---|---|---|---|---|---|
| Issued | Permit # | Provided by | Bldg # | Description | Est Construction Cost | Status |
|
3/8/2010 |
10404320 |
OKLAHOMA CITY |
1 |
Remodeled |
700 |
Inactive |
| Click button on building number to access detailed information: | ||||||
|---|---|---|---|---|---|---|
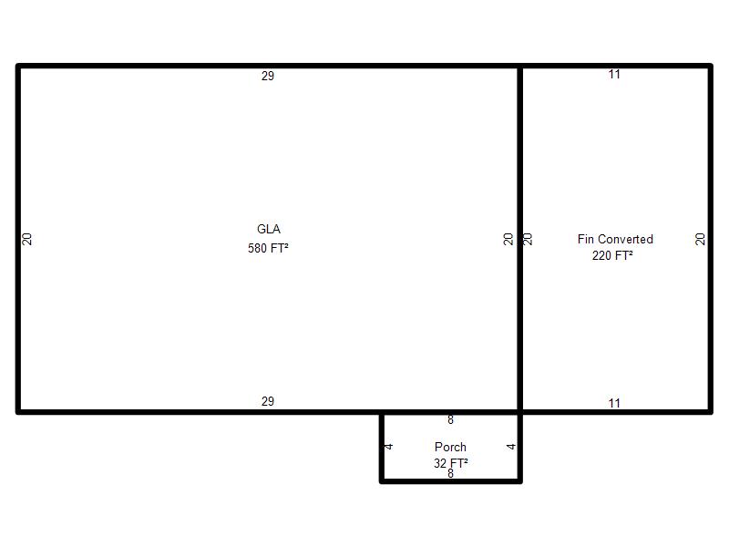
| Bldg # | Vacant/Improved Land | Bldg Description | Year Built | SqFt | # Stories | |
|
1 |
Improved |
Ranch 1 Story |
1954 |
580 |
1 Stories |
|