|
|
|
| Larry Stein Oklahoma County Assessor (405) 713-1200 - Public Access System |
|
|
|
|
|
|
| Real Property Display - Screen Produced 3/13/2026 12:56:31 AM | ||||
|---|---|---|---|---|
| Account: R113294310 | Type: Residential | Location: |
2533 SE 45TH ST |
|
| Building Name/Occupant: |
|
OKLAHOMA CITY |
||
| Owner Name 1: | LAZOS ARTURO |
Parcel PIN#: |
1693-11-329-4310 |
|
| Owner Name 2: | 1/4 section #: |
1693 |
||
| Owner Name 3: | Parent Acct: |
|
||
| Billing Address: | 3730 DECKER DR | Tax District: |
|
|
| City, State, Zip | MOORE, OK 73160-8606 | School System: |
Oklahoma City #89 |
|
|
Country: (If noted) |
Land Size: |
0.1667 Acres |
||
|
Land Value: 14,520 |
|
|||
|
Sect 24-T11N-R3W Qtr NE |
LUMBERMANS # 3 ADD
Block
019
Lot
006
|
|||
| Full Legal Description: LUMBERMANS # 3 ADD 019 006 |
| Photo & Sketch (if available) | Comp Sales (ordered by relevancy) |
|
||||||||||||||||||
|
||||||||||||||||||||
| Value History (*The County Treasurer 405-713-1300 posts & collects actual tax amounts. Contact information HERE) | |||||||||||||
|---|---|---|---|---|---|---|---|---|---|---|---|---|---|
| Year | Market Value | Taxable Mkt Value | Gross Assessed | Exemption | Net Assessed | Millage | Est. Tax | Tax Savings | |||||
|
2025 |
110,000 |
110,000 |
12,100 |
0 |
12,100 |
119.02 |
$1,440 |
$0 |
|||||
|
2024 |
99,500 |
69,890 |
7,687 |
0 |
7,687 |
119.70 |
$920 |
$390 |
|||||
|
2023 |
85,500 |
66,562 |
7,321 |
0 |
7,321 |
118.33 |
$866 |
$247 |
|||||
|
2022 |
76,000 |
63,393 |
6,973 |
0 |
6,973 |
112.69 |
$786 |
$156 |
|||||
|
2021 |
63,500 |
60,375 |
6,641 |
0 |
6,641 |
112.29 |
$746 |
$39 |
|||||
| Property Account Status/Adjustments/Exemptions | ||
|---|---|---|
| Account # | Exemption Description | Amount |
|
R113294310 |
5% Capped Account |
0 |
| Property Deed Transaction History (Recorded in the County Clerk's Office) | |||||||
|---|---|---|---|---|---|---|---|
| Date | Type | Book | Page | Price | Grantor | Grantee | |
|
3/13/2024 |
|
Deeds |
$110,500 |
MEYER REAL ESTATE LLC |
LAZOS ARTURO |
||
|
7/28/2016 |
|
Hmstd Off & |
$0 |
MEYER PATRICIA A & DANIEL C CO TRS |
MEYER REAL ESTATE LLC |
||
|
3/8/2013 |
|
Hmstd Off & |
$0 |
BOYDSTON ALFRED & ANNIE CO TRS |
MEYER PATRICIA A & DANIEL C CO TRS |
||
|
10/8/1987 |
|
Historical |
$0 |
BOYDSTON ANN |
BOYDSTON ALFRED & ANNIE CO TRS |
||
|
10/1/1978 |
|
Historical |
$0 |
|
BOYDSTON ANN |
||
| Last Mailed Notice of Value (N.O.V.) Information/History | ||||||||
|---|---|---|---|---|---|---|---|---|
| Year | Date | Market Value | Taxable Market Value | Gross Assessed | Exemption | Net Assessed | ||
|
2025 |
01/31/2025 |
110,000 |
110,000 |
12,100 |
0 |
12,100 |
||
|
2024 |
01/22/2024 |
99,500 |
69,890 |
7,687 |
0 |
7,687 |
||
|
2024 |
04/05/2024 |
99,500 |
69,890 |
7,687 |
0 |
7,687 |
||
|
2023 |
01/23/2023 |
85,500 |
66,562 |
7,321 |
0 |
7,321 |
||
|
2022 |
02/22/2022 |
76,000 |
63,393 |
6,973 |
0 |
6,973 |
||
| Property Building Permit History | |||||||||||
|---|---|---|---|---|---|---|---|---|---|---|---|
| Issued | Permit # | Provided by | Bldg # | Description | Est Construction Cost | Status | |||||
| No Building Permit records returned. | |||||||||||
| Click button on building number to access detailed information: | ||||||
|---|---|---|---|---|---|---|
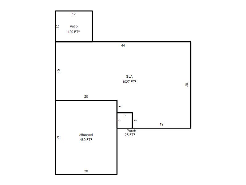
| Bldg # | Vacant/Improved Land | Bldg Description | Year Built | SqFt | # Stories | |
|
1 |
Improved |
Ranch 1 Story |
1972 |
1,027 |
1 Stories |
|