|
|
|
| Larry Stein Oklahoma County Assessor (405) 713-1200 - Public Access System |
|
|
|
|
|
|
| Real Property Display - Screen Produced 3/17/2026 7:49:00 AM | ||||
|---|---|---|---|---|
| Account: R099161020 | Type: Residential | Location: |
1309 SW 71ST TER |
|
| Building Name/Occupant: |
|
OKLAHOMA CITY |
||
| Owner Name 1: | MXN INVESTMENTS LLC |
Parcel PIN#: |
1715-09-916-1020 |
|
| Owner Name 2: | 1/4 section #: |
1715 |
||
| Owner Name 3: | Parent Acct: |
|
||
| Billing Address: | 1346 LOWRIE LN | Tax District: |
|
|
| City, State, Zip | OKLAHOMA CITY, OK 73159 | School System: |
Oklahoma City #89 |
|
|
Country: (If noted) |
Land Size: |
0.2831 Acres |
||
|
Land Value: 39,100 |
|
|||
|
Sect 29-T11N-R3W Qtr SW |
P B ODOMS HILLCREST PARK SEC 3
Block
008
Lot
003
|
|||
| Full Legal Description: P B ODOMS HILLCREST PARK SEC 3 008 003 |
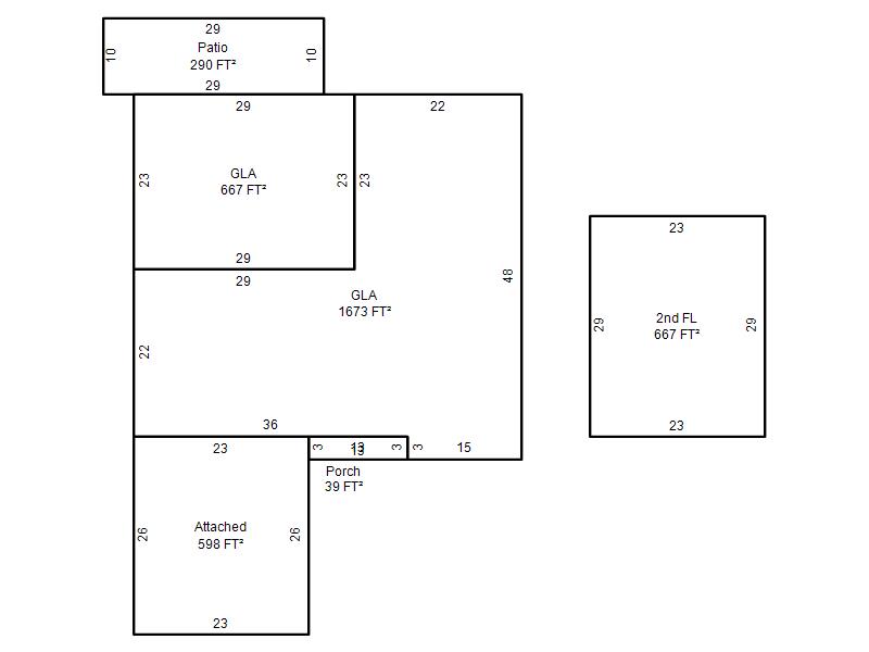
| Photo & Sketch (if available) | Comp Sales (ordered by relevancy) |
|
||||||||||||||||||
|
||||||||||||||||||||
| Value History (*The County Treasurer 405-713-1300 posts & collects actual tax amounts. Contact information HERE) | |||||||||||||
|---|---|---|---|---|---|---|---|---|---|---|---|---|---|
| Year | Market Value | Taxable Mkt Value | Gross Assessed | Exemption | Net Assessed | Millage | Est. Tax | Tax Savings | |||||
|
2025 |
275,500 |
275,500 |
30,305 |
0 |
30,305 |
119.02 |
$3,607 |
$0 |
|||||
|
2024 |
268,500 |
203,153 |
22,345 |
1,000 |
21,345 |
119.70 |
$2,555 |
$980 |
|||||
|
2023 |
253,500 |
197,236 |
21,695 |
1,000 |
20,695 |
118.33 |
$2,449 |
$851 |
|||||
|
2022 |
222,000 |
191,492 |
21,063 |
1,000 |
20,063 |
112.69 |
$2,261 |
$491 |
|||||
|
2021 |
194,000 |
185,915 |
20,450 |
1,000 |
19,450 |
112.29 |
$2,184 |
$212 |
|||||
| Property Account Status/Adjustments/Exemptions | ||
|---|---|---|
| Account # | Exemption Description | Amount |
|
R099161020 |
5% Capped Account |
0 |
| Property Deed Transaction History (Recorded in the County Clerk's Office) | |||||||
|---|---|---|---|---|---|---|---|
| Date | Type | Book | Page | Price | Grantor | Grantee | |
|
9/25/2024 |
|
Deeds |
$290,000 |
TODD MARJORIE L LIV TRUST |
MXN INVESTMENTS LLC |
||
|
6/12/2006 |
|
Deeds |
$0 |
TODD MARJORIE LEE |
TODD MARJORIE LTRS |
||
|
6/12/2006 |
|
Hmstd Off & |
$0 |
MXN INVESTMENTS LLC |
ROCKFORD BRIAN TODD SUCC TRS |
||
|
3/29/2006 |
|
Deeds |
$0 |
TODD ROBERT P & MARJORIE L |
TODD MARJORIE LEE |
||
|
11/11/1911 |
|
Historical |
$0 |
|
TODD ROBERT P & MARJORIE L |
||
| Last Mailed Notice of Value (N.O.V.) Information/History | ||||||||
|---|---|---|---|---|---|---|---|---|
| Year | Date | Market Value | Taxable Market Value | Gross Assessed | Exemption | Net Assessed | ||
|
2026 |
02/06/2026 |
282,000 |
282,000 |
31,020 |
0 |
31,020 |
||
|
2025 |
01/31/2025 |
275,500 |
275,500 |
30,305 |
0 |
30,305 |
||
|
2024 |
01/22/2024 |
268,500 |
203,153 |
22,345 |
1,000 |
21,345 |
||
|
2023 |
01/23/2023 |
253,500 |
197,236 |
21,695 |
1,000 |
20,695 |
||
|
2022 |
02/22/2022 |
222,000 |
191,492 |
21,063 |
1,000 |
20,063 |
||
| Property Building Permit History | |||||||||||
|---|---|---|---|---|---|---|---|---|---|---|---|
| Issued | Permit # | Provided by | Bldg # | Description | Est Construction Cost | Status | |||||
| No Building Permit records returned. | |||||||||||
| Click button on building number to access detailed information: | ||||||
|---|---|---|---|---|---|---|
| Bldg # | Vacant/Improved Land | Bldg Description | Year Built | SqFt | # Stories | |
|
1 |
Improved |
1½ Story Fin |
1968 |
3,007 |
1.5 Stories |
|