|
|
|
| Larry Stein Oklahoma County Assessor (405) 713-1200 - Public Access System |
|
|
|
|
|
|
| Real Property Display - Screen Produced 3/15/2026 12:24:48 PM | ||||
|---|---|---|---|---|
| Account: R143582115 | Type: Residential | Location: |
3025 SW 67TH ST |
|
| Building Name/Occupant: |
|
OKLAHOMA CITY |
||
| Owner Name 1: | ROSALES JUAN FRANCISCO CONTRERAS |
Parcel PIN#: |
1898-14-358-2115 |
|
| Owner Name 2: | 1/4 section #: |
1898 |
||
| Owner Name 3: | Parent Acct: |
|
||
| Billing Address: | 3025 SW 67TH ST | Tax District: |
|
|
| City, State, Zip | OKLAHOMA CITY, OK 73159-2303 | School System: |
Western Heights #41 |
|
|
Country: (If noted) |
Land Size: |
0.1433 Acres |
||
|
Land Value: 15,101 |
|
|||
|
Sect 25-T11N-R4W Qtr SE |
MADOLE HILL CREST GREEN #1
Block
009
Lot
000
|
|||
| Full Legal Description: MADOLE HILL CREST GREEN #1 009 000 ELY PRT LOT 10 BEING 65.04FT ON N & 65FT ON S |
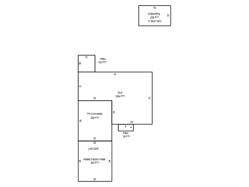
| Photo & Sketch (if available) | Comp Sales (ordered by relevancy) |
|
||||||||||||||||||
|
||||||||||||||||||||
| Value History (*The County Treasurer 405-713-1300 posts & collects actual tax amounts. Contact information HERE) | |||||||||||||
|---|---|---|---|---|---|---|---|---|---|---|---|---|---|
| Year | Market Value | Taxable Mkt Value | Gross Assessed | Exemption | Net Assessed | Millage | Est. Tax | Tax Savings | |||||
|
2025 |
176,500 |
176,500 |
19,415 |
0 |
19,415 |
117.97 |
$2,290 |
$0 |
|||||
|
2024 |
164,500 |
121,550 |
13,369 |
0 |
13,369 |
118.45 |
$1,584 |
$560 |
|||||
|
2023 |
146,000 |
115,762 |
12,733 |
0 |
12,733 |
116.31 |
$1,481 |
$387 |
|||||
|
2022 |
133,000 |
110,250 |
12,127 |
0 |
12,127 |
117.67 |
$1,427 |
$294 |
|||||
|
2021 |
112,500 |
105,000 |
11,550 |
0 |
11,550 |
120.74 |
$1,395 |
$100 |
|||||
| Property Account Status/Adjustments/Exemptions | ||
|---|---|---|
| Account # | Exemption Description | Amount |
|
R143582115 |
5% Capped Account |
0 |
| Property Deed Transaction History (Recorded in the County Clerk's Office) | |||||||
|---|---|---|---|---|---|---|---|
| Date | Type | Book | Page | Price | Grantor | Grantee | |
|
5/30/2024 |
|
Deeds |
$175,500 |
CARRANCO JUANA R & ARMANDO ZAMORA |
ROSALES JUAN FRANCISCO CONTRERAS |
||
|
4/27/2011 |
|
Deeds |
$93,000 |
HAGER JAMES M & PHYLLIS A |
CARRANCO JUANA R & ARMANDO ZAMORA |
||
|
11/11/1911 |
|
Historical |
$0 |
|
HAGER JAMES M & PHYLLIS A |
||
| Last Mailed Notice of Value (N.O.V.) Information/History | ||||||||
|---|---|---|---|---|---|---|---|---|
| Year | Date | Market Value | Taxable Market Value | Gross Assessed | Exemption | Net Assessed | ||
|
2025 |
01/31/2025 |
176,500 |
176,500 |
19,415 |
0 |
19,415 |
||
|
2024 |
01/22/2024 |
164,500 |
121,550 |
13,369 |
0 |
13,369 |
||
|
2023 |
01/23/2023 |
146,000 |
115,762 |
12,733 |
0 |
12,733 |
||
|
2022 |
02/22/2022 |
133,000 |
110,250 |
12,127 |
0 |
12,127 |
||
|
2021 |
02/24/2021 |
112,500 |
105,000 |
11,550 |
0 |
11,550 |
||
| Property Building Permit History | |||||||||||
|---|---|---|---|---|---|---|---|---|---|---|---|
| Issued | Permit # | Provided by | Bldg # | Description | Est Construction Cost | Status | |||||
| No Building Permit records returned. | |||||||||||
| Click button on building number to access detailed information: | ||||||
|---|---|---|---|---|---|---|
| Bldg # | Vacant/Improved Land | Bldg Description | Year Built | SqFt | # Stories | |
|
1 |
Improved |
Ranch 1 Story |
1962 |
1,084 |
1 Stories |
|