|
|
|
| Larry Stein Oklahoma County Assessor (405) 713-1200 - Public Access System |
|
|
|
|
|
|
| Real Property Display - Screen Produced 3/15/2026 10:48:13 AM | ||||
|---|---|---|---|---|
| Account: R143582360 | Type: Residential | Location: |
3045 S MADOLE BLVD |
|
| Building Name/Occupant: |
|
OKLAHOMA CITY |
||
| Owner Name 1: | MASHWANI ZAKIRULLAH |
Parcel PIN#: |
1898-14-358-2360 |
|
| Owner Name 2: | 1/4 section #: |
1898 |
||
| Owner Name 3: | Parent Acct: |
|
||
| Billing Address: | 3045 S MADOLE BLVD | Tax District: |
|
|
| City, State, Zip | OKLAHOMA CITY, OK 73159 | School System: |
Western Heights #41 |
|
|
Country: (If noted) |
Land Size: |
0.1653 Acres |
||
|
Land Value: 17,424 |
|
|||
|
Sect 25-T11N-R4W Qtr SE |
MADOLE HILL CREST GREEN #1
Block
011
Lot
026
|
|||
| Full Legal Description: MADOLE HILL CREST GREEN #1 011 026 |
| Photo & Sketch (if available) | Comp Sales (ordered by relevancy) |
|
||||||||||||||||||
|
||||||||||||||||||||
| Value History (*The County Treasurer 405-713-1300 posts & collects actual tax amounts. Contact information HERE) | |||||||||||||
|---|---|---|---|---|---|---|---|---|---|---|---|---|---|
| Year | Market Value | Taxable Mkt Value | Gross Assessed | Exemption | Net Assessed | Millage | Est. Tax | Tax Savings | |||||
|
2025 |
214,500 |
110,609 |
12,166 |
1,000 |
11,166 |
117.97 |
$1,317 |
$1,466 |
|||||
|
2024 |
195,500 |
110,609 |
12,166 |
1,000 |
11,166 |
118.45 |
$1,323 |
$1,225 |
|||||
|
2023 |
177,000 |
110,609 |
12,166 |
1,000 |
11,166 |
116.31 |
$1,299 |
$966 |
|||||
|
2022 |
159,500 |
110,609 |
12,166 |
1,000 |
11,166 |
117.67 |
$1,314 |
$751 |
|||||
|
2021 |
135,000 |
110,609 |
12,166 |
1,000 |
11,166 |
120.74 |
$1,348 |
$445 |
|||||
| Property Account Status/Adjustments/Exemptions | ||||||
|---|---|---|---|---|---|---|
| Account # | Exemption Description | Amount | ||||
| No adjustment/exemption records returned. | ||||||
| Property Deed Transaction History (Recorded in the County Clerk's Office) | |||||||
|---|---|---|---|---|---|---|---|
| Date | Type | Book | Page | Price | Grantor | Grantee | |
|
4/29/2025 |
|
Deeds |
$0 |
STEVENSON LARRY K & L ANN |
STEVENSON L ANN |
||
|
4/29/2025 |
|
Deeds |
$152,000 |
STEVENSON L ANN |
MASHWANI ZAKIRULLAH |
||
|
11/11/1911 |
|
Historical |
$0 |
|
STEVENSON LARRY K & L ANN |
||
| Last Mailed Notice of Value (N.O.V.) Information/History | ||||||||
|---|---|---|---|---|---|---|---|---|
| Year | Date | Market Value | Taxable Market Value | Gross Assessed | Exemption | Net Assessed | ||
|
2026 |
02/06/2026 |
225,000 |
225,000 |
24,750 |
0 |
24,750 |
||
|
2025 |
01/31/2025 |
214,500 |
110,609 |
12,166 |
1,000 |
11,166 |
||
|
2024 |
01/22/2024 |
195,500 |
110,609 |
12,166 |
1,000 |
11,166 |
||
|
2023 |
01/23/2023 |
177,000 |
110,609 |
12,166 |
1,000 |
11,166 |
||
|
2022 |
02/22/2022 |
159,500 |
110,609 |
12,166 |
1,000 |
11,166 |
||
| Property Building Permit History | |||||||||||
|---|---|---|---|---|---|---|---|---|---|---|---|
| Issued | Permit # | Provided by | Bldg # | Description | Est Construction Cost | Status | |||||
| No Building Permit records returned. | |||||||||||
| Click button on building number to access detailed information: | ||||||
|---|---|---|---|---|---|---|
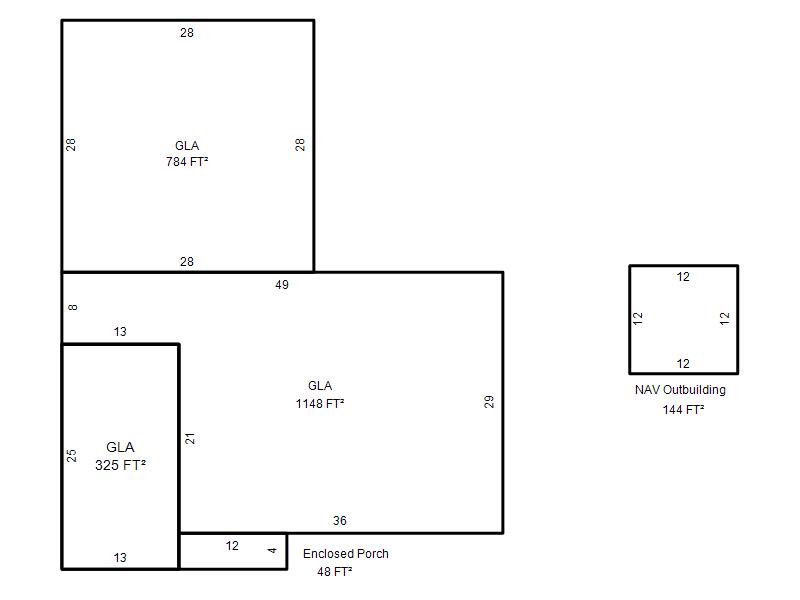
| Bldg # | Vacant/Improved Land | Bldg Description | Year Built | SqFt | # Stories | |
|
1 |
Improved |
Ranch 1 Story |
1961 |
2,257 |
1 Stories |
|