|
|
|
| Larry Stein Oklahoma County Assessor (405) 713-1200 - Public Access System |
|
|
|
|
|
|
| Real Property Display - Screen Produced 2/27/2026 3:28:37 AM | ||||
|---|---|---|---|---|
| Account: R199461000 | Type: Residential | Location: |
3470 N INDIAN MERIDIAN RD |
|
| Building Name/Occupant: |
|
CHOCTAW |
||
| Owner Name 1: | KRAMER SAMANTHA R |
Parcel PIN#: |
2076-19-946-1000 |
|
| Owner Name 2: | ELROD KYLE W | 1/4 section #: |
2076 |
|
| Owner Name 3: | Parent Acct: |
|
||
| Billing Address: | 3470 N INDIAN MERIDIAN RD | Tax District: |
|
|
| City, State, Zip | CHOCTAW, OK 73020 | School System: |
Choctaw #4 |
|
|
Country: (If noted) |
Land Size: |
6.6900 Acres |
||
|
Land Value: 120,180 |
|
|||
|
Sect 19-T12N-R1E Qtr NW |
JAGGERS ACRES 2ND
Block
001
Lot
000
|
|||
| Full Legal Description: JAGGERS ACRES 2ND 001 000 LOTS 1 THRU 5 |
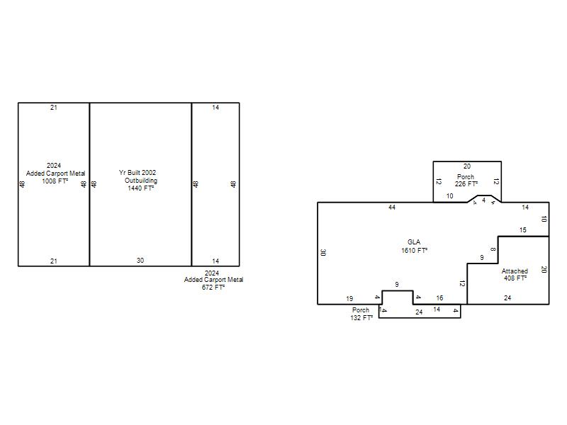
| Photo & Sketch (if available) | Comp Sales (ordered by relevancy) |
|
||||||||||||||||||
|
||||||||||||||||||||
| Value History (*The County Treasurer 405-713-1300 posts & collects actual tax amounts. Contact information HERE) | |||||||||||||
|---|---|---|---|---|---|---|---|---|---|---|---|---|---|
| Year | Market Value | Taxable Mkt Value | Gross Assessed | Exemption | Net Assessed | Millage | Est. Tax | Tax Savings | |||||
|
2025 |
365,000 |
289,625 |
31,857 |
1,000 |
30,857 |
117.21 |
$3,617 |
$1,089 |
|||||
|
2024 |
320,500 |
281,190 |
30,930 |
1,000 |
29,930 |
116.35 |
$3,482 |
$619 |
|||||
|
2023 |
273,000 |
273,000 |
30,030 |
1,000 |
29,030 |
118.06 |
$3,427 |
$118 |
|||||
|
2022 |
273,000 |
273,000 |
30,030 |
0 |
30,030 |
116.14 |
$3,488 |
$0 |
|||||
|
2021 |
252,000 |
212,359 |
23,359 |
1,000 |
22,359 |
116.17 |
$2,598 |
$623 |
|||||
| Property Account Status/Adjustments/Exemptions | ||
|---|---|---|
| Account # | Exemption Description | Amount |
|
R199461000 |
3% Cap Homestead |
0 |
|
R199461000 |
Homestead |
1,000 |
| Property Deed Transaction History (Recorded in the County Clerk's Office) | ||||||||||
|---|---|---|---|---|---|---|---|---|---|---|
| Date | Type | Book | Page | Price | Grantor | Grantee | ||||
|
12/10/2021 |
|
Deeds |
$270,000 |
SOUTHERLAND STACI |
KRAMER SAMANTHA R |
|||||
|
5/20/2014 |
|
Deeds |
$188,000 |
SOUTHERLAND TERRY D |
SOUTHERLAND STACI |
|||||
|
4/11/2014 |
|
Hmstd Off & |
$0 |
SOUTHERLAND ELLEN KATHLEEN |
SOUTHERLAND TERRY D |
|||||
|
11/19/1999 |
|
Deeds |
$0 |
SCHONES MAR Y R& RONNIE R |
SOUTHERLAND TERRY D & E KATHLEEN |
|||||
|
4/16/1999 |
|
Deeds |
$0 |
SCHONES MARY R & JAGGERS BILLY J |
SCHONES MARY R & RONNIE R |
|||||
| Last Mailed Notice of Value (N.O.V.) Information/History | ||||||||
|---|---|---|---|---|---|---|---|---|
| Year | Date | Market Value | Taxable Market Value | Gross Assessed | Exemption | Net Assessed | ||
|
2025 |
01/31/2025 |
365,000 |
289,625 |
31,857 |
1,000 |
30,857 |
||
|
2024 |
01/22/2024 |
320,500 |
281,190 |
30,930 |
1,000 |
29,930 |
||
|
2022 |
02/22/2022 |
273,000 |
273,000 |
30,030 |
0 |
30,030 |
||
|
2021 |
02/24/2021 |
252,000 |
212,359 |
23,359 |
1,000 |
22,359 |
||
|
2020 |
02/21/2020 |
216,000 |
206,174 |
22,679 |
1,000 |
21,679 |
||
| Property Building Permit History | ||||||
|---|---|---|---|---|---|---|
| Issued | Permit # | Provided by | Bldg # | Description | Est Construction Cost | Status |
|
1/29/2002 |
10264412 |
CHOCTAW |
1 |
Main Dwellin |
100,000 |
Inactive |
|
1/29/2002 |
10264413 |
CHOCTAW |
1 |
Storage Buil |
5,000 |
Inactive |
| Click button on building number to access detailed information: | ||||||
|---|---|---|---|---|---|---|
| Bldg # | Vacant/Improved Land | Bldg Description | Year Built | SqFt | # Stories | |
|
1 |
Improved |
Ranch 1 Story |
2002 |
1,610 |
1 Stories |
|