|
|
|
| Larry Stein Oklahoma County Assessor (405) 713-1200 - Public Access System |
|
|
|
|
|
|
| Real Property Display - Screen Produced 3/18/2026 4:46:00 PM | ||||
|---|---|---|---|---|
| Account: R151151225 | Type: Residential | Location: |
10020 OAK PARK DR |
|
| Building Name/Occupant: |
|
MIDWEST CITY |
||
| Owner Name 1: | SNOW MARGARET MARIE TRS |
Parcel PIN#: |
2323-15-115-1225 |
|
| Owner Name 2: | SNOW MARGARET LIV TRUST | 1/4 section #: |
2323 |
|
| Owner Name 3: | Parent Acct: |
|
||
| Billing Address: | 10020 OAK PARK DR | Tax District: |
|
|
| City, State, Zip | MIDWEST CITY, OK 73130 | School System: |
Mid-Del #52 |
|
|
Country: (If noted) |
Land Size: |
0.7649 Acres |
||
|
Land Value: 33,320 |
|
|||
|
Sect 31-T12N-R1W Qtr SW |
POINTONS OAKDALE PRK
Block
002
Lot
008
|
|||
| Full Legal Description: POINTONS OAKDALE PRK 002 008 |
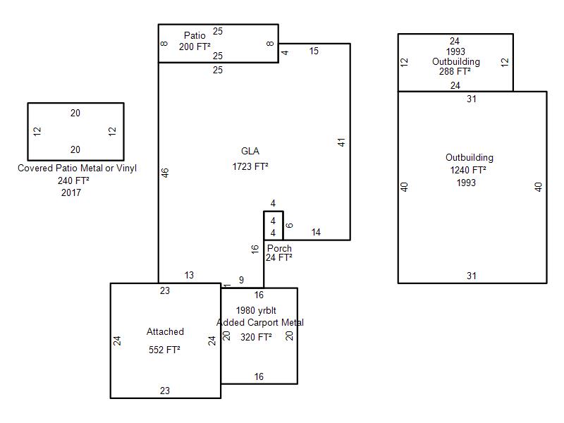
| Photo & Sketch (if available) | Comp Sales (ordered by relevancy) |
|
||||||||||||||||||
|
||||||||||||||||||||
| Value History (*The County Treasurer 405-713-1300 posts & collects actual tax amounts. Contact information HERE) | |||||||||||||
|---|---|---|---|---|---|---|---|---|---|---|---|---|---|
| Year | Market Value | Taxable Mkt Value | Gross Assessed | Exemption | Net Assessed | Millage | Est. Tax | Tax Savings | |||||
|
2025 |
260,500 |
183,865 |
20,225 |
1,000 |
19,225 |
119.58 |
$2,299 |
$1,128 |
|||||
|
2024 |
252,000 |
183,865 |
20,225 |
1,000 |
19,225 |
122.51 |
$2,355 |
$1,041 |
|||||
|
2023 |
238,500 |
183,865 |
20,225 |
1,000 |
19,225 |
117.71 |
$2,263 |
$825 |
|||||
|
2022 |
218,000 |
183,865 |
20,225 |
1,000 |
19,225 |
116.64 |
$2,242 |
$555 |
|||||
|
2021 |
190,500 |
183,865 |
20,225 |
1,000 |
19,225 |
119.45 |
$2,296 |
$207 |
|||||
| Property Account Status/Adjustments/Exemptions | ||
|---|---|---|
| Account # | Exemption Description | Amount |
|
R151151225 |
Freeze Senior Valuation |
0 |
|
R151151225 |
3% Cap Homestead |
0 |
|
R151151225 |
Homestead |
1,000 |
| Property Deed Transaction History (Recorded in the County Clerk's Office) | |||||||
|---|---|---|---|---|---|---|---|
| Date | Type | Book | Page | Price | Grantor | Grantee | |
|
9/12/2023 |
|
Deeds |
$0 |
SNOW LARRY G & MARGARET M |
SNOW MARGARET M |
||
|
9/12/2023 |
|
Deeds |
$0 |
SNOW MARGARET M |
SNOW MARGARET MARIE TRS |
||
|
6/25/1990 |
|
Historical |
$66,500 |
TAYLOR MARY L |
SNOW LARRY G & MARGARET M |
||
|
1/1/1979 |
|
Historical |
$0 |
|
TAYLOR MARY L |
||
| Last Mailed Notice of Value (N.O.V.) Information/History | ||||||||
|---|---|---|---|---|---|---|---|---|
| Year | Date | Market Value | Taxable Market Value | Gross Assessed | Exemption | Net Assessed | ||
|
2025 |
01/31/2025 |
260,500 |
183,865 |
20,225 |
1,000 |
19,225 |
||
|
2024 |
01/22/2024 |
252,000 |
183,865 |
20,225 |
1,000 |
19,225 |
||
|
2023 |
01/23/2023 |
238,500 |
183,865 |
20,225 |
1,000 |
19,225 |
||
|
2022 |
02/22/2022 |
218,000 |
183,865 |
20,225 |
1,000 |
19,225 |
||
|
2021 |
02/24/2021 |
190,500 |
183,865 |
20,225 |
1,000 |
19,225 |
||
| Property Building Permit History | ||||||
|---|---|---|---|---|---|---|
| Issued | Permit # | Provided by | Bldg # | Description | Est Construction Cost | Status |
|
8/17/2020 |
20-00001193 |
|
1 |
Remodeled |
16,747 |
Inactive |
|
6/26/2017 |
10495353 |
MIDWEST CITY |
1 |
Add On |
1,000 |
Inactive |
|
4/21/1993 |
10247770 |
MIDWEST CITY |
1 |
Garage |
7,000 |
Inactive |
| Click button on building number to access detailed information: | ||||||
|---|---|---|---|---|---|---|
| Bldg # | Vacant/Improved Land | Bldg Description | Year Built | SqFt | # Stories | |
|
1 |
Improved |
Ranch 1 Story |
1959 |
1,723 |
1 Stories |
|