|
|
|
| Larry Stein Oklahoma County Assessor (405) 713-1200 - Public Access System |
|
|
|
|
|
|
| Real Property Display - Screen Produced 3/18/2026 5:02:50 PM | ||||
|---|---|---|---|---|
| Account: R194770310 | Type: Residential | Location: |
11600 NE 10TH ST |
|
| Building Name/Occupant: |
|
CHOCTAW |
||
| Owner Name 1: | GHOREYAN AKBAR |
Parcel PIN#: |
2325-19-477-0310 |
|
| Owner Name 2: | SIMA NEMTI NAJAF ABIDI | 1/4 section #: |
2325 |
|
| Owner Name 3: | Parent Acct: |
|
||
| Billing Address: | 9200 NE 23RD ST | Tax District: |
|
|
| City, State, Zip | OKLAHOMA CITY, OK 73141-3014 | School System: |
Choctaw #4 |
|
|
Country: (If noted) |
Land Size: |
9.9500 Acres |
||
|
Land Value: 32,420 |
|
|||
|
Sect 32-T12N-R1W Qtr NE |
UNPLTD PT SEC 32 12N 1W
Block
000
Lot
000
|
|||
| Full Legal Description: UNPLTD PT SEC 32 12N 1W 000 000 PT NE4 SEC 32 12N 1W BEG NW/C OF NE4 TH E328FT S1321.2FT W328FT N1321.2FT TO BEG |
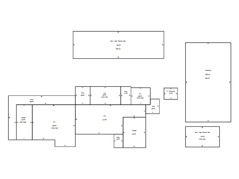
| Photo & Sketch (if available) | Comp Sales (ordered by relevancy) |
|
||||||||||||||||||
|
||||||||||||||||||||
| Value History (*The County Treasurer 405-713-1300 posts & collects actual tax amounts. Contact information HERE) | |||||||||||||
|---|---|---|---|---|---|---|---|---|---|---|---|---|---|
| Year | Market Value | Taxable Mkt Value | Gross Assessed | Exemption | Net Assessed | Millage | Est. Tax | Tax Savings | |||||
|
2025 |
631,500 |
483,602 |
53,196 |
0 |
53,196 |
117.21 |
$6,235 |
$1,907 |
|||||
|
2024 |
652,000 |
460,574 |
50,662 |
0 |
50,662 |
116.35 |
$5,895 |
$2,450 |
|||||
|
2023 |
608,500 |
438,642 |
48,250 |
0 |
48,250 |
118.06 |
$5,696 |
$2,206 |
|||||
|
2022 |
538,500 |
417,755 |
45,952 |
0 |
45,952 |
116.14 |
$5,337 |
$1,543 |
|||||
|
2021 |
467,500 |
397,862 |
43,764 |
0 |
43,764 |
116.17 |
$5,084 |
$890 |
|||||
| Property Account Status/Adjustments/Exemptions | ||
|---|---|---|
| Account # | Exemption Description | Amount |
|
R194770310 |
5% Capped Account |
0 |
| Property Deed Transaction History (Recorded in the County Clerk's Office) | |||||||
|---|---|---|---|---|---|---|---|
| Date | Type | Book | Page | Price | Grantor | Grantee | |
|
6/26/2009 |
|
Deeds |
$300,000 |
MACKEY JEANNE L TRS MACKEY JEANNE L REV FAMILY TRUST |
GHOREYAN AKBAR |
||
|
7/13/2005 |
|
Deeds |
$0 |
MACKEY JEANNE L |
MACKEY JEANNE L TRS MACKEY JEANNE L REV FAMILY TRUST |
||
|
2/12/2004 |
|
Deeds |
$0 |
MACKEY SCOTT JAMES |
MACKEY JEANNE L |
||
|
1/28/2003 |
|
Deeds |
$200,000 |
HAGGY NEAL C & B J |
MACKEY JEANNE L & SCOTT JAMES |
||
|
11/11/1911 |
|
Historical |
$0 |
|
HAGGY NEAL C & B J |
||
| Last Mailed Notice of Value (N.O.V.) Information/History | ||||||||
|---|---|---|---|---|---|---|---|---|
| Year | Date | Market Value | Taxable Market Value | Gross Assessed | Exemption | Net Assessed | ||
|
2026 |
02/06/2026 |
597,000 |
507,782 |
55,855 |
0 |
55,855 |
||
|
2025 |
01/31/2025 |
631,500 |
483,602 |
53,196 |
0 |
53,196 |
||
|
2024 |
01/22/2024 |
652,000 |
460,574 |
50,662 |
0 |
50,662 |
||
|
2023 |
01/23/2023 |
608,500 |
438,642 |
48,250 |
0 |
48,250 |
||
|
2022 |
02/22/2022 |
538,500 |
417,755 |
45,952 |
0 |
45,952 |
||
| Property Building Permit History | ||||||
|---|---|---|---|---|---|---|
| Issued | Permit # | Provided by | Bldg # | Description | Est Construction Cost | Status |
|
10/26/2005 |
10313938 |
CHOCTAW |
1 |
Storage Buil |
6,000 |
Inactive |
|
7/15/2003 |
10280499 |
CHOCTAW |
1 |
Add On |
48,000 |
Inactive |
| Click button on building number to access detailed information: | ||||||
|---|---|---|---|---|---|---|
| Bldg # | Vacant/Improved Land | Bldg Description | Year Built | SqFt | # Stories | |
|
1 |
Improved |
Ranch 1 Story |
1962 |
3,285 |
1 Stories |
|