|
|
|
| Larry Stein Oklahoma County Assessor (405) 713-1200 - Public Access System |
|
|
|
|
|
|
| Real Property Display - Screen Produced 3/18/2026 6:19:34 PM | ||||
|---|---|---|---|---|
| Account: R194892401 | Type: Residential | Location: |
12350 JOLLIE DR |
|
| Building Name/Occupant: |
|
CHOCTAW |
||
| Owner Name 1: | FIELD BILLIE J |
Parcel PIN#: |
2332-19-489-2401 |
|
| Owner Name 2: | FIELD CARY C | 1/4 section #: |
2332 |
|
| Owner Name 3: | Parent Acct: |
|
||
| Billing Address: | PO BOX 1193 | Tax District: |
|
|
| City, State, Zip | NICOMA PARK, OK 73066-1193 | School System: |
Choctaw #4 |
|
|
Country: (If noted) |
Land Size: |
1.9390 Acres |
||
|
Land Value: 37,697 |
|
|||
|
Sect 33-T12N-R1W Qtr NW |
UNPLTD PT SEC 33 12N 1W
Block
000
Lot
000
|
|||
| Full Legal Description: UNPLTD PT SEC 33 12N 1W 000 000 PT NW4 SEC 33 12N 1W BEING W320FT OF E970FT OF S264FT OF NE4 OF NW4 |
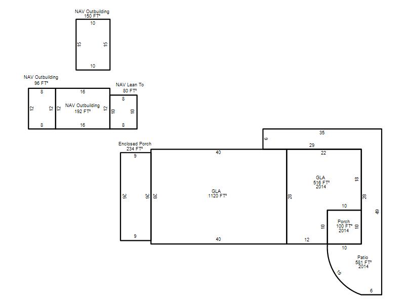
| Photo & Sketch (if available) | Comp Sales (ordered by relevancy) |
|
||||||||||||||||||
|
||||||||||||||||||||
| Value History (*The County Treasurer 405-713-1300 posts & collects actual tax amounts. Contact information HERE) | |||||||||||||
|---|---|---|---|---|---|---|---|---|---|---|---|---|---|
| Year | Market Value | Taxable Mkt Value | Gross Assessed | Exemption | Net Assessed | Millage | Est. Tax | Tax Savings | |||||
|
2025 |
236,500 |
160,732 |
17,679 |
1,000 |
16,679 |
117.21 |
$1,955 |
$1,094 |
|||||
|
2024 |
219,500 |
156,051 |
17,164 |
1,000 |
16,164 |
116.35 |
$1,881 |
$928 |
|||||
|
2023 |
205,000 |
151,506 |
16,665 |
1,000 |
15,665 |
118.06 |
$1,849 |
$813 |
|||||
|
2022 |
188,000 |
147,094 |
16,180 |
1,000 |
15,180 |
116.14 |
$1,763 |
$639 |
|||||
|
2021 |
162,000 |
142,810 |
15,708 |
1,000 |
14,708 |
116.17 |
$1,709 |
$361 |
|||||
| Property Account Status/Adjustments/Exemptions | ||
|---|---|---|
| Account # | Exemption Description | Amount |
|
R194892401 |
3% Cap Homestead |
0 |
|
R194892401 |
Homestead |
1,000 |
| Property Deed Transaction History (Recorded in the County Clerk's Office) | |||||||
|---|---|---|---|---|---|---|---|
| Date | Type | Book | Page | Price | Grantor | Grantee | |
|
2/8/2002 |
|
Other |
$0 |
SECRETARY OF HOUSING |
FIELD BILLIE J |
||
|
2/8/2001 |
|
Hmstd Off & |
$0 |
COTNEY MARVIN A & GLORIA A |
SECRETARY OF HOUSING |
||
|
4/27/1999 |
|
Historical |
$61,500 |
POUND PAUL A & LAVERN M |
COTNEY MARVIN A & GLORIA A |
||
|
8/1/1977 |
|
Historical |
$0 |
|
POUND PAUL A & LAVERN M |
||
| Last Mailed Notice of Value (N.O.V.) Information/History | ||||||||
|---|---|---|---|---|---|---|---|---|
| Year | Date | Market Value | Taxable Market Value | Gross Assessed | Exemption | Net Assessed | ||
|
2026 |
02/06/2026 |
229,000 |
165,553 |
18,210 |
1,000 |
17,210 |
||
|
2025 |
01/31/2025 |
236,500 |
160,732 |
17,679 |
1,000 |
16,679 |
||
|
2024 |
01/22/2024 |
219,500 |
156,051 |
17,164 |
1,000 |
16,164 |
||
|
2023 |
01/23/2023 |
205,000 |
151,506 |
16,665 |
1,000 |
15,665 |
||
|
2022 |
02/22/2022 |
188,000 |
147,094 |
16,179 |
1,000 |
15,179 |
||
| Property Building Permit History | ||||||
|---|---|---|---|---|---|---|
| Issued | Permit # | Provided by | Bldg # | Description | Est Construction Cost | Status |
|
12/16/2016 |
10489010 |
CHOCTAW |
1 |
Storage Buil |
1,000 |
Inactive |
|
1/13/2014 |
10458224 |
CHOCTAW |
1 |
Add On |
5,000 |
Inactive |
| Click button on building number to access detailed information: | ||||||
|---|---|---|---|---|---|---|
| Bldg # | Vacant/Improved Land | Bldg Description | Year Built | SqFt | # Stories | |
|
1 |
Improved |
Ranch 1 Story |
1938 |
1,636 |
1 Stories |
|