|
|
|
| Larry Stein Oklahoma County Assessor (405) 713-1200 - Public Access System |
|
|
|
|
|
|
| Real Property Display - Screen Produced 3/18/2026 6:20:38 PM | ||||
|---|---|---|---|---|
| Account: R194892805 | Type: Residential | Location: |
898 N ANDERSON RD |
|
| Building Name/Occupant: |
|
CHOCTAW |
||
| Owner Name 1: | WILSON HOWARD PHILIP |
Parcel PIN#: |
2332-19-489-2805 |
|
| Owner Name 2: | WILSON CARL L | 1/4 section #: |
2332 |
|
| Owner Name 3: | Parent Acct: |
|
||
| Billing Address: | 898 N ANDERSON RD | Tax District: |
|
|
| City, State, Zip | CHOCTAW, OK 73020-7716 | School System: |
Choctaw #4 |
|
|
Country: (If noted) |
Land Size: |
1.1590 Acres |
||
|
Land Value: 33,966 |
|
|||
|
Sect 33-T12N-R1W Qtr NW |
UNPLTD PT SEC 33 12N 1W
Block
000
Lot
000
|
|||
| Full Legal Description: UNPLTD PT SEC 33 12N 1W 000 000 PT NW4 SEC 33 12N 1W BEG 951FT S OF NW/C NW4 TH E481.10FT S105FT W481.10FT N105FT TO BEG |
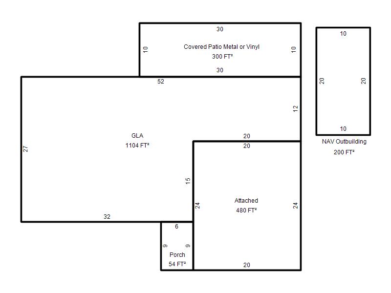
| Photo & Sketch (if available) | Comp Sales (ordered by relevancy) |
|
||||||||||||||||||
|
||||||||||||||||||||
| Value History (*The County Treasurer 405-713-1300 posts & collects actual tax amounts. Contact information HERE) | |||||||||||||
|---|---|---|---|---|---|---|---|---|---|---|---|---|---|
| Year | Market Value | Taxable Mkt Value | Gross Assessed | Exemption | Net Assessed | Millage | Est. Tax | Tax Savings | |||||
|
2025 |
168,500 |
58,875 |
6,475 |
1,000 |
5,475 |
117.21 |
$642 |
$1,531 |
|||||
|
2024 |
159,500 |
57,161 |
6,287 |
1,000 |
5,287 |
116.35 |
$615 |
$1,426 |
|||||
|
2023 |
153,000 |
55,497 |
6,103 |
1,000 |
5,103 |
118.06 |
$603 |
$1,384 |
|||||
|
2022 |
139,000 |
53,881 |
5,926 |
1,000 |
4,926 |
116.14 |
$572 |
$1,204 |
|||||
|
2021 |
120,000 |
52,312 |
5,753 |
1,000 |
4,753 |
116.17 |
$552 |
$981 |
|||||
| Property Account Status/Adjustments/Exemptions | ||
|---|---|---|
| Account # | Exemption Description | Amount |
|
R194892805 |
Homestead |
1,000 |
|
R194892805 |
3% Cap Homestead |
0 |
| Property Deed Transaction History (Recorded in the County Clerk's Office) | |||||||
|---|---|---|---|---|---|---|---|
| Date | Type | Book | Page | Price | Grantor | Grantee | |
|
10/5/2009 |
|
Deeds |
$0 |
AFFIDAVIT OF HEIRSHIP |
WILSON HOWARD PHILIP |
||
|
11/25/2008 |
|
Hmstd Off & |
$0 |
FINAL ACCOUNT WILSON PHYLLIS A |
WILSON HOWARD PHILIP WILSON CARL L |
||
|
11/11/2008 |
|
Hmstd Off & |
$0 |
AFFIDAVIT OF PERSONAL REPRESENTATIVE OF SURVIVING JOINT TENA |
WILSON HOWARD P PER REP WILSON PHYLLIS A |
||
|
11/11/1911 |
|
Historical |
$0 |
|
WILSON HOWARD C & PHYLLIS A |
||
| Last Mailed Notice of Value (N.O.V.) Information/History | ||||||||
|---|---|---|---|---|---|---|---|---|
| Year | Date | Market Value | Taxable Market Value | Gross Assessed | Exemption | Net Assessed | ||
|
2026 |
02/06/2026 |
167,500 |
60,641 |
6,670 |
1,000 |
5,670 |
||
|
2025 |
01/31/2025 |
168,500 |
58,875 |
6,475 |
1,000 |
5,475 |
||
|
2024 |
01/22/2024 |
159,500 |
57,161 |
6,287 |
1,000 |
5,287 |
||
|
2023 |
01/23/2023 |
153,000 |
55,497 |
6,103 |
1,000 |
5,103 |
||
|
2022 |
02/22/2022 |
139,000 |
53,881 |
5,925 |
1,000 |
4,925 |
||
| Property Building Permit History | |||||||||||
|---|---|---|---|---|---|---|---|---|---|---|---|
| Issued | Permit # | Provided by | Bldg # | Description | Est Construction Cost | Status | |||||
| No Building Permit records returned. | |||||||||||
| Click button on building number to access detailed information: | ||||||
|---|---|---|---|---|---|---|
| Bldg # | Vacant/Improved Land | Bldg Description | Year Built | SqFt | # Stories | |
|
1 |
Improved |
Ranch 1 Story |
1967 |
1,104 |
1 Stories |
|