|
|
|
| Larry Stein Oklahoma County Assessor (405) 713-1200 - Public Access System |
|
|
|
|
|
|
| Real Property Display - Screen Produced 3/18/2026 6:20:37 PM | ||||
|---|---|---|---|---|
| Account: R194893620 | Type: Residential | Location: |
712 N ANDERSON RD |
|
| Building Name/Occupant: |
|
CHOCTAW |
||
| Owner Name 1: | PLUNKETT DOUGLAS L |
Parcel PIN#: |
2332-19-489-3620 |
|
| Owner Name 2: | PLUNKETT RONDALE | 1/4 section #: |
2332 |
|
| Owner Name 3: | Parent Acct: |
|
||
| Billing Address: | 4920 NW 163RD ST | Tax District: |
|
|
| City, State, Zip | EDMOND, OK 73013 | School System: |
Choctaw #4 |
|
|
Country: (If noted) |
Land Size: |
1.0720 Acres |
||
|
Land Value: 33,433 |
|
|||
|
Sect 33-T12N-R1W Qtr NW |
UNPLTD PT SEC 33 12N 1W
Block
000
Lot
000
|
|||
| Full Legal Description: UNPLTD PT NW4 SEC 33 12N 1W BEG 1188FT S OF NW/C OF NW4 TH E354.03FT S132FT W354.03FT N132FT TO BEG |
| Photo & Sketch (if available) | Comp Sales (ordered by relevancy) |
|
||||||||||||||||||
|
||||||||||||||||||||
| Value History (*The County Treasurer 405-713-1300 posts & collects actual tax amounts. Contact information HERE) | |||||||||||||
|---|---|---|---|---|---|---|---|---|---|---|---|---|---|
| Year | Market Value | Taxable Mkt Value | Gross Assessed | Exemption | Net Assessed | Millage | Est. Tax | Tax Savings | |||||
|
2025 |
278,000 |
185,118 |
20,362 |
0 |
20,362 |
117.21 |
$2,387 |
$1,198 |
|||||
|
2024 |
274,500 |
176,303 |
19,392 |
0 |
19,392 |
116.35 |
$2,256 |
$1,257 |
|||||
|
2023 |
264,500 |
167,908 |
18,469 |
0 |
18,469 |
118.06 |
$2,181 |
$1,254 |
|||||
|
2022 |
241,500 |
159,913 |
17,589 |
0 |
17,589 |
116.14 |
$2,043 |
$1,042 |
|||||
|
2021 |
213,500 |
152,299 |
16,752 |
16,752 |
0 |
116.17 |
$0 |
$2,728 |
|||||
| Property Account Status/Adjustments/Exemptions | ||
|---|---|---|
| Account # | Exemption Description | Amount |
|
R194893620 |
5% Capped Account |
0 |
| Property Deed Transaction History (Recorded in the County Clerk's Office) | ||||||||||
|---|---|---|---|---|---|---|---|---|---|---|
| Date | Type | Book | Page | Price | Grantor | Grantee | ||||
|
11/29/2022 |
|
Deeds |
$0 |
PLUNKETT WINFRED WAYNE |
PLUNKETT DOUGLAS L |
|||||
|
7/10/2014 |
|
Deeds |
$0 |
PLUNKETT WINFRED WAYNE |
PLUNKETT WINFRED WAYNE |
|||||
|
5/6/2009 |
|
Deeds |
$0 |
PLUNKETT SUSAN |
PLUNKETT WINFRED WAYNE |
|||||
|
5/4/1995 |
|
Historical |
$87,000 |
DAVIS JOE R |
PLUNKETT SUSAN |
|||||
|
2/3/1989 |
|
Historical |
$0 |
DAVIS JOE R & BARBARA S |
DAVIS JOE R |
|||||
| Last Mailed Notice of Value (N.O.V.) Information/History | ||||||||
|---|---|---|---|---|---|---|---|---|
| Year | Date | Market Value | Taxable Market Value | Gross Assessed | Exemption | Net Assessed | ||
|
2026 |
02/06/2026 |
273,500 |
194,373 |
21,380 |
0 |
21,380 |
||
|
2025 |
01/31/2025 |
278,000 |
185,118 |
20,362 |
0 |
20,362 |
||
|
2024 |
01/22/2024 |
274,500 |
176,303 |
19,392 |
0 |
19,392 |
||
|
2023 |
01/23/2023 |
264,500 |
167,908 |
18,469 |
0 |
18,469 |
||
|
2022 |
02/22/2022 |
241,500 |
159,913 |
17,589 |
0 |
17,589 |
||
| Property Building Permit History | |||||||||||
|---|---|---|---|---|---|---|---|---|---|---|---|
| Issued | Permit # | Provided by | Bldg # | Description | Est Construction Cost | Status | |||||
| No Building Permit records returned. | |||||||||||
| Click button on building number to access detailed information: | ||||||
|---|---|---|---|---|---|---|
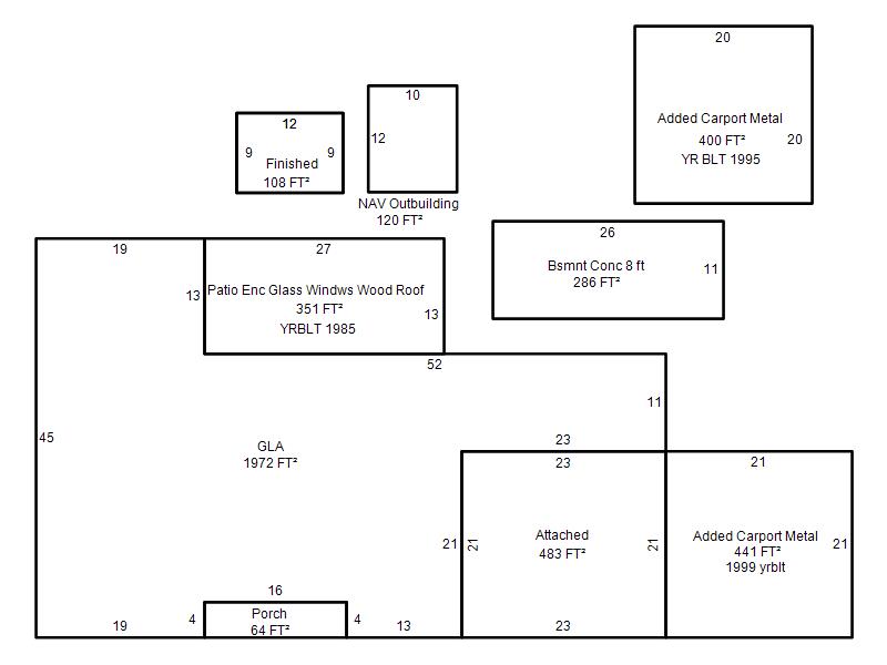
| Bldg # | Vacant/Improved Land | Bldg Description | Year Built | SqFt | # Stories | |
|
1 |
Improved |
Ranch 1 Story |
1974 |
1,972 |
1 Stories |
|