|
|
|
| Larry Stein Oklahoma County Assessor (405) 713-1200 - Public Access System |
|
|
|
|
|
|
| Real Property Display - Screen Produced 4/3/2026 5:55:57 AM | ||||
|---|---|---|---|---|
| Account: R155151275 | Type: Residential | Location: |
512 N LOTUS AVE |
|
| Building Name/Occupant: |
|
MIDWEST CITY |
||
| Owner Name 1: | MITCHELL SIMON & MARIAN |
Parcel PIN#: |
2541-15-515-1275 |
|
| Owner Name 2: | 1/4 section #: |
2541 |
||
| Owner Name 3: | Parent Acct: |
|
||
| Billing Address: | 512 N LOTUS AVE | Tax District: |
|
|
| City, State, Zip | MIDWEST CITY, OK 73130 | School System: |
Oklahoma City #89 |
|
|
Country: (If noted) |
Land Size: |
0.2106 Acres |
||
|
Land Value: 22,935 |
|
|||
|
Sect 36-T12N-R2W Qtr NE |
CULLENS 3RD 2ND SEC
Block
006
Lot
004
|
|||
| Full Legal Description: CULLENS 3RD 2ND SEC 006 004 |
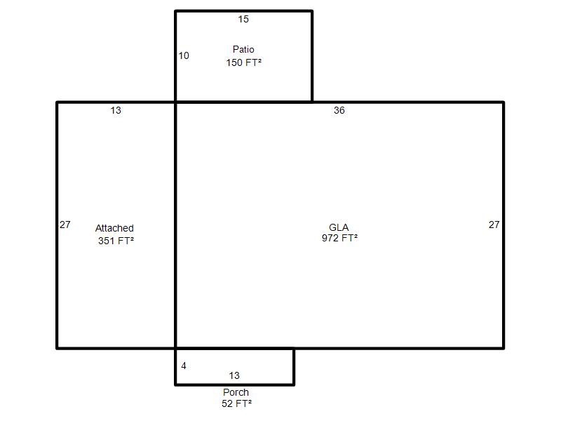
| Photo & Sketch (if available) | Comp Sales (ordered by relevancy) |
|
||||||||||||||||||
|
||||||||||||||||||||
| Value History (*The County Treasurer 405-713-1300 posts & collects actual tax amounts. Contact information HERE) | |||||||||||||
|---|---|---|---|---|---|---|---|---|---|---|---|---|---|
| Year | Market Value | Taxable Mkt Value | Gross Assessed | Exemption | Net Assessed | Millage | Est. Tax | Tax Savings | |||||
|
2026 |
107,000 |
49,500 |
5,445 |
1,000 |
4,445 |
114.34 |
$508 |
$838 |
|||||
|
2025 |
106,000 |
49,500 |
5,445 |
1,000 |
4,445 |
114.34 |
$508 |
$825 |
|||||
|
2024 |
100,500 |
49,500 |
5,445 |
1,000 |
4,445 |
116.11 |
$516 |
$767 |
|||||
|
2023 |
93,500 |
49,500 |
5,445 |
1,000 |
4,445 |
115.66 |
$514 |
$675 |
|||||
|
2022 |
79,500 |
49,500 |
5,445 |
1,000 |
4,445 |
110.02 |
$489 |
$473 |
|||||
| Property Account Status/Adjustments/Exemptions | ||
|---|---|---|
| Account # | Exemption Description | Amount |
|
R155151275 |
Freeze Senior Valuation |
0 |
|
R155151275 |
3% Cap Homestead |
0 |
|
R155151275 |
Homestead |
1,000 |
| Property Deed Transaction History (Recorded in the County Clerk's Office) | |||||||
|---|---|---|---|---|---|---|---|
| Date | Type | Book | Page | Price | Grantor | Grantee | |
|
8/1/1972 |
|
Historical |
$0 |
|
MITCHELL SIMON & MARIAN |
||
| Last Mailed Notice of Value (N.O.V.) Information/History | ||||||||
|---|---|---|---|---|---|---|---|---|
| Year | Date | Market Value | Taxable Market Value | Gross Assessed | Exemption | Net Assessed | ||
|
2026 |
02/23/2026 |
107,000 |
49,500 |
5,445 |
1,000 |
4,445 |
||
|
2025 |
02/14/2025 |
106,000 |
49,500 |
5,445 |
1,000 |
4,445 |
||
|
2024 |
02/13/2024 |
100,500 |
49,500 |
5,445 |
1,000 |
4,445 |
||
|
2023 |
02/14/2023 |
93,500 |
49,500 |
5,445 |
1,000 |
4,445 |
||
|
2022 |
03/15/2022 |
79,500 |
49,500 |
5,445 |
1,000 |
4,445 |
||
| Property Building Permit History | |||||||||||
|---|---|---|---|---|---|---|---|---|---|---|---|
| Issued | Permit # | Provided by | Bldg # | Description | Est Construction Cost | Status | |||||
| No Building Permit records returned. | |||||||||||
| Click button on building number to access detailed information: | ||||||
|---|---|---|---|---|---|---|
| Bldg # | Vacant/Improved Land | Bldg Description | Year Built | SqFt | # Stories | |
|
1 |
Improved |
Ranch 1 Story |
1962 |
972 |
1 Stories |
|