|
|
|
| Larry Stein Oklahoma County Assessor (405) 713-1200 - Public Access System |
|
|
|
|
|
|
| Real Property Display - Screen Produced 4/1/2026 3:52:53 AM | ||||
|---|---|---|---|---|
| Account: R119881405 | Type: Residential | Location: |
2619 NW 65TH ST |
|
| Building Name/Occupant: |
|
OKLAHOMA CITY |
||
| Owner Name 1: | FOY MICHELLE |
Parcel PIN#: |
2623-11-988-1405 |
|
| Owner Name 2: | 1/4 section #: |
2623 |
||
| Owner Name 3: | Parent Acct: |
|
||
| Billing Address: | 2619 NW 65TH ST | Tax District: |
|
|
| City, State, Zip | OKLAHOMA CITY, OK 73116-4905 | School System: |
Oklahoma City #89 |
|
|
Country: (If noted) |
Land Size: |
0.2006 Acres |
||
|
Land Value: 54,600 |
|
|||
|
Sect 6-T12N-R3W Qtr SW |
TREADWELL GRAND VIEW CTRY CLB
Block
010
Lot
015
|
|||
| Full Legal Description: TREADWELL GRAND VIEW CTRY CLB 010 015 |
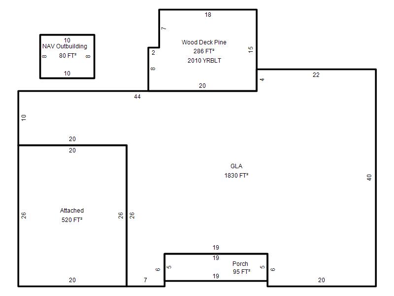
| Photo & Sketch (if available) | Comp Sales (ordered by relevancy) |
|
||||||||||||||||||
|
||||||||||||||||||||
| Value History (*The County Treasurer 405-713-1300 posts & collects actual tax amounts. Contact information HERE) | |||||||||||||
|---|---|---|---|---|---|---|---|---|---|---|---|---|---|
| Year | Market Value | Taxable Mkt Value | Gross Assessed | Exemption | Net Assessed | Millage | Est. Tax | Tax Savings | |||||
| No PropertyValuation records returned. | |||||||||||||
| Property Account Status/Adjustments/Exemptions | ||
|---|---|---|
| Account # | Exemption Description | Amount |
|
R119881405 |
3% Cap Homestead |
0 |
|
R119881405 |
Homestead |
1,000 |
| Property Deed Transaction History (Recorded in the County Clerk's Office) | ||||||||||
|---|---|---|---|---|---|---|---|---|---|---|
| Date | Type | Book | Page | Price | Grantor | Grantee | ||||
|
8/2/2024 |
|
Deeds |
$395,000 |
WILLIS TOMMY SCOTT |
FOY MICHELLE |
|||||
|
5/22/2015 |
|
Deeds |
$0 |
WILLIS TOMMY SCOTT |
WILLIS TOMMY SCOTT |
|||||
|
11/4/2005 |
|
Deeds |
$169,000 |
BROWN JAMIE A |
WILLIS TOMMY SCOTT |
|||||
|
7/23/2004 |
|
Deeds |
$150,000 |
MCCONVILLE THOMAS J MARLAR JANINE M |
BROWN JAMIE A |
|||||
|
3/3/1993 |
|
Historical |
$77,500 |
ERVIN MARY LEE |
MCCONVILLE THOMAS J |
|||||
| Last Mailed Notice of Value (N.O.V.) Information/History | ||||||||
|---|---|---|---|---|---|---|---|---|
| Year | Date | Market Value | Taxable Market Value | Gross Assessed | Exemption | Net Assessed | ||
| No Notice of Value N.O.V. records returned. | ||||||||
| Property Building Permit History | |||||||||||
|---|---|---|---|---|---|---|---|---|---|---|---|
| Issued | Permit # | Provided by | Bldg # | Description | Est Construction Cost | Status | |||||
| No Building Permit records returned. | |||||||||||
| Click button on building number to access detailed information: | ||||||
|---|---|---|---|---|---|---|
| Bldg # | Vacant/Improved Land | Bldg Description | Year Built | SqFt | # Stories | |
|
1 |
Improved |
Ranch 1 Story |
1955 |
1,830 |
1 Stories |
|