|
|
|
| Larry Stein Oklahoma County Assessor (405) 713-1200 - Public Access System |
|
|
|
|
|
|
| Real Property Display - Screen Produced 3/3/2026 1:21:15 PM | ||||
|---|---|---|---|---|
| Account: R116541625 | Type: Residential | Location: |
1505 NE 45TH ST |
|
| Building Name/Occupant: |
|
OKLAHOMA CITY |
||
| Owner Name 1: | WHEELER ALFREDA M |
Parcel PIN#: |
2653-11-654-1625 |
|
| Owner Name 2: | 1/4 section #: |
2653 |
||
| Owner Name 3: | Parent Acct: |
|
||
| Billing Address: | 2200 BELTON DR | Tax District: |
|
|
| City, State, Zip | CARROLLTON, TX 75007-3219 | School System: |
Oklahoma City #89 |
|
|
Country: (If noted) |
Land Size: |
0.1460 Acres |
||
|
Land Value: 15,582 |
|
|||
|
Sect 14-T12N-R3W Qtr NE |
PARK ESTATES 7TH ADD
Block
004
Lot
011
|
|||
| Full Legal Description: PARK ESTATES 7TH ADD 004 011 |
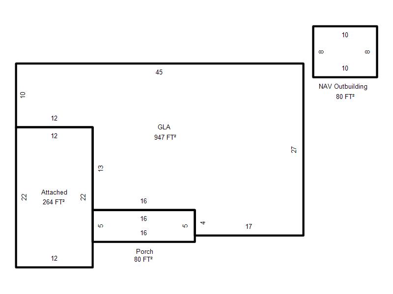
| Photo & Sketch (if available) | Comp Sales (ordered by relevancy) |
|
||||||||||||||||||
|
||||||||||||||||||||
| Value History (*The County Treasurer 405-713-1300 posts & collects actual tax amounts. Contact information HERE) | |||||||||||||
|---|---|---|---|---|---|---|---|---|---|---|---|---|---|
| Year | Market Value | Taxable Mkt Value | Gross Assessed | Exemption | Net Assessed | Millage | Est. Tax | Tax Savings | |||||
|
2025 |
75,000 |
32,681 |
3,594 |
0 |
3,594 |
122.90 |
$442 |
$572 |
|||||
|
2024 |
74,000 |
31,125 |
3,423 |
0 |
3,423 |
123.89 |
$424 |
$584 |
|||||
|
2023 |
70,500 |
29,643 |
3,260 |
0 |
3,260 |
122.82 |
$400 |
$552 |
|||||
|
2022 |
50,500 |
28,232 |
3,103 |
0 |
3,103 |
117.63 |
$365 |
$288 |
|||||
|
2021 |
48,000 |
26,888 |
2,956 |
0 |
2,956 |
117.70 |
$348 |
$273 |
|||||
| Property Account Status/Adjustments/Exemptions | ||
|---|---|---|
| Account # | Exemption Description | Amount |
|
R116541625 |
5% Capped Account |
0 |
| Property Deed Transaction History (Recorded in the County Clerk's Office) | |||||||
|---|---|---|---|---|---|---|---|
| Date | Type | Book | Page | Price | Grantor | Grantee | |
|
3/9/2004 |
|
Deeds |
$8,000 |
WHITMORE ULYSSES |
WHEELER ALFREDA M |
||
|
1/22/1996 |
|
Historical |
$0 |
MITCHELL RUBIE |
WHITMORE ULYSSES |
||
|
6/4/1991 |
|
Historical |
$0 |
MITCHELL RUBIE |
MITCHELL RUBIE |
||
|
11/11/1911 |
|
Historical |
$0 |
|
MITCHELL RUBIE |
||
| Last Mailed Notice of Value (N.O.V.) Information/History | ||||||||
|---|---|---|---|---|---|---|---|---|
| Year | Date | Market Value | Taxable Market Value | Gross Assessed | Exemption | Net Assessed | ||
|
2026 |
02/23/2026 |
83,500 |
34,315 |
3,773 |
0 |
3,773 |
||
|
2025 |
02/14/2025 |
75,000 |
32,681 |
3,594 |
0 |
3,594 |
||
|
2024 |
02/13/2024 |
74,000 |
31,125 |
3,423 |
0 |
3,423 |
||
|
2023 |
02/14/2023 |
70,500 |
29,643 |
3,260 |
0 |
3,260 |
||
|
2022 |
03/15/2022 |
50,500 |
28,232 |
3,103 |
0 |
3,103 |
||
| Property Building Permit History | |||||||||||
|---|---|---|---|---|---|---|---|---|---|---|---|
| Issued | Permit # | Provided by | Bldg # | Description | Est Construction Cost | Status | |||||
| No Building Permit records returned. | |||||||||||
| Click button on building number to access detailed information: | ||||||
|---|---|---|---|---|---|---|
| Bldg # | Vacant/Improved Land | Bldg Description | Year Built | SqFt | # Stories | |
|
1 |
Improved |
Ranch 1 Story |
1951 |
947 |
1 Stories |
|