|
|
|
| Larry Stein Oklahoma County Assessor (405) 713-1200 - Public Access System |
|
|
|
|
|
|
| Real Property Display - Screen Produced 3/4/2026 5:01:20 AM | ||||
|---|---|---|---|---|
| Account: R086153300 | Type: Residential | Location: |
1408 NE 39TH ST |
|
| Building Name/Occupant: |
|
OKLAHOMA CITY |
||
| Owner Name 1: | AUSTIN JANICE D |
Parcel PIN#: |
2655-08-615-3300 |
|
| Owner Name 2: | 1/4 section #: |
2655 |
||
| Owner Name 3: | Parent Acct: |
|
||
| Billing Address: | 6305 NE 63RD ST | Tax District: |
|
|
| City, State, Zip | OKLAHOMA CITY, OK 73141-9681 | School System: |
Oklahoma City #89 |
|
|
Country: (If noted) |
Land Size: |
0.1616 Acres |
||
|
Land Value: 14,080 |
|
|||
|
Sect 14-T12N-R3W Qtr SW |
CUTLERS ADDITION
Block
001
Lot
000
|
|||
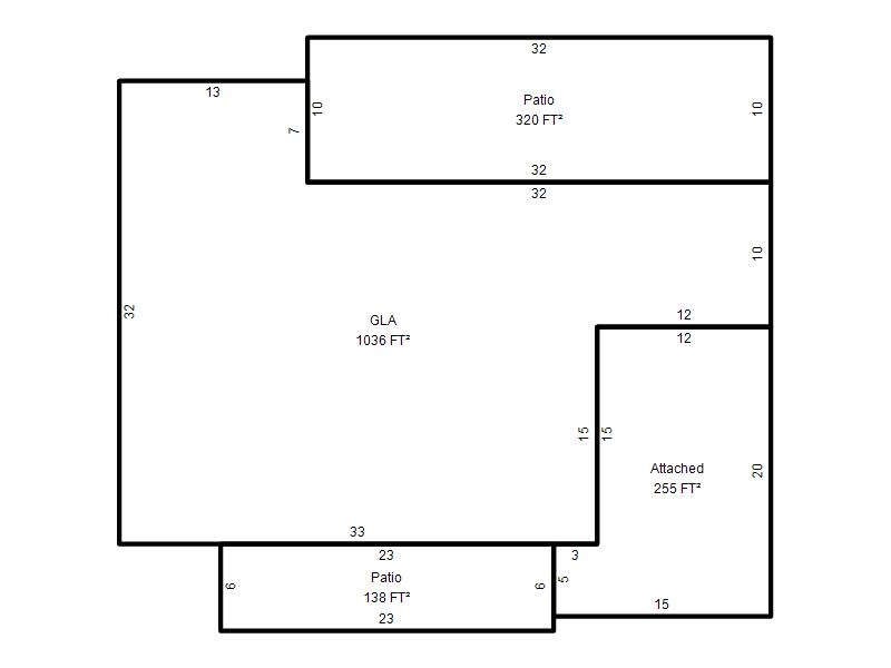
| Full Legal Description: CUTLERS ADDITION 001 000 LOTS 7 8 & E5FT OF LOT 9 |
| Photo & Sketch (if available) | Comp Sales (ordered by relevancy) |
|
||||||||||||||||||
|
||||||||||||||||||||
| Value History (*The County Treasurer 405-713-1300 posts & collects actual tax amounts. Contact information HERE) | |||||||||||||
|---|---|---|---|---|---|---|---|---|---|---|---|---|---|
| Year | Market Value | Taxable Mkt Value | Gross Assessed | Exemption | Net Assessed | Millage | Est. Tax | Tax Savings | |||||
|
2025 |
68,000 |
31,410 |
3,454 |
0 |
3,454 |
122.90 |
$425 |
$495 |
|||||
|
2024 |
66,500 |
29,915 |
3,290 |
0 |
3,290 |
123.89 |
$408 |
$499 |
|||||
|
2023 |
75,000 |
28,491 |
3,133 |
0 |
3,133 |
122.82 |
$385 |
$628 |
|||||
|
2022 |
54,500 |
27,135 |
2,984 |
0 |
2,984 |
117.63 |
$351 |
$354 |
|||||
|
2021 |
51,500 |
25,843 |
2,842 |
0 |
2,842 |
117.70 |
$335 |
$332 |
|||||
| Property Account Status/Adjustments/Exemptions | ||
|---|---|---|
| Account # | Exemption Description | Amount |
|
R086153300 |
5% Capped Account |
0 |
| Property Deed Transaction History (Recorded in the County Clerk's Office) | |||||||
|---|---|---|---|---|---|---|---|
| Date | Type | Book | Page | Price | Grantor | Grantee | |
|
10/14/2003 |
|
Hmstd Off & |
$0 |
ROBINSON HATTIE |
AUSTIN JANICE D |
||
|
4/26/1995 |
|
Historical |
$0 |
ROBINSON HATTIE ETAL |
ROBINSON HATTIE |
||
|
8/1/1974 |
|
Historical |
$0 |
|
ROBINSON HATTIE ETAL |
||
| Last Mailed Notice of Value (N.O.V.) Information/History | ||||||||
|---|---|---|---|---|---|---|---|---|
| Year | Date | Market Value | Taxable Market Value | Gross Assessed | Exemption | Net Assessed | ||
|
2026 |
02/23/2026 |
89,000 |
32,980 |
3,627 |
0 |
3,627 |
||
|
2025 |
02/14/2025 |
68,000 |
31,410 |
3,454 |
0 |
3,454 |
||
|
2024 |
02/13/2024 |
66,500 |
29,915 |
3,290 |
0 |
3,290 |
||
|
2023 |
02/14/2023 |
75,000 |
28,491 |
3,133 |
0 |
3,133 |
||
|
2022 |
03/15/2022 |
54,500 |
27,135 |
2,984 |
0 |
2,984 |
||
| Property Building Permit History | |||||||||||
|---|---|---|---|---|---|---|---|---|---|---|---|
| Issued | Permit # | Provided by | Bldg # | Description | Est Construction Cost | Status | |||||
| No Building Permit records returned. | |||||||||||
| Click button on building number to access detailed information: | ||||||
|---|---|---|---|---|---|---|
| Bldg # | Vacant/Improved Land | Bldg Description | Year Built | SqFt | # Stories | |
|
1 |
Improved |
Ranch 1 Story |
1949 |
1,036 |
1 Stories |
|