|
|
|
| Larry Stein Oklahoma County Assessor (405) 713-1200 - Public Access System |
|
|
|
|
|
|
| Real Property Display - Screen Produced 3/4/2026 5:01:32 AM | ||||
|---|---|---|---|---|
| Account: R086153900 | Type: Residential | Location: |
1321 NE 38TH ST |
|
| Building Name/Occupant: |
|
OKLAHOMA CITY |
||
| Owner Name 1: | BOLDEN LATOSHIA A |
Parcel PIN#: |
2655-08-615-3900 |
|
| Owner Name 2: | BOLDEN CLARENCE W JR | 1/4 section #: |
2655 |
|
| Owner Name 3: | Parent Acct: |
|
||
| Billing Address: | 1401 NE 38TH ST | Tax District: |
|
|
| City, State, Zip | OKLAHOMA CITY, OK 73111-7581 | School System: |
Oklahoma City #89 |
|
|
Country: (If noted) |
Land Size: |
0.1616 Acres |
||
|
Land Value: 14,080 |
|
|||
|
Sect 14-T12N-R3W Qtr SW |
CUTLERS ADDITION
Block
001
Lot
000
|
|||
| Full Legal Description: CUTLERS ADDITION 001 000 E20FT OF LOT 20 ALL LOT 21 & W10FT OF LOT 22 |
| Photo & Sketch (if available) | Comp Sales (ordered by relevancy) |
|
||||||||||||||||||
|
||||||||||||||||||||
| Value History (*The County Treasurer 405-713-1300 posts & collects actual tax amounts. Contact information HERE) | |||||||||||||
|---|---|---|---|---|---|---|---|---|---|---|---|---|---|
| Year | Market Value | Taxable Mkt Value | Gross Assessed | Exemption | Net Assessed | Millage | Est. Tax | Tax Savings | |||||
|
2025 |
64,000 |
37,284 |
4,100 |
0 |
4,100 |
122.90 |
$504 |
$361 |
|||||
|
2024 |
63,000 |
35,509 |
3,905 |
0 |
3,905 |
123.89 |
$484 |
$375 |
|||||
|
2023 |
70,500 |
33,819 |
3,719 |
0 |
3,719 |
122.82 |
$457 |
$496 |
|||||
|
2022 |
51,000 |
32,209 |
3,541 |
0 |
3,541 |
117.63 |
$417 |
$243 |
|||||
|
2021 |
48,500 |
30,676 |
3,373 |
0 |
3,373 |
117.70 |
$397 |
$231 |
|||||
| Property Account Status/Adjustments/Exemptions | ||
|---|---|---|
| Account # | Exemption Description | Amount |
|
R086153900 |
5% Capped Account |
0 |
| Property Deed Transaction History (Recorded in the County Clerk's Office) | |||||||
|---|---|---|---|---|---|---|---|
| Date | Type | Book | Page | Price | Grantor | Grantee | |
|
4/27/2016 |
|
Hmstd Off & |
$0 |
BOLDEN CLARENCE W SR |
BOLDEN LATOSHIA A |
||
|
11/29/1993 |
|
Historical |
$0 |
EDDINGTON ERMA JEAN |
BOLDEN CLARENCE WILLIAM SR |
||
|
10/27/1992 |
|
Historical |
$13,000 |
TRANSAMERICA FINANCIAL |
EDDINGTON ERMA JEAN |
||
|
7/9/1992 |
|
Historical |
$0 |
CLARK BERKELEY G |
TRANSAMERICA FINANCIAL |
||
|
11/1/1977 |
|
Historical |
$0 |
|
CLARK BERKELEY G |
||
| Last Mailed Notice of Value (N.O.V.) Information/History | ||||||||
|---|---|---|---|---|---|---|---|---|
| Year | Date | Market Value | Taxable Market Value | Gross Assessed | Exemption | Net Assessed | ||
|
2026 |
02/23/2026 |
83,500 |
39,148 |
4,306 |
0 |
4,306 |
||
|
2025 |
02/14/2025 |
64,000 |
37,284 |
4,100 |
0 |
4,100 |
||
|
2024 |
02/13/2024 |
63,000 |
35,509 |
3,905 |
0 |
3,905 |
||
|
2023 |
02/14/2023 |
70,500 |
33,819 |
3,719 |
0 |
3,719 |
||
|
2022 |
03/15/2022 |
51,000 |
32,209 |
3,541 |
0 |
3,541 |
||
| Property Building Permit History | |||||||||||
|---|---|---|---|---|---|---|---|---|---|---|---|
| Issued | Permit # | Provided by | Bldg # | Description | Est Construction Cost | Status | |||||
| No Building Permit records returned. | |||||||||||
| Click button on building number to access detailed information: | ||||||
|---|---|---|---|---|---|---|
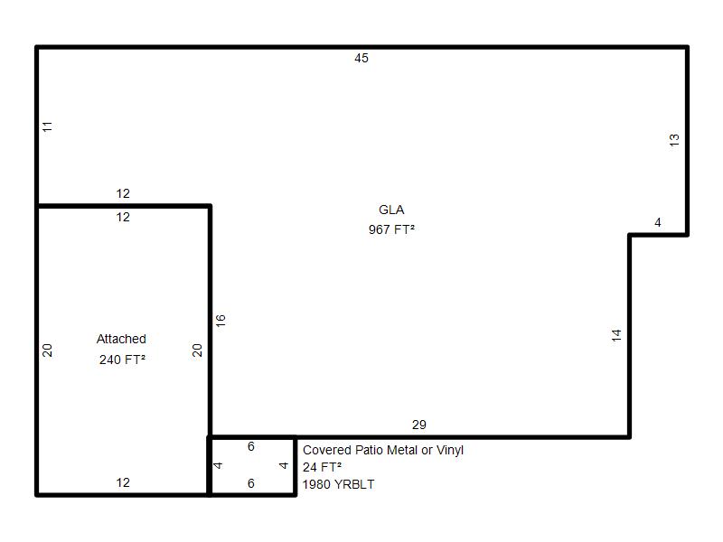
| Bldg # | Vacant/Improved Land | Bldg Description | Year Built | SqFt | # Stories | |
|
1 |
Improved |
Ranch 1 Story |
1949 |
967 |
1 Stories |
|