|
|
|
| Larry Stein Oklahoma County Assessor (405) 713-1200 - Public Access System |
|
|
|
|
|
|
| Real Property Display - Screen Produced 3/4/2026 5:01:48 AM | ||||
|---|---|---|---|---|
| Account: R086154200 | Type: Residential | Location: |
1405 NE 38TH ST |
|
| Building Name/Occupant: |
|
OKLAHOMA CITY |
||
| Owner Name 1: | TAFFEE DORIS |
Parcel PIN#: |
2655-08-615-4200 |
|
| Owner Name 2: | 1/4 section #: |
2655 |
||
| Owner Name 3: | Parent Acct: |
|
||
| Billing Address: | 1405 NE 38TH ST | Tax District: |
|
|
| City, State, Zip | OKLAHOMA CITY, OK 73111-5023 | School System: |
Oklahoma City #89 |
|
|
Country: (If noted) |
Land Size: |
0.1616 Acres |
||
|
Land Value: 14,080 |
|
|||
|
Sect 14-T12N-R3W Qtr SW |
CUTLERS ADDITION
Block
001
Lot
000
|
|||
| Full Legal Description: CUTLERS ADDITION 001 000 E10FT OF LOT 24 & ALL LOT 25 & W20FT OF LOT 26 |
| Photo & Sketch (if available) | Comp Sales (ordered by relevancy) |
|
||||||||||||||||||
|
||||||||||||||||||||
| Value History (*The County Treasurer 405-713-1300 posts & collects actual tax amounts. Contact information HERE) | |||||||||||||
|---|---|---|---|---|---|---|---|---|---|---|---|---|---|
| Year | Market Value | Taxable Mkt Value | Gross Assessed | Exemption | Net Assessed | Millage | Est. Tax | Tax Savings | |||||
|
2025 |
69,000 |
34,433 |
3,787 |
1,000 |
2,787 |
122.90 |
$343 |
$590 |
|||||
|
2024 |
67,000 |
33,431 |
3,677 |
1,000 |
2,677 |
123.89 |
$332 |
$581 |
|||||
|
2023 |
75,500 |
32,458 |
3,569 |
1,000 |
2,569 |
122.82 |
$316 |
$704 |
|||||
|
2022 |
54,500 |
31,513 |
3,465 |
1,000 |
2,465 |
117.63 |
$290 |
$415 |
|||||
|
2021 |
51,500 |
30,596 |
3,365 |
1,000 |
2,365 |
117.70 |
$278 |
$388 |
|||||
| Property Account Status/Adjustments/Exemptions | ||
|---|---|---|
| Account # | Exemption Description | Amount |
|
R086154200 |
3% Cap Homestead |
0 |
|
R086154200 |
Homestead |
1,000 |
| Property Deed Transaction History (Recorded in the County Clerk's Office) | |||||||
|---|---|---|---|---|---|---|---|
| Date | Type | Book | Page | Price | Grantor | Grantee | |
|
11/11/1911 |
|
Historical |
$0 |
|
TAFFEE DORIS |
||
| Last Mailed Notice of Value (N.O.V.) Information/History | ||||||||
|---|---|---|---|---|---|---|---|---|
| Year | Date | Market Value | Taxable Market Value | Gross Assessed | Exemption | Net Assessed | ||
|
2026 |
02/23/2026 |
90,000 |
35,465 |
3,900 |
1,000 |
2,900 |
||
|
2025 |
02/14/2025 |
69,000 |
34,433 |
3,787 |
1,000 |
2,787 |
||
|
2024 |
02/13/2024 |
67,000 |
33,431 |
3,677 |
1,000 |
2,677 |
||
|
2023 |
02/14/2023 |
75,500 |
32,458 |
3,569 |
1,000 |
2,569 |
||
|
2022 |
03/15/2022 |
54,500 |
31,513 |
3,465 |
1,000 |
2,465 |
||
| Property Building Permit History | |||||||||||
|---|---|---|---|---|---|---|---|---|---|---|---|
| Issued | Permit # | Provided by | Bldg # | Description | Est Construction Cost | Status | |||||
| No Building Permit records returned. | |||||||||||
| Click button on building number to access detailed information: | ||||||
|---|---|---|---|---|---|---|
| Bldg # | Vacant/Improved Land | Bldg Description | Year Built | SqFt | # Stories | |
|
1 |
Improved |
Ranch 1 Story |
1949 |
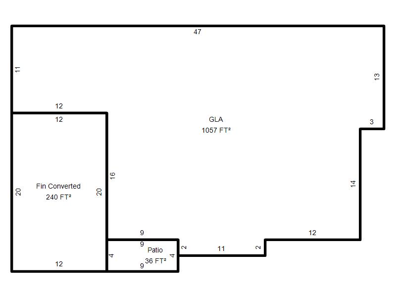
1,057 |
1 Stories |
|