Larry Stein Oklahoma County Assessor (405) 713-1200 - Public Access System
Home Contact Us Guest Book Map Search New Search
Real Property Display - Screen Produced   4/24/2026 1:00:00 AM 
Account: R035241395  Type: Residential

  

Location:

1413 NE 34TH ST

Building Name/Occupant:

 

OKLAHOMA CITY

Owner Name 1:  WALLACE CLIFFORD

Parcel PIN#:

2692-03-524-1395

Owner Name 2:    1/4 section #:

2692

Owner Name 3:    Parent Acct:

 

Billing Address:  1413 NE 34TH ST Tax District:

City, State, Zip  OKLAHOMA CITY, OK  73111-4703 School System:

Oklahoma City #89

Country: (If noted)

  

Land Size:

0.1575  Acres

Personal Property

Land Value: 16,807 

Treasurer:

Sect 23-T12N-R3W Qtr NW

 PARK ESTATE RANCHETT   Block 002  Lot 024   Subdivision Sales
 Full Legal Description:  PARK ESTATE RANCHETT 002 024

NOTE:  The following sales may or may not be used to determine Fair Market Value

Photo & Sketch (if available) Sales  Sales Report

 1301 NE 34TH ST OKLAHOMA CITY, OK

05/12/2023

 $103,000 

 1437 NE 34TH ST OKLAHOMA CITY, OK

11/14/2025

 $94,500 

 940 NE 32ND ST OKLAHOMA CITY, OK

07/24/2025

 $139,500 

 3601 N TERRY AVE OKLAHOMA CITY, OK

11/21/2025

 $180,000 

 1513 NE 33RD ST OKLAHOMA CITY, OK

04/12/2024

 $92,500 

 829 NE 27TH ST OKLAHOMA CITY, OK

05/16/2024

 $163,000 

Value History  (*The County Treasurer 405-713-1300 posts & collects actual tax amounts.  Contact information  HERE)
Year Market Value Taxable Mkt Value Gross Assessed Exemption Net Assessed Millage Est. Tax Tax Savings

2026

117,500 

45,469 

5,001 

5,001 

122.90 

$615 

$974 

2025

117,500 

34,257 

3,767 

3,767 

122.90 

$463 

$1,125 

2024

111,500 

32,626 

3,588 

3,588 

123.89 

$445 

$1,075 

[1/10]
Property Account Status/Adjustments/Exemptions
Account # Exemption Description Amount

R035241395

5% Capped Account

Property Deed Transaction History   (Recorded in the County Clerk's Office)
Date Type Book Page Price Grantor Grantee

11/20/2018

Hmstd Off &

13914

149

 $0 

EWING RUBY L

WALLACE CLIFFORD

11/11/1911

Historical

0004

0000

 $0 

 

EWING RUBY L

Last Mailed Notice of Value (N.O.V.) Information/History
Year Date Market Value Taxable Market Value Gross Assessed Exemption Net Assessed

2026

03/30/2026

117,500 

45,469 

5,001 

5,001 

2025

03/28/2025

117,500 

34,257 

3,767 

3,767 

2024

02/13/2024

111,500 

32,626 

3,588 

3,588 

[1/3]
Property Building Permit History
Issued Permit # Provided by Bldg # Description Est Construction Cost Status

7/3/2024

 

1

Remodeled

  

Inactive

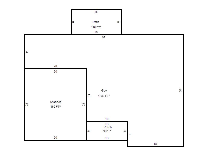
Click button below to access detailed information and additional property photos:
  Bldg # Vacant/Improved Land Bldg Description Year Built SqFt # Stories

Click

1

Improved

Ranch 1 Story

1957

1,232 

1 Stories